Крупнейшая бесплатная информационно-справочная система онлайн доступа к полному собранию технических нормативно-правовых актов РФ. Огромная база технических нормативов (более 150 тысяч документов) и полное собрание национальных стандартов, аутентичное официальной базе Госстандарта. GOSTRF.com - это более 1 Терабайта бесплатной технической информации для всех пользователей интернета. Все электронные копии представленных здесь документов могут распространяться без каких-либо ограничений. Поощряется распространение информации с этого сайта на любых других ресурсах. Каждый человек имеет право на неограниченный доступ к этим документам! Каждый человек имеет право на знание требований, изложенных в данных нормативно-правовых актах!

  


 

Открытое акционерное общество

Проектно-конструкторский и технологический
институт промышленного строительства

ОАО ПКТИпромстрой

УТВЕРЖДАЮ

Генеральный директор, к.т.н.

____________ С.Ю. Едличка

«__» ______________ 2000 г.

ТЕХНОЛОГИЧЕСКАЯ КАРТА
НА УСТРОЙСТВО ОГРАЖДЕНИЙ
ИЗ ОПЕРЕЖАЮЩИХ И ПЕРЕСЕКАЮЩИХ
БУРОНАБИВНЫХ СВАЙ

7392 ТК

Главный инженер

___________ А.В. Колобов

Начальник отдела

___________ Б.И. Бычковский

2000

СОДЕРЖАНИЕ

1 Область применения. 1

2 Технология и организация выполнения работ. 2

3 Требования к качеству и приемке работ. 14

4 Требования техники безопасности и охраны труда, экологической и пожарной безопасности. 22

5 Потребность в материально-технических ресурсах. 24

5.1 Потребность в машинах, оборудовании, технологической оснастке, инструменте и приспособлениях. 24

5.2 Потребность в материалах, изделиях и конструкциях. 27

6 Технико-экономические показатели. 27

7 Использованная литература. 37

Приложение А Форма журнала изготовления буронабивных свай (титульный лист) 39

Приложение Б Форма актов освидетельствования и приемки буровой скважины, арматурного каркаса и приемки свайного поля из буронабивных свай. 40

1 ОБЛАСТЬ ПРИМЕНЕНИЯ

1.1 Опережающие и пересекающие* буронабивные сваи применяются при устройстве ограждений котлованов, когда уровень грунтовых вод залегает выше дна котлована.

*) В технической литературе «пересекающая» армированная буронабивная свая также называется «буросекущаяся» набивная свая и «секущая» буронабивная свая.

1.2 Рассматриваемое в настоящей технологической карте свайное ограждение по рисунку 1 состоит из бетонных опережающих свай, чередующихся с железобетонными пересекающимися сваями. На первом этапе изготавливают несколько бетонных опережающих свай без арматурных каркасов. Затем забуривают промежуточные скважины между бетонными опережающими сваями, срезая часть бетона опережающих свай. Скважины для пересекающих свай армируют арматурными каркасами, после чего производят укладку бетонной смеси.

Рисунок 1 - Этапы возведения ограждения из опережающих и пересекающих буронабивных свай

а) первый этап - изготовление бетонных опережающих буронабивных свай; б) второй этап - изготовление железобетонных пересекающих буронабивных свай; 1 - бетонная опережающая буронабивная свая; 2 - железобетонная пересекающая буронабивная свая.

Такая технология позволяет устраивать ограждения из рассматриваемых свай любой глубины в неустойчивых и водонасыщенных грунтах без применения глинистого раствора, что упрощает производство работ.

1.3 В настоящей технологической карте рассмотрены вопросы устройства ограждений из опережающих и пересекающих буронабивных свай диаметром 600 - 1000 мм при шаге до 3000 мм и глубиной до 20 м.

2 ТЕХНОЛОГИЯ И ОРГАНИЗАЦИЯ ВЫПОЛНЕНИЯ РАБОТ

2.1 Работам по устройству ограждений из опережающих и пересекающих буронабивных свай должны предшествовать:

- отключение и перенос из рабочей зоны всех надземных и подземных коммуникаций;

- планировка строительной площадки на проектной отметке;

- укладка железобетонных дорожных плит для проезда автотранспорта, буровых машин и строительных кранов;

- ограждение строительной площадки в соответствии с требованиями ГОСТ 23407-78 и проекта производства работ;

- размещение бытовых и подсобных помещений;

- геодезическая разбивка осей сооружения и надежное закрепление на местности положения рядов из опережающих и пересекающих буронабивных свай с оформлением акта, к которому прилагаются схемы расположения знаков разбивки, данные о привязке к базисной линии и к высотной опорной сети;

- подготовка мест для складирования секций инвентарных обсадных труб, секций арматурных каркасов, опалубки, инвентаря, а также площадок для строительных машин и оборудования.

2.2 Готовность объекта к производству работ по устройству ограждений из опережающих и пересекающих буронабивных свай должна определяться комиссией, назначенной руководством управления, с составлением акта готовности.

2.3 Технология производства работ предопределена конструктивным решением свайного ограждения из опережающих и пересекающих буронабивных свай. На первом этапе бетонируют несколько опережающих свай без арматурных каркасов в течение 40 ч, но не более 72 ч, а на втором этапе промежуточные пересекающие сваи с армокаркасами. Далее поочередно изготавливают опережающие и пересекающие буронабивные сваи.

2.4 В технологической карте рассматриваются следующие технологические операции по устройству ограждений из опережающих и пересекающих буронабивных свай, выполняемые в следующей последовательности:

- подготовительные работы по строительной площадке;

- земляные работы для устройства форшахты;

- устройство форшахты;

- подготовка обсадных труб;

- бурение скважины бетонной опережающей сваи;

- погружение секций обсадной трубы;

- установка бетонолитной трубы;

- бетонирование бетонной опережающей сваи;

- снятие бетонолитной трубы;

- извлечение секций обсадной трубы;

- уплотнение бетонной смеси;

- бурение скважины железобетонной пересекающей сваи;

- погружение секций обсадной трубы;

- установка арматурного каркаса пересекающей сваи;

- установка бетонолитной трубы;

- бетонирование пересекающей сваи;

- снятие бетонолитной трубы;

- извлечение секций обсадной трубы;

- уплотнение бетонной смеси.

2.5 Для каждой технологической операции по п. 2.4 подбираются в зависимости от способа бурения требуемое оборудование, приспособления, инвентарь, оснастка, инструмент и др. в соответствии с рекомендациями, изложенными в таблице 1.

Таблица 1 - Технологические процессы и операции, способы выполнения и требуемое оборудование, приспособления, инвентарь и оснастка для устройства ограждений из опережающих и пересекающих буронабивных свай

Наименование технологических процессов и операций, способы их выполнения

Наименование оборудования, приспособлений, инвентаря, оснастки и др.

1

2

1 Подготовительные работы на строительной площадке

Доставка и разгрузка секций инвентарных обсадных труб длиной 2, 4 и 6 м

Автомобиль бортовой, автомобильный кран

Доставка и разгрузка секций арматурных каркасов буронабивных свай

Автомобиль бортовой, автомобильный кран

2 Земляные работы для устройства форшахты

Устройство котлована с отгрузкой грунта

Работы представлены отдельной технологической картой на устройство форшахты

3 Устройство форшахты

Установка обечайки-кондуктора

Бетонирование форшахты

Работы представлены отдельной технологической картой на устройство форшахты

4 Подготовка обсадных труб

Подготовка секций инвентарных обсадных труб:

 

- очистка внутренних поверхностей обсадных труб от налипшего грунта и цементного молока;

Металлические щетки, временный водопровод

- мойка секций обсадных труб

Трубная разводка от водопроводной сети

5 Бурение скважины бетонной опережающей сваи

Ударный (грейферный) способ бурения (в песчаных, крупнообломочных, скальных и глинистых грунтах в текучепластичном и текучем состоянии)

Бурильно-крановая машина с двухчелюстным грейфером со сменными челюстями

Инструментальная проверка отметки и положения оси буронабивной сваи

Геодезические инструменты

Забор грунта грейфером

Бурильно-крановая машина

Извлечение грейфера с грунтом из скважины

То же

Опорожнение грейфера: в отвал

То же

в автотранспорт

То же и автосамосвал

Проверка отметки забоя

Гибкая мерная нить и специальный лот

Ударный способ бурения буровым клапаном (желонкой) в водонасыщенных мелких песках и илах

Бурильно-крановая машина

Рабочий орган - желонка

Инструментальная проверка отметки и положения оси буронабивной сваи

Геодезические инструменты

Забор грунта желонкой

Бурильно-крановая машина

Извлечение желонки с грунтом из скважины

То же

Опорожнение желонки: в отвал

То же

в автотранспорт

То же и автосамосвал

Проверка отметки забоя

Гибкая мерная нить и специальный лот

Вращательный (роторный) способ бурения (глинистые грунты пластичной, полутвердой и твердой консистенции)

Бурильно-крановая машина

Рабочий орган - шнековый бур

Инструментальная проверка отметки и положения оси буронабивной сваи

Геодезические инструменты

Бурение лидерной скважины расчетного диаметра глубиной, равной длине первой секции инвентарной обсадной трубы

Бурильно-крановая машина

Проверка отметки забоя

Гибкая мерная нить и специальный лот

Закачка воды в скважины (при разработке неустойчивых грунтов)

Временный водопровод или автоцистерна для доставки воды

6 Погружение секций обсадной трубы

Погружение первой (нижней) секции инвентарной обсадной трубы длиной 2 м

Бурильно-крановая машина

Бурение лидерной скважины расчетного диаметра глубиной, равной следующей (второй) секции инвентарной обсадной трубы длиной 4 м

То же

Наращивание второй секции инвентарной обсадной трубы длиной 4 м

То же и устройство для свинчивания обсадных труб

Погружение второй секции инвентарной обсадной трубы длиной 4 м

Бурильно-крановая машина

Бурение лидерной скважины расчетного диаметра глубиной, равной следующей (третьей) секции инвентарной обсадной трубы длиной 6 м

То же

Наращивание третьей секции инвентарной обсадной трубы длиной 6 м

То же и устройство для свинчивания обсадных труб

Погружение третьей секции инвентарной обсадной трубы длиной 6 м

Бурильно-крановая машина

Бурение лидерной скважины расчетного диаметра глубиной, равной следующей (четвертой) секции инвентарной обсадной трубы длиной 2 м

То же

Наращивание четвертой секции инвентарной обсадной трубы длиной 2 м

То же и устройство для свинчивания обсадных труб

Погружение четвертой секции инвентарной обсадной трубы длиной 2 м

Бурильно-крановая машина

7 Установка бетонолитной трубы

Установка бетонолитной трубы

Автомобильный кран

8 Бетонирование бетонной опережающей сваи

Доставка бетонной смеси

Автобетоносмеситель

Подача бетонной смеси в тело сваи

Автобетононасос (при подаче бетонной смеси на глубину более 8 м) или автобетоносмеситель (при глубине подачи бетонной смеси менее 8 м)

9 Снятие бетонолитной трубы

Снятие бетонолитной трубы

Автомобильный кран

10 Извлечение секций обсадной трубы

Извлечение обсадной трубы, включая разъединение инвентарных секций и их складирование

Бурильно-крановая машина и устройство для свинчивания обсадных труб

11 Уплотнение бетонной смеси

Уплотнение бетонной смеси в верхней части сваи

Глубинный вибратор

12 Бурение скважины железобетонной пересекающей сваи

То же, что в п. 5

То же, что в п. 5

13 Погружение секций обсадной трубы

То же, что в п. 6

То же, что в п. 6

14 Установка арматурного каркаса пересекающей сваи

Очистка арматурного каркаса от грязи и ржавчины

Ручная электрическая машина

Металлическая щетка

Опускание первой секции арматурного каркаса в обсадную трубу с установкой ограничителей

Бурильно-крановая машина

Сварка двух секций арматурного каркаса

Сварочный агрегат. Автомобильный кран

Опускание в пробуренную скважину двух сваренных секций арматурного каркаса с установкой ограничителей

Автомобильный кран

Сварка третьей секции арматурного каркаса с ранее опущенным в скважину каркасом

Сварочный агрегат

Опускание в пробуренную скважину арматурного каркаса с установкой ограничителей

Автомобильный кран

Сварка четвертой секции арматурного каркаса с ранее опущенным в скважину каркасом

Сварочный агрегат

Опускание в пробуренную скважину всего арматурного каркаса

Автомобильный кран

15 Установка бетонолитной трубы

То же, что в п. 7

То же, что в п. 7

16 Бетонирование пересекающей сваи

То же, что в п. 8

То же, что в п. 8

17 Снятие бетонолитной трубы

То же, что в п. 9

То же, что в п. 9

18 Извлечение секций обсадной трубы

То же, что в п. 10

То же, что в п. 10

19 Уплотнение бетонной смеси

То же, что в п. 11

То же, что в п. 11

2.6 Бурение каждой скважины должно начинаться после инструментальной проверки отметок спланированной поверхности земли и положения осей каждой буронабивной сваи на площадке.

2.7 Технические характеристики различных видов бурильного оборудования, по которым можно подобрать машину для конкретных условий устройства ограждений из опережающих и пересекающих буронабивных свай, приведены в таблицах 2, 3 и 4.

2.8 Для бурения скважин диаметром от 0,5 до 1,7 м применяют установки, оснащенные шнековым буром СО-2, роторной желонкой СО-1200, МБС-1,7, БСО-1 (таблица 3), ударным грейфером СП-45.

Таблица 2 - Техническая характеристика средних и тяжелых бурильных машин

Показатель

Средние

Тяжелые

БКМ-1501

БМ-2001

БМ-2002

БМ-3002

БМ-4001

Глубина бурения, м

15

20

30

40

Диаметр скважины, м

0,35; 0,5; 0,63

0,63; 1,0

0,63; 1,0

1,0; 1,2; 1,5

1,2; 1,5; 1,7

1,2

Угол бурения, ...°

90

78 ... 90

Мощность привода машины, кВт

114

125

96

114

74

Максимальный вращающий момент на буре, кН · м

14,7

20,0

66,1

114

74

Частота вращения бура, с-1

0,83 ... 2,0

0,83 ... 1,33

0,16 ... 1,0

0 ... 0,81

0,28

Осевая нагрузка на буре, кН

100

120

170

200

200

Состав комплекта бурильного инструмента

Шнековые буры и ковшовые буры

Шнековые и ковшовые буры, расширитель

Шнековые и ковшовые буры, расширитель, ударное долото, грейфер

Характеристика механизма обсадки труб:

 

 

 

 

 

усилие погружения, кН

-

-

170

263

220

усилие извлечения, кН

-

-

940

979

970

вращающий момент на обсадной трубе, кН м

-

-

450

696

805

угол качания, ... °

-

-

22

22

22

ход подачи, мм

-

-

360

360

360

масса, т

-

-

7,5

9,0

11,6

Техническая производительность бурения, м/ч

9 ... 15

12 ... 18

7 ... 30

5,7 ... 16,0

3,1

Масса машины без механизма обсадки труб, т

23,4

48,0

36,43

60

70

Базовая машина

Автомобиль КрАЗ-250

Экскаватор

ЭО-5122

ЭО-4125

ЭО-5117 (ЭО-5123)

ЭО-6122

2.9 Для этих же целей используют:

отечественные

- буровые установки ударного действия (таблица 4): УКС-22М; УКС-30М; БС-1М;

- агрегаты: УРБ-3АМ; СБУ-2; ЛБУ-50А;

- бурильно-крановые машины: БМ-302А; БМ-305; БМ-8020; БКМ-1501; БМ-3001; БМ-2000;

Таблица 3 - Технические характеристики установок для бурения скважин

Показатель

СО-2

СО-1200

МБС-1,7

БСО-1

Диаметр скважины, мм

500 - 600

800 - 1500

До 1700

1020

Диаметр уширения основания, мм

1600

3000

-

-

Максимальная глубина бурения, м

31

24

28

30

Мощность привода, кВт

55

75

90

7,5

Частота вращения двигателя, мин.-1

1460

740

-

-

То же бурового инструмента, мин.-1

43

24

8,4

23

Скорость бурения скважины, м/ч

До 10

До 7

-

До 5

Масса навесного оборудования, т

12,6

13,7

-

47

Габариты в рабочем положении, м

11´3,2´23

10´3,8´30

-

10,2´3,2´15

Базовая машина

Э-1252

МКГ-25

Э-1258Б

Э-1252Б

Масса, т

38,3

43,2

62,27

88,0

Таблица 4 - Буровые установки ударного действия

Показатель

УКС-22М

УКС-30М

БС-1М

Глубина бурения, м

30,0

50,0

30,0

Наибольший диаметр бурения, мм

600

900

300

Скорость передвижения станка, км/ч:

 

 

 

при буксировке по шоссе

20

20

-

своим ходом

-

-

0,9

Мощность электродвигателя, кВт

20

60

55; 75

Масса бурового инструмента, кг

1300

2500

2000; 3000

Напряжение, В

220/380

220/380

380

Число ударов бурового инструмента в мин.

40 - 50

40 - 50

48 - 52

Скорость подъема бурового инструмента, м/с

1,1 - 1,5

1,1 - 1,4

0,9

Грузоподъемность барабана, кг

2000

3000

5000

Диаметр каната, мм:

21,5

26

30

бурового инструмента

 

 

 

челночного

12,5

17,5

15,5

Высота мачты, м

12,5

16

15

Канатоемкость барабана, м:

 

 

 

инструментального

350

500

-

желоночного

350

500

-

пылевого

135

210

-

Грузоподъемность мачты, т

12

25

-

Габариты, мм:

 

 

 

длина в транспортном положении

8670

10000

8860

длина в рабочем положении

5800

8400

7065

ширина

2290

2640

3460

высота в транспортном положении

2750

3400

3800

высота в рабочем положении

12700

16300

15050

Масса, т

7,6

13

24

импортные* буровые установки: «Като» (Япония), «Баде» и «Зальцгиттер» (Германия), BSP и «Мак-Алпайн». «Колвелд Дрил» (США), «Соилмек» (Италия). «Беното» (Франция).

* Технические характеристики импортных машин приводятся в «Методическом пособии по устройству ограждений из буронабивных свай», т.к. некоторые машины имеются в отечественных строительных организациях.

2.10 После установки буровой машины в точке бурения на ее мачте примерно в 1 м от поверхности земли должна быть четко очерчена линия условного уровня, от которой ведется отсчет.

2.11 Бурение скважин должно вестись с применением инвентарной обсадной трубы, состоящей из отдельных секций длиной 2, 4 или 6 м и режущего наконечника. Режущий наконечник монтируется в нижнем фланце первой секции обсадной трубы.

2.12 Перед началом бурения скважин внутренние поверхности секции инвентарных обсадных труб должны быть тщательно очищены от налипшего грунта и цементного молока, попавшего на их стенки при бетонировании предыдущей скважины. На строительной площадке должен быть специальный участок для очистки и мойки секций обсадных труб.

2.13 В процессе бурения скважин должны совершаться непрерывные возвратно-поступательные движения обсадной трубы, при этом постоянно необходимо следить за характером проходимых грунтов. При изменении вида грунтов следует заменить рабочий орган.

Разработка грунта из скважин ведется либо в отвал, либо с погрузкой на транспортные средства.

2.14 Способы бурения и типы применяемых рабочих органов зависят от глубины скважины, вида и состояния разрабатываемых грунтов. Их подборку следует осуществлять согласно рекомендациям, изложенным в «Методическом пособии по устройству ограждений из буронабивных свай» (ОАО ПКТИпромстрой, М.).

2.15 При разработке неустойчивых грунтов уровень воды в скважине необходимо поддерживать на отметке не менее чем на 1 - 1,5 м выше уровня грунтовых вод для предупреждения наплыва грунта в скважину, для чего на строительной площадке должны быть предусмотрены водоснабжение от временного водопровода или доставка воды автоцистернами.

2.16 По достижении забоем проектной отметки он должен быть тщательно зачищен от бурового шлама грейфером или ковшовым буром. Зачистка забоя в водонасыщенных грунтах может выполняться желонкой (буровым клапаном), при этом необходимо обращать особое внимание на выполнение требований п. 2.15.

2.17 Технология устройства свай требует интервала времени в 40 - 72 ч между бетонированием опережающих и пересекающих свай для частичного твердения бетона опережающих свай.

После устройства первых трех опережающих свай можно начинать устройство пересекающей сваи. Продолжительность устройства опережающих и пересекающих свай следует принимать в соответствии с графиком по таблице 11. Схема передвижения бурильно-крановой машины, используемой для бурения скважин и погружения обсадных труб для устройства свайного ограждения из опережающих и пересекающих свай, а также очередность устройства свай и направление выполнения работ приведены на рисунке 2.

2.18 Основные этапы устройства буронабивных свай приведены на рисунке 3: устройство опережающих свай осуществляется по этапам 1, 2 и 4, а устройство пересекающих свай по этапам 1, 2, 3 и 4.

2.19 Бурение производится под защитой обсадной трубы согласно рисунку 4. По окончании бурения следует проверить соответствие проекту фактических размеров скважин, отметки их устья, забоя и расположение каждой скважины в плане, а также установить соответствие типа грунта основания данным инженерно-геологических изысканий (при необходимости с привлечением геолога).

2.20 Арматурные каркасы пересекающих буронабивных свай должны изготавливаться с неравномерным размещением рабочей арматуры в соответствии с распределением усилий от бокового давления грунта.

2.21 Установка арматурного каркаса пересекающей сваи производится согласно рисунку 5. Эта операция производится бурильно-крановой машиной либо автокраном.

2.22 Перед бетонированием в скважину пересекающей сваи устанавливают тщательно очищенный от грязи и ржавчины арматурный каркас, конструкция и размеры которого должны соответствовать проекту. До погружения армокаркаса в скважину последнюю следует освидетельствовать в присутствии представителей заказчика, генподрядчика и исполнителей работ с составлением акта (Приложение Б, «Формы актов освидетельствования и приемки буровой скважины, арматурного каркаса и приемки свайного поля из буронабивных свай»).

Арматурный каркас разрешается устанавливать в скважину при наличии соответствующего паспорта к нему. Длина и номер арматурного каркаса, устанавливаемого в скважину, должны фиксироваться в журнале изготовления буронабивных свай.

Условные обозначения:

 - опережающие сваи;  - пересекающие сваи; 1 … 10 - очередность устройства свай;  - направление перемещения буровой машины.

Рисунок 2 - Схема передвижения бурильно-крановой машины при устройстве свайного ограждения из опережающих и пересекающих свай

Рисунок 3 - Основные этапы устройства буронабивной сваи

1 - установка обсадной трубы; 2 - бурение скважины; 3 - опускание армокаркаса; 4 - бетонирование сваи и извлечение обсадной трубы; 5 - готовая свая.

Рисунок 4 - Бурение скважин под защитой обсадной трубы

1 - буровая машина; 2 - форшахта; 3 - обсадная труба; 4 - плита дорожная; 5 - рабочий орган.

2.23 Диаметр арматурного каркаса должен быть на 80 - 100 мм меньше внутреннего диаметра обсадной трубы во избежание заклинивания его в трубе. С наружной стороны каркас должен иметь ограничители, обеспечивающие необходимую толщину защитного слоя бетона.

Для обеспечения необходимой жесткости армокаркас должен быть усилен кольцами из листовой стали шириной 60 - 10 мм и толщиной 8 - 10 мм, прикрепленными с внутренней стороны каркаса через 1 - 2 м. Длина отдельных секций каркаса, как правило, не должна превышать 7 м. При соответствующем усилении конструкции каркаса и наличии специальных подъемных механизмов длина секций каркаса не ограничивается.

Рисунок 5 - Установка арматурного каркаса сваи

1 - крюковая обойма; 2 - строповочное приспособление; 3 - арматурный каркас сваи; 4 - обсадная труба.

2.24 Способ строповки, подъем и опускание арматурного каркаса в скважину должны исключать появление в нем деформаций. Каркас опускают в положении, обеспечивающем его свободное прохождение в скважину.

2.25 При установке арматурного каркаса на полную глубину скважины следует принимать меры, предупреждающие нарушение структуры грунта в забое скважины. С этой целью нижняя часть каркаса должна быть снабжена двумя кольцами из листовой стали, с наружной и внутренней стороны, внутри которых должны находиться концы продольных стержней.

2.26 При установке арматурного каркаса необходимо учитывать его осадку, возникающую при извлечении и демонтаже обсадных труб и уплотнении бетонной смеси. Величина ожидаемой осадки каркаса в этом случае устанавливается опытным путем.

2.27 Доставка бетонной смеси на строительную площадку должна производиться в автобетоносмесителях. Возможна также доставка сухой смеси с затворением ее водой на строительной площадке непосредственно перед бетонированием скважины.

Перевозить бетонную смесь в зимнее время следует в утепленных автобетоносмесителях.

Температура бетонной смеси в момент ее укладки в скважину должна быть не ниже 5 °С.

2.28 Суммарное время доставки бетонной смеси на строительную площадку, укладки ее в скважину, извлечения обсадных и бетонолитных труб не должно превышать ее срока схватывания.

В случае расслоения бетонной смеси при транспортировке должно быть произведено повторное перемешивание ее в автобетоносмесителях.

Используется «литая» бетонная смесь с осадкой конуса по проекту.

Схема укладки бетонной смеси в скважину представлена на рисунке 6.

2.29 Операции по бетонированию скважин опережающих и пересекающих свай идентичны и представлены на рисунке 6.

Заполнение скважины бетонной смесью следует начинать после зачистки забоя и проверки скважины, но не позднее чем через 2 ч после окончания бурения. При более длительном перерыве необходимо производить повторную зачистку забоя.

В случаях, когда предвидится значительная задержка с началом бетонирования, бурение необходимо приостановить, не доводя забой до проектной отметки на 1 - 2 м.

Этот участок следует проходить после устранения причины возможного перерыва между окончанием бурения и началом бетонирования.

2.30 Укладка бетонной смеси в скважину, варианты которой показаны на рисунке 6, должна производиться методом вертикально перемещающейся трубы (ВПТ) согласно требованиям СНиП 3.02.01-87. При изготовлении пересекающих буронабивных свай в сухих грунтах (выше уровня грунтовых вод) допускается бетонирование методом свободного сброса бетонной смеси в скважину на глубину не более 8 м.

2.31 Бетонолитные трубы, применяемые при бетонировании, должны быть секционными с быстроразъемными стыками. Конструкция стыков секций бетонолитных труб должна обеспечивать полную герметичность стыков. Внутренний диаметр бетонолитной трубы должен быть в пределах 250 - 325 мм.

2.32 Установку бетонолитной трубы в скважину перед бетонированием следует производить так, чтобы ее нижний конец был расположен выше забоя скважины на 200 - 250 мм (начальное положение).

2.33 Перед началом бетонирования в устье бетонолитной трубы должен быть установлен теряемый клапан для разделения бетонной смеси и воды в скважине. Для этой же цели может быть использован инвентарный клапан, устанавливаемый в нижней части бетонолитной трубы (например, смонтированный вместе с прибором для контроля качества укладки бетонной смеси типа СП).

Рисунок 6 - Укладка бетонной смеси в скважину

а) - при помощи автобетононасоса; б) - при помощи автобетоносмесителя; 1 - обсадная труба; 2 - бетонолитная труба; 3 - автобетононасос; 4 - автобетоносмеситель; 5 - бетонная смесь.

2.34 Подача бетонной смеси в бетонолитную трубу осуществляется автобетононасосом, а также через накопительный бункер или приемную воронку (при откачке воды из скважины перед бетонированием) непосредственно из автобетоносмесителя или перегрузочной бадьи. Объем накопительного бункера должен быть не менее объема бетонолитной трубы. В случае необходимости возможно применение и вибробункера.

2.35 Бетонирование скважины следует производить до прекращения прохождения бетонной смеси через приемный бункер, после чего бункер вместе с бетонолитной трубой поднимают до освобождения от бетонной смеси верхней секции бетонолитной трубы. Затем верхнюю секцию бетонолитной трубы демонтируют, бункер устанавливают на ее следующей секции и процесс бетонирования скважины возобновляется. При этом нижний конец бетонолитной трубы должен быть заглублен в бетон не менее, чем на 1 м.

Во всех случаях уровень бетонной смеси в бетонолитной трубе должен быть выше уровня воды в скважине.

2.36 Укладку бетонной смеси в скважину следует производить на всю глубину скважины без перерывов (в один этап). При большей глубине скважины допускается бетонирование в несколько этапов, неизбежно вызываемых технологическими перерывами, связанными с извлечением отдельных секций бетонолитных и обсадных труб.

2.37 При бетонировании скважин в несколько этапов высота укладки бетонной смеси на первом этапе до начала подъема обсадной трубы должна задаваться возможно большей, исходя из требования, что уложенная бетонная смесь не должна начинать схватываться до подъема обсадной и бетонолитной труб. Во всех случаях высота столба бетона в скважине на каждом этапе должна не менее, чем на 2 м превышать общую длину удаленных секций обсадной трубы.

2.38 В течение всего процесса бетонирования колонне обсадных труб должно придаваться постоянное возвратно-вращательной движение (в пределах хода двойного качания хомута) во избежание ее засасывания.

2.39 При извлечении и демонтаже обсадных труб (рисунок 7) должно учитываться возможное понижение уровня бетона в скважине и опускание бетонолитной трубы, величина которого устанавливается опытным путем.

Поэтапный демонтаж секций обсадной трубы производится буровой машиной по мере бетонирования свай.

2.40 Для уплотнения бетонной смеси и обеспечения лучшего контакта бетона с грунтом подъем обсадной трубы должен производиться поступательно-вращательным движением с последовательным подниманием ее на 20 - 30 см и опусканием на 10 - 15 см.

2.41 При завершении бетонирования скважины необходимо удалить загрязненный слой бетонной смеси. После этого устанавливается инвентарный кондуктор и бетонируется оголовок сваи. Вместо инвентарного кондуктора может быть использована форшахта.

2.42 Бетонная смесь в пределах верхних 3 м сваи по окончании бетонирования должны быть тщательно уплотнена глубинным вибратором.

2.43 В летний период кондуктор снимается через 16 - 24 часов после окончания формирования оголовка сваи, который следует укрывать от солнца и увлажнять поливкой водой 3 - 4 раза в сутки в течение 10 - 12 суток.

2.44 В зимний период сразу же после установки утепленной опалубки (кондуктора) и окончания бетонирования оголовка сваи последний должен утепляться слоем опилок или стекловаты толщиной 20 - 25 см. В центре оголовка должна быть устроена скважина глубиной 25 - 30 см для измерения температуры, устье которой закрывается деревянной пробкой.

Для ускорения вызревания бетона в зимний период и предотвращения его раннего замораживания должен осуществляться электропрогрев бетона сваи на глубину промерзания грунта.

Распалубка оголовка может быть проведена при достижении бетоном прочности 5 ... 6 МПа (50 ... 60 кгс/см2). В зимний период распалубка должна производиться при разности температур бетона и наружного воздуха не более 20 °С.

Технологическая схема бетонирования скважин приведена на рисунке 8.

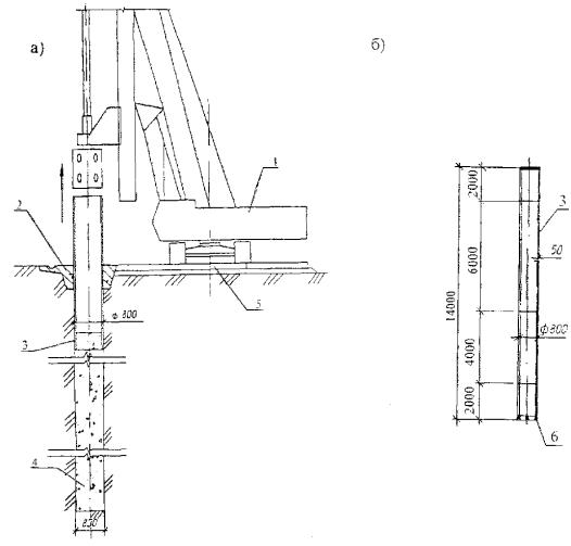
Рисунок 7 - Извлечение обсадной трубы

а - схема извлечения обсадной трубы; б - применяемые инвентарные секции обсадной трубы для скважины глубиной 14 м; 1 - буровая машина; 2 - форшахта; 3 - обсадная труба; 4 - бетонная смесь; 5 - плита дорожная; 6 - режущий наконечник инвентарной обсадной трубы.

2.45 Перевозку строительных грузов (арматуры, бетонной смеси и т.п.) следует выполнять с учетом требований главы 8 СНиП 12-03-2001.

(Измененная редакция).

2.46 При транспортировке арматурных каркасов от места изготовления к месту установки в каркасы следует устанавливать временные распорки в виде поперечных стержней или деревянных кругов для предохранения их от деформаций.

2.47 Складирование арматурных каркасов, бетонолитных и обсадных труб должно производиться за пределами призмы обрушения грунта, стенки которой не закреплены, а при их размещении в пределах призмы обрушения грунта у выемок с креплениями допускается при условии предварительной проверки креплений расчетом. Их следует размещать на выровненных площадках, принимая меры против самопроизвольного смещения, просадки, осыпания и раскатывания.

2.48 Подкладки и прокладки при складировании следует располагать в одной вертикальной плоскости.

Рисунок 8 - Технологическая схема бетонирования скважины

1 - приемный бункер; 2 - секции бетонолитной трубы; 3 - секции обсадной трубы; 4 - прибор типа СП; 5 - режущий наконечник; 6 - армокаркас; 7 - демонтируемые звенья бетонолитной трубы; 8 - демонтируемая секция обсадной трубы; 9 - инвентарный кондуктор для формования головы сваи.

3 ТРЕБОВАНИЯ К КАЧЕСТВУ И ПРИЕМКЕ РАБОТ

3.1 Качество поставляемых материалов и изделий и выполняемых работ по устройству буронабивных свай обеспечивается за счет выполнения производственного контроля, который включает входной контроль, операционный контроль и приемочный контроль.

3.2 Производственный контроль технологических процессов устройства буронабивных свай выполняется с целью обеспечения нормативного уровня устройства ограждений и повышения их надежности. Рассматривается производственный контроль качества устройства буронабивных свай на строительных объектах, выполняемый бригадирами, мастерами, ведущими мастерами и др.

3.3 При входном контроле проверяется качество поставляемых на стройплощадку материалов и изделий для устройства буронабивных свай.

3.4 При операционном контроле проверяется соблюдение технологии выполнения всех процессов и операций по устройству буронабивных свай, а также соответствие выполняемых работ рабочим чертежам, строительным нормам, правилам и стандартам, технологическим картам. Результаты операционного контроля должны фиксироваться в журнале работ.

3.5 При приемочном контроле проверяется качество устройства буронабивных свай.

3.6 Контроль качества работ по изготовлению ограждений из опережающих и пересекающих буронабивных свай должен производиться на всех этапах их изготовления: при бурении скважин, при производстве работ по бетонированию свай, а также по окончании изготовления свай.

Контроль осуществляется производителем работ, представителями проектной организации (авторский надзор) и заказчика (технический надзор) с привлечением при необходимости соответствующей специализированной научно-исследовательской организации.

3.7 Входной контроль качества поставляемых материалов, бетонной смеси, арматурных каркасов, обсадных труб, бетонолитных труб и др., используемых при устройстве буронабивных свай, определяется внешним осмотром, соответствием требованиям стандартов и других нормативных документов, а также наличием и содержанием паспортов, сертификатов и других сопроводительных документов.

3.8 Входной контроль качества бетона производится следующим образом:

- контроль качества бетонной смеси, укладываемой в скважину, осуществляется путем отбора проб из каждой поступающей на строительную площадку партии бетонной смеси с изготовлением из них не менее, чем трех контрольных кубиков и последующим их испытанием на сжатие. Набор прочности кубиками должен осуществляться в условиях, соответствующих условиям твердения бетона в стволе буронабивной сваи, что достигается путем их хранения в отдельно пробуренной скважине на специальном поддоне, при этом уровень, на котором хранятся кубики в скважине, определяется примерным положением в стволе сваи партии бетона, из которой они отобраны. Контрольные кубики должны быть испытаны в 7- и 28-дневном возрасте согласно ГОСТ 10180-90;

- минимальные результаты испытаний контрольных кубиков бетона марки В15, при которых их бракуют, следует принимать: для 7-дневного возраста - 5 МПа (50 кгс/см2); для 28-дневного возраста - 15 МПа (150 кгс/см2).

3.9 Операционный контроль правильности разбивки осей ограждения следует систематически контролировать в процессе производства работ, а также в каждом случае смещения точек, закрепляющих оси.

3.10 Для проверки правильности отложения расстояний делают повторные контрольные замеры в обратном направлении между точками, соответствующими расположению свай в ограждении. Контрольные операции, проводимые при разбивке свайного ограждения, приведены в таблице 5.

Таблица 5 - Контрольные операции по разбивке свайного ограждения

Кто контролирует

Мастер или прораб

Операции, подлежащие контролю

Операции по разбивке свайного ограждения

Состав контроля (что контролировать

Разбивка свайного ограждения в соответствии с проектом с привязкой к опорной геодезической сети

Закрепление на поверхности земли центров свай забивкой проволочных штырей (арматурных стержней)

Правильность разбивки свайного ограждения в соответствии с проектом и проверка привязки свайного ограждения к опорной геодезической сети

Способ контроля

Визуально, линейными измерениями, стальной рулеткой

Визуально, линейными измерениями, стальной рулеткой

Визуально, линейными измерениями, стальной рулеткой

Сроки контроля

В период разбивки свайного ограждения

Кто привлекается к проверке

Геодезист

Наличие акта на скрытые работы (+)

-

-

-

3.11 Последовательность проведения операционного контроля при бурении скважин и при подготовке их к бетонированию следующая:

- в процессе производства работ по бурению скважин производителем работ должен вестись соответствующий журнал (приложение А), записи в котором должны контролироваться представителем авторского надзора;

- при бурении скважин из каждого слоя разбуриваемых грунтов, не реже, чем через 2 м по глубине, должны отбираться и маркироваться образцы грунта нарушенной или ненарушенной структуры. Способ отбора образцов грунта не регламентируется. Образцы должны сохраняться до оформления актов приемки сваи;

- по мере необходимости в процессе бурения скважин для установления соответствия данных изысканий результатам, полученным при бурении скважины, в порядке авторского надзора должны производиться освидетельствования грунтов представителем организации, производившей инженерно-геологические изыскания на строительной площадке;

- в процессе бурения необходимо осуществлять постоянный контроль за положением режущего наконечника обсадных труб относительно рабочего органа в зависимости от характера разбуриваемых пород;

- по окончании бурения должны быть проконтролированы глубина скважины и качество зачистки забоя скважины путем медленного опускания на забой рабочего органа и пробного забора бурового шлама со дна скважины. Этот вид контроля должен осуществляться в присутствии производителя работ и представителя авторского надзора.

3.12 По окончании бурения следует проверить соответствие проекту фактические размеры скважин, отметки их устья, забоя и расположение каждой скважины в плане, а также установить соответствие типа грунта основания данным инженерно-геологических изысканий (при необходимости с привлечением геолога).

3.13 При бетонировании насухо перед установкой арматурного каркаса и после должно быть произведено освидетельствование скважины на наличие рыхлого грунта в забое, осыпей, вывалов, воды и шлама.

3.14 При бетонировании скважин контролируют:

- заполнение журнала изготовления буронабивных свай по приложению А, записи в котором проверяются представителем авторского надзора;

- готовность пробуренной скважины к установке арматурного каркаса и бетонированию, соответствие изготовленного арматурного каркаса проекту, а затем и всего свайного поля из буронабивных свай с составлением актов по формам, представленным в приложении Б;

- закрепление арматурного каркаса в проектном положении с целью предотвращения его подъема и смещения в плане при укладке бетонной смеси и извлечении бетонолитной или обсадной трубы;

- герметичность стыков бетонолитной трубы перед началом работ по бетонированию скважины;

- подвижность укладываемой бетонной смеси по осадке нормального конуса в соответствии с ГОСТ 10181.1-81 путем отбора проб бетонной смеси, взятых при укладке в скважину первой ее порции и затем по окончании укладки каждых 5 м3;

- интенсивность укладки бетонной смеси;

- уровень бетонной смеси в бетонолитной трубе и в скважине:

- уровни нижних концов бетонолитной и обсадной трубы (режущего наконечника) в целях соблюдения указаний п.п. 2.32, 2.35 и 2.37 о минимальном заглублении обсадной и бетонолитных труб в бетон;

- температуру укладываемой бетонной смеси в зимних условиях;

- температуру бетонной смеси в оголовке сваи при электропрогреве, измеряемую техническими термометрами или термисторами типа ММТ-4, закладываемыми в бетон. В течение первых 4 ч после начала прогрева температуру следует измерять через каждый час, а в период изотермического прогрева и остывания - в соответствии с указаниями СНиП 3.03.01-87, п. 2.62;

- соответствие фактического режима твердения бетонной смеси в период прогревания. Результаты замеров температур должны фиксироваться в рабочих журналах.

- соответствие объема уложенной бетонной смеси и объема столба бетона в обсадной трубе;

- соответствие бетонной смеси заданной марке (должно проверяться производителем работ по паспорту бетонного завода);

- качество укладки бетонной смеси в скважину, применяя метод гамма-каротажа с использованием приборов типа СП (свайный плотномер). При наличии указанного прибора такому контролю следует подвергать не менее 10 % от общего количества изготавливаемых буронабивных свай. Контроль качества укладки бетонной смеси в скважину этим способом должен производиться специально обученным персоналом, имеющим удостоверение на право выполнения таких работ;

- время начала и окончания бетонирования с записью в соответствующем журнале работ. Там же фиксируются вынужденные перерывы в бетонировании, их причины и продолжительность.

3.15 Операционный контроль качества бетона в буронабивных сваях должен производиться склерометрическим методом и методом контрольного разбуривания с отбором кернов и их последующим испытанием согласно ГОСТ 10180-90. Вместо последнего метода контроль качества бетона может осуществляться также методом скоростного разбуривания ствола сваи, основанным на зависимости скорости бурения от прочности разбуриваемого бетона.

Число свай, подвергающихся испытаниям склерометрическим методом, должно составлять не менее 10 % от общего числа свай в фундаменте сооружения. Контрольному бурению должно подвергаться 2 % от общего числа, но не менее трех однотипных свай.

Выбуривание кернов в буронабивных сваях должно производиться в возрасте бетона не менее 28 суток коронками диаметром 110 мм. В намеченной для контрольного разбуривания свае бурится одна вертикальная скважина на глубину 0,5 м ниже подошвы сваи. При этом производить описание выбуренных кернов и составлять колонку скважины с указанием длины кернов, выхода керна в процентах пористости и других признаков, характеризующих состояние бетона. Выбуренные керны, имеющие длину равную или больше их диаметра, испытываются на сжатие.

При наличии дефектов в бетоне или при малом выходе керна представителем проектной организации может быть назначена проверка плотности бетона путем опрессовки.

3.16 Приемочный контроль качества выполненных работ по изготовлению буронабивных свай должен производиться до начала устройства ростверков на основании следующих материалов;

- проекта свайного ограждения с планом расположения буронабивных свай;

- актов приемки материалов;

- актов лабораторных испытаний контрольных бетонных кубиков, изготовленных как на заводе, так и на строительной площадке;

- актов контрольной проверки качества укладки бетонной смеси в скважину, выполненной методом гамма-каротажа;

- актов лабораторных испытаний бетонных кернов, выбуренных из стволов буронабивных свай;

- акта и заключения по проведенным статическим испытаниям опытных буронабивных свай;

- исполнительной схемы расположения осей выполненных свай с указанием отклонений от проектного положения в плане и результатов нивелировки оголовков свай;

- актов на скрытые работы;

- журналов изготовления буронабивных свай.

При приемке изготовленных буронабивных свай должно проверяться соответствие выполненных работ требованиям проекта, СНиП 3.02.01-87 и настоящей технологической карты с составлением акта, в котором должны быть отмечены все выявленные дефекты и предусмотрены способы их устранения.

В соответствии с ГОСТ 5686-94* на каждой строительной площадке с целью проверки несущей способности буронабивных свай по материалу и грунту должны назначаться статические испытания свай. Испытаниям должны подвергаться 2 % от общего числа свай в фундаменте, но не менее двух однотипных свай. Включение испытуемых свай в число рабочих допускается при наличии специального заключения соответствующей научно-исследовательской организации.

3.17 Допускается не проводить статических испытаний буронабивных свай в тех случаях, когда в районе строительства проводились испытания подобных свай в аналогичных грунтовых условиях.

3.18 По окончании бурения следует проверить соответствие проекту фактические размеры скважин, отметки их устья, забоя и расположение каждой скважины в плане, а также установить соответствие типа грунта основания данным инженерно-геологических изысканий (при необходимости с привлечением геолога).

3.19 Производственный контроль технологических процессов устройства буронабивных свай выполняется с целью обеспечения нормативного уровня устройства свайных оснований и повышения надежности возводимых объектов.

Технологические процессы устройства буронабивных свай, контролируемые на строительных объектах бригадирами, мастерами, ведущими мастерами и др., приведены в таблице 6.


Таблица 6 - Перечень технологических процессов, подлежащих обязательному контролю при изготовлении участка ограждения из опережающих и пересекающих буронабивных свай

Технологический процесс

Ответственный за выполнение работ

Вид контроля

Содержание контроля

Метод и средства контроля

Время контроля

Контролирующее лицо

Документация

Составитель документа

1

2

3

4

5

6

7

8

9

1. Подготовительные работы

Подготовительные работы

Бригадир, мастер

Входной

Проверка и устранение неровностей рабочей площадки

Визуально, нивелир

В процессе работ

Ведущий мастер, сменный технолог

Журнал производства работ

Мастер

Вынос опорных точек и разбивочных осей свай в натуру

Маркшейдер

Операционный

Проверка соответствия разбивки осей свай проекту и привязка к опорной геодезической сети (наличие и сохранность разбивочных знаков)

Осмотр на местности, сравнение с разбивочной схемой или проектом выноса в натуру, проверка геодезическим инструментом

При получении документации от заказчика перед началом работы

Маркшейдер, представитель технического надзора заказчика

Акт приемки разбивки осей свай

Мастер, маркшейдер

2. Бурение скважины

Бурение скважины

Бригадир, мастер

Операционный

Тангенс угла отклонения вертикальной оси скважины от проектного положения не должен превышать 1/100 (отклонения стены скважины от положения отвеса не должны превышать 10 см на каждые 10 м глубины скважины)

Визуально, стальной метр, отвес

В процессе бурения и после окончания

Ведущий мастер, сменный технолог

Журнал изготовления буронабивных свай

Мастер

Бурение скважины с погружением инвентарной обсадной трубы

Бригадир, мастер

Операционный

Точность погружения обсадной трубы на проектную отметку

Визуально, стальной метр, отвес

В процессе бурения и после окончания

Ведущий мастер, сменный технолог

Журнал изготовления буронабивных свай

Мастер

Зачистка дна скважины

Мастер

Операционный

Тщательность зачистки дна скважины

Визуально

По окончании бурения скважины

Ведущий мастер, сменный технолог

Журнал изготовления буронабивных свай

Мастер

3. Изготовление и установка арматурного каркаса в обсадную трубу

Изготовление каркасов

Мастер, лаборант строительной лаборатории

Операционный

Точность раскладки заготовленных стержней в шаблоне по разметке. Выверка собранных каркасов по чертежам. Контроль качества сварных швов

Визуально, стальной метр, шаблон, лабораторные испытания

Во время изготовления каркасов

Ведущий мастер, строительная лаборатория, сменный технолог, технический надзор заказчика

Запись в журнале арматурных работ, акт освидетельствования арматурных каркасов

Мастер, лаборант

Установка арматурного каркаса в обсадную трубу

Мастер

Операционный

Точность установки в проектное положение арматурного каркаса. Соответствие допусков проектным. Проверка качества сварки в стыковочных элементах

Визуально, отвес

Во время установки, после окончания монтажа каркаса

Ведущий мастер, сменный технолог

Журнал изготовления буронабивных свай, акт освидетельствования арматурного каркаса

Мастер

4. Бетонирование скважины

Сборка секций вертикально перемещающихся труб (ВПТ) из звеньев

Мастер

Операционный

Контроль герметичности стыков труб. Бетонолитные трубы должны быть оборудованы предохранительным клапаном, соединения труб должны быть герметичными и быстроразъемными

Визуально

До начала установки ВПТ в обсадную трубу

Ведущий мастер, сменный технолог

Журнал изготовления буронабивных свай

Мастер

Установка ВПТ в обсадную трубу

Мастер

Операционный

Точность установки ВПТ в проектное положение

Визуально

До начала бетонирования

Ведущий мастер, сменный технолог

Журнал изготовления буронабивных свай

Мастер

Заполнение бетоном скважины

Мастер

 

Марка и консистенция бетона. Объем уложенного бетона, непрерывность бетонирования и температура бетонной смеси (в зимних условиях). Уровень бетонной смеси в воронке. Бетонирование захватки производится непрерывно до прекращения прохождения смеси, после чего бункер вместе с бетонолитной трубой поднимается, затем демонтируется необходимое количество секций бетонолитной трубы и снова устанавливается бункер и продолжается бетонирование захватки. Нижний конец бетонолитной трубы во время бетонирования и демонтажа труб должен быть заглублен

Лабораторные испытания

В процессе бетонирования

Ведущий мастер, строительная лаборатория, сменный технолог

Журнал изготовления буронабивных свай

Мастер

Выдерживание бетона в скважине

Ведущий мастер, бригадир, лаборант строительной лаборатории

Операционный

Температурно-влажностной режим твердения бетона

Термометр

В процессе бетонирования и во время твердения бетона

Строительная лаборатория, сменный технолог

Журнал изготовления буронабивных свай

Мастер

5. Отклонения положения оголовков свай

Устройство оголовков свай

Мастер, бригадир

Приемочный

Проверка отклонения оголовков свай от проектного положения по вертикали допускается в сторону завышения отметки оголовка до 10 см, а в сторону занижения - 20 см

Нивелир

При изготовлении оголовков свай

Ведущий мастер, сменный технолог

Журнал изготовления буронабивных свай

Мастер

Заделка оголовков свай в бетон ростверка (без учета подготовки)

Мастер, бригадир

Приемочный

Проверка толщины слоя бетона заделки оголовка свай

Нивелир, стальной метр

При заделке оголовков свай и устройстве бетонной подготовки

Ведущий мастер, сменный технолог

Журнал изготовления буронабивных свай

Мастер


4 ТРЕБОВАНИЯ ТЕХНИКИ БЕЗОПАСНОСТИ И ОХРАНЫ ТРУДА, ЭКОЛОГИЧЕСКОЙ И ПОЖАРНОЙ БЕЗОПАСНОСТИ

4.1 При устройстве ограждений из опережающих и пересекающих буронабивных свай должны соблюдаться требования охраны труда и техники безопасности в соответствии со СНиП 12-03-2001, СНиП III-4-80* и нормативными актами организаций, требования которых не должны противоречить СНиП.

(Измененная редакция).

4.2 Работы по устройству ограждений из опережающих и пересекающих буронабивных свай должны выполняться под руководством руководителей работ (начальника участка, прораба, мастера), назначенных приказом. На них также возлагается ответственность за выполнение мероприятий по технике безопасности и промсанитарии, охране труда, экологической и пожарной безопасности.

4.3 На местах производства работ должны быть вывешены плакаты с графическим изображением схем строповки, а также таблица масс поднимаемых грузов и предельных вылетов крана.

4.4 На границах опасных зон должны быть установлены предохранительные защитные и сигнальные ограждения, а также знаки безопасности (п. 4.10, СНиП 12-03-2001), хорошо видимые в любое время суток. Находиться в этих зонах посторонним лицам запрещается.

Границы опасных зон (приложение «Г» СНиП 12-03-2001) в местах, над которыми происходит перемещение грузов подъёмными кранами, а также вблизи строящегося здания принимаются от крайней точки горизонтальной проекции наружного наименьшего габарита перемещаемого груза или стены здания с прибавлением наибольшего габаритного размера перемещаемого (падающего) груза и минимального расстояния отлёта груза при его падении и может быть выражено формулой:

Rоп.з = Rвыл. + 0,5Bгр. + Lгр. + А,

где Rвыл. - вылет стелы, м; Вгр. - наименьший габарит перемещаемого груза, Lгр. - наибольший габаритный размер перемещаемого (падающего) груза; А - минимальное расстояние отлёта груза при его падении.

(Измененная редакция).

4.5 Экскаватор и бурильные машины должны устанавливаться на спланированной площадке. Запрещается производить какие-либо работы и находиться людям вблизи зоны ограниченной радиусом действия, увеличенным на 5 м. Погрузка грунта в автосамосвалы при помощи экскаватора должна производиться со стороны заднего или бокового борта.

4.6 Конструктивные элементы (дорожные плиты, секции обсадных труб, арматурные каркасы и др.) во время перемещения должны удерживаться от раскачивания и вращения оттяжками из пенькового каната. При этом рабочим следует находиться вне контура устанавливаемого элемента (груза) со стороны, противоположной подаче их краном. Поданный элемент опускают над местом его установки не более, чем на 0,3 м проектной отметки, после чего рабочие наводят его на место установки. После опускания конструктивного элемента в проектное положение и его надежного закрепления разрешается снять строповочные приспособления и приступить к очередным операциям.

4.7 Производство буровых работ вблизи подземных коммуникаций, а также в местах обнаружения взрывоопасных материалов или в местах с патогенным заражением почвы допускается только при выполнении следующих условий:

- перед началом производства земляных работ на участках с возможным патогенным заражением почвы (свалка, кладбище, скотомогильники и т.п.) необходимо получить разрешение органов Государственного санитарного надзора;

- при обнаружении взрывоопасных материалов земляные работы в этих местах следует немедленно прекратить до получения разрешения от соответствующих органов.

4.8 Монтаж, демонтаж и перемещение буровых машин при ветре 15 м/с и более или грозе не допускается.

4.9 Техническое состояние буровых машин (надежность крепления узлов, исправность связей и рабочих настилов) необходимо проверять перед началом каждой смены.

4.10 Каждая буровая машина должна быть оборудована звуковой сигнализацией. Перед пуском ее в действие необходимо подавать звуковой сигнал.

4.11 Для обеспечения безопасности эксплуатации буровой машины на ней должен быть установлен ограничитель высоты подъема бурового инструмента или грузозахватного приспособления.

4.12 Не разрешается работать буровым инструментом с незавернутыми до конца и незакрепленными резьбовыми соединениями.

4.13 Перед началом осмотра, смазки, чистки или устранения каких-либо неисправностей буровой машины буровой инструмент должен быть поставлен в устойчивое положение, а двигатель выключен.

4.14 Пробуренные скважины при прекращении работ должны быть надежно закрыты щитами или ограждены. На щитах и ограждениях должны быть установлены предупредительные знаки и сигнальное освещение.

4.15 Передвижение буровой машины должно производиться по спланированной площадке при опущенном рабочем органе.

4.16 В период погружения и извлечения обсадных труб лица, непосредственно не участвующие в выполнении данных работ, к буровой машине на расстояние менее полуторной ее высоты не допускаются.

4.17 Подавать обсадные трубы, арматурные каркасы и бетонолитные трубы на рабочие места необходимо в технологической последовательности, обеспечивающей безопасность работ.

4.18 Пожарную безопасность на строительной площадке, участках работ и рабочих местах следует обеспечивать в соответствии с требованиями ППБ 01-93**.

(Измененная редакция).

4.19 Электробезопасность на строительной площадке, участках работ и рабочих местах должна быть обеспечена в соответствии с требованиями СНиП 12-03-2001.

(Измененная редакция).

4.20 На территории строящихся и реконструируемых объектов не допускается непредусмотренной проектной документацией сведение древесно-кустарниковой растительности и засыпка грунтом корневых шеек и стволов растущих деревьев и кустарника. Сохраняемые деревья должны быть ограждены.

4.21 В зоне устройства буронабивных свай почвенный слой, пригодный для последующего использования, должен быть предварительно снят и складирован в специально отведенных местах с последующим использованием для рекультивации земель.

4.22 Запрещается применение оборудования, являющегося источником выделения вредных веществ в атмосферный воздух, почву и водоемы и повышенных уровней шума и вибрации.

4.23 На участке чистки и мойки обсадных и бетонолитных труб рекомендуется организовать оборотное водоснабжение, при этом должен быть организован сбор тяжелых взвесей (цементного молока, песка, глины и т.д.), которые должны быть вывезены со строительной площадки.

4.24 Выпуск воды со стройплощадок непосредственно на склоны без надлежащей защиты от размыва не допускается. Производственные и бытовые стоки, образующиеся на стройплощадке, должны очищаться и обезвреживаться согласно указаниям ПОС ППР.

4.25 Поверхность территории стройплощадки после окончания всех работ должна соответствовать проектным отметкам и засеяна газонной травой. Необходимо также высадить зеленые насаждения, кустарники и деревья.

4.26 Предельно допустимые концентрации веществ в воздухе рабочей зоны, а также уровни шума и вибрации на рабочих местах не должны превышать установленным в ГОСТ 12.1.003-83*, ГОСТ 12.1.005-88, ГОСТ 12.1.012-90.

Контроль за соответствием гигиенических нормативов условий труда следует осуществлять при приведении аттестации рабочих мест по условиям труда в соответствии с Положением о порядке проведения аттестации рабочих мест по условиям труда.

4.27 В сложившихся стесненных условиях производства работ в г. Москве необходимо осуществлять мероприятия по охране окружающей природной среды согласно «Правилам производства земляных и строительных работ, прокладки и переустройства инженерных сетей и коммуникаций в г. Москве» (Постановление правительства Москвы от 08.08.2000 г. № 603).

5 ПОТРЕБНОСТЬ В МАТЕРИАЛЬНО-ТЕХНИЧЕСКИХ РЕСУРСАХ

5.1 Потребность в машинах, оборудовании, технологической оснастке, инструменте и приспособлениях.

5.1.1 Перечень потребных машин и механизмов для устройства ограждений из опережающих и пересекающих буронабивных свай приведен в таблице 7, а технологической оснастки, инструментов, приборов, инвентаря и приспособлений - в таблице 8.

5.1.2 Необходимое отечественное буровое оборудование может быть подобрано по данным таблиц 2, 3 и 4. Технические характеристики импортных буровых машин приведены в «Методическом пособии по устройству ограждений из буронабивных свай» ОАО ПКТИпромстрой, М.

Таблица 7 - Перечень машин и механизмов

№ п/п

Наименование машин, механизмов и оборудования

Тип, марка

Техническая характеристика

Назначение

Кол. на звено (бригаду), шт.

1

2

3

4

5

6

1

Буровая машина

 

См. табл. 4 - 6

Предназначена для бурения скважин, погружения и извлечения обсадных труб и т.д.

1

2

Комплект бурильного инструмента

 

 

Предназначен для бурения скважин для устройства буронабивных свай

1

3

Автомобильный кран

КС-3577

Грузоподъемность, т          12,5

Длины стрелы, м             8 - 14

Удлинитель, м                        2

Гусек, м                                 7

Шасси:                     МАЗ-5334

Предназначен для разгрузки и укладки дорожных плит в дело, а также для разгрузки секций инвентарных обсадных и бетонолитных труб, разгрузки секций арматурных каркасов буронабивных свай длиной 5 и 10 м, подачи арматурных каркасов в скважину и др.

1

4

Экскаватор одноковшовый с обратной лопатой

ЭО-2626

Шасси:      МТ3-80 или МТ3-50

Мощность, кВт                     55

Вместимость ковша обратной лопаты, м3                         0,28

Масса, кг                          7500

Предназначен для разработки грунта приямков под монолитную железобетонную форшахту и для погрузки грунта в автосамосвалы

1

5

Автомобиль-самосвал

ЗИЛ-4508

Грузоподъемность, кг        5500

Вместимость платформы, м3 3,8

Мощность двигателя, кВт   136 (185 л.с.)

Максимальная скорость, км/ч 90

Полная масса, кг             11815

Предназначен для перевозки грунта со строительной площадки при устройстве форшахты и бурении скважин

В зависимости от дальности перевозки

6

Бортовой автомобиль

ЗИЛ-432900

Грузоподъемность, кг        6000

Мощность, кВт (л.с.)    77 (105)

Максимальная скорость, км/ч 80

Полная масса, кг             11000

Предназначен для перевозки различных грузов по всем видам дорог и местности

1

7

Автобетононасос

СБ-170-1

Шасси - КамАЗ-53213

Тип привода - гидравлический

Мощность привода, кВт        95

Подача, м3                         65

Диаметр бетоновода, мм      120

Масса, кг                        16500

Предназначен для приема бетонной смеси и транспортирования ее к месту укладки с помощью бетонораспределительной стрелы

1

8

Автоцистерна

АЦПТ-6,5

Шасси - УРАЛ-5557-10

Вместимость цистерны, л   6500

Максимальная скорость, км/ч 75

Полная масса, кг             16440

Предназначена для перевозки питьевой воды по всем видам дорог и местности, имеет термоизоляцию

1

9

Автобетоносмеситель

СБ-216

Геометрический объем смесительного барабана, м3   10

Емкость смесительного барабана по выходу готовой бетонной смеси, м3           5 ¸ 6

Темп выгрузки, м3/мин:  0,5 - 2

Базовый автомобиль    КАМАЗ-5410

Предназначен для доставки и подачи бетонной смеси в тело сваи

В зависимости от дальности перевозки

10

Приемная воронка

 

 

Предназначена для приема бетона в бетонолитную трубу

1

11

Вибратор ручной глубинный электрический с гибким валом

ИВ-117 или ИВ-117А

Длина вибронаконечника, мм                                          410

Длина гибкого вала, мм    3005

Мощность, кВт                    0,8

Напряжение питания, В       ~ 40

Частота тока, Гц                    50

Масса, кг                          31,5

Предназначен для уплотнения бетона

3

12

Трансформатор для подключения вибратора

ТСЗИ-2,5

Мощность, кВт                    2,5

Масса, кг                             41

Предназначен для питания вибраторов

1

13

Трансформатор сварочный общепромышленного назначения

СТ-500

Напряжение питания, В        380

Пределы регулирования сварочного тока, А     100 - 500

Номинальный сварочный ток, А                                          500

Диаметр электрода, мм      3 - 8

Продолжительность включения, %                                         35

Размеры, мм:

длина                             560

ширина                          570

высота                           700

Масса, кг                           155

Предназначен для питания сварочной дуги при сварке арматуры

1

14

Устройство для свинчивания обсадных труб

 

 

Предназначено для свинчивания и развинчивания обсадных труб диаметром 800 мм

1

Таблица 8 - Перечень технологической оснастки, инструмента, инвентаря и приспособлений

№ п/п

Наименование оснастки, инструмента, инвентаря и приспособлений

Марка, ГОСТ, ТУ или организация-разработчик, номер рабочего чертежа

Техническая характеристика

Назначение

Кол. на звено (бригаду), шт.

1

2

3

4

5

6

1

Инвентарная металлическая опалубка для оголовков буронабивных свай в виде обечаек

 

Диаметр обечаек, мм 850

Длина, мм                 500

Толщина, мм                6

Предназначена для использования в качестве опалубки при устройстве монолитного оголовка и является кондуктором при бурении

Один на сваю

2

Обсадные трубы инвентарные

 

Длина труб, м      2, 4 и 6

Предназначены для обсадки скважины

Один комплект

3

Приемный бункер

 

 

Предназначен для приема бетона из автобетоносмесителя и направления смеси в бетонолитную трубу

1

4

Бетонолитные трубы

 

Диаметр труб, мм   250 ¸ 325

Предназначены для подачи бетона в буровую скважину

Один комплект

5

Машина ручная сверлильная

Насадка-щетка

ИЭ-1202

Мощность, Вт            210

Род тока - переменный

Напряжение, В           220

Частота тока, Гц          50

Масса, кг                 1,85

Предназначена для механизированной очистки обсадных труб

1

6

Щетка ручная

 

 

Предназначена для ручной очистки обсадных труб

3

7

Лопата штыковая

 

 

Предназначена для зачистки грунта у буровых скважин

5

8

Лопата совковая

 

 

Предназначена для подбора бетонной смеси

5

9

Строп двухветвевой

2СК-1,6

ГОСТ 25573-82*

Грузоподъемность, т   1,6

Длина, м                    1,1

Предназначен для подачи армокаркасов в буровую скважину

1

10

Строп двухветвевой

2СК-5,0

ГОСТ 25573-82*

Грузоподъемность, т   5,0

Длина, м                    2,5

Предназначен для погрузочно-разгрузочных работ

1

11

Теодолит (с комплектом принадлежностей)

Т2

ГОСТ 10529-96

 

Предназначен для измерения горизонтальных и вертикальных углов (зенитных состояний)

1

12

Нивелир (с комплектом принадлежностей)

Н-5КЛ

ГОСТ 10528-90

 

Предназначен для определения превышений методом геометрического нивелирования по вертикальным рейкам

1

13

Метр стальной

 

 

Предназначен для линейных измерений

1

14

Прибор для контроля качества укладки бетонной смеси (свайный плотномер)

Типа СП

 

Предназначен для контроля качества укладки бетонной смеси

1

15

Специальная мерная нить

 

Длина, м                     50

Предназначена для определения глубины пробуренной скважины

1

16

Лот

 

Масса, кг                     3

Предназначен для создания натяжения мерной нити при определении глубины скважины

1

5.2 Потребность в материалах, изделиях и конструкциях.

5.2.1 Потребность в материалах, изделиях и конструкциях приведена в таблице 9.

Таблица 9 - Ведомость потребности в материалах, изделиях и конструкциях

№ п/п

Наименование материалов, изделий и конструкций (марка, ГОСТ, ТУ)

Ед. изм.

Количество на одну буронабивную сваю

Объем работ в нормативных единицах

Потребность на измеритель конечной продукции*

опережающую

секущую

1

Армокаркас

шт./т

-

1

0,56

1

0,56

1

0,56

2

Бетонная смесь

м3

7,03

7,03

14,06

14,06

3

Трубы обсадные Æ 800 м

м/т

14

0,49

14

0,49

4

Трубы бетонолитные Æ 250 - 325 мм

м/т

14

1,12

14

1,12

5

Трубы для временного водопровода

м

5

5

10

10

6

Железобетонные дорожные плиты размерами 3´1,2´0,6 м

шт.

4

4

8

8

* Измерителем конечной продукции является участок ограждения из одной опережающей (бетонной) буронабивной сваи и одной пересекающей (железобетонной) буронабивной сваи диаметром по 800 мм, длиной 14 м.

6 ТЕХНИКО-ЭКОНОМИЧЕСКИЕ ПОКАЗАТЕЛИ

6.1 Затраты труда и машинного времени на устройство участка ограждения из одной опережающей и одной пересекающей буронабивных свай подсчитаны по действующим «Единым нормам и расценкам на строительные, монтажные и ремонтно-строительные работы» и представлены в таблице 10.

6.2 График производства работ на устройство участка ограждения из одной опережающей и одной пересекающей буронабивных свай диаметром по 800 мм, длиной по 14 м представлен в таблице 11.

6.3 Технология позволяет совмещать работы буровой установки по устройству свай с работами автомобильного крана по разгрузке, складированию и перемещению обсадных и бетонолитных труб, арматурных каркасов и железобетонных дорожных плит в зону бурения.

6.4 Принятые составы звеньев для выполнения работ по устройству свайного участка ограждения приведены в таблице 11.

Работы по изготовлению каждой сваи должны выполняться непрерывно.

6.5 Технико-экономические показатели на устройство участка ограждения из одной опережающей (бетонной) буронабивной сваи и одной пересекающей (железобетонной) буронабивной сваи диаметром по 800 мм и длиной по 14 м с учетом данных таблиц 10 и 11 и приведены в таблице 12.

Таблица 10 - Калькуляция затрат труда и машинного времени на устройство участка ограждения из одной опережающей (бетонной) буронабивной сваи и одной пересекающей (железобетонной) буронабивной сваи

Измеритель конечной продукции участок ограждения из одной опережающей и одной пересекающей буронабивных свай

№ п/п

Обоснование (ЕНиР и др. нормы)

Наименование технологического процесса

Ед. изм.

Объем работ

Нормы времени

Затраты труда

рабочих, чел.-ч

машиниста, чел.-ч (работа машин, маш.-ч)

рабочих, чел.-ч

машиниста, чел.-ч (работа машин, маш.-ч)

1

2

3

4

5

6

7

8

9

I Опережающая (бетонная) свая

1

Е 2-1-9 табл. 3, № 1в

Разработка грунта приямка для оголовка сваи экскаватором, оборудованным обратной лопатой, с погрузкой в транспортные средства

100 м3 грунта

0,016

-

4,3 (4,3)

-

0,07 (0,07)

2

Е 12-71 табл. 1, № 2

Установка направляющего кондуктора в приямок

1 установка

1

-

0,54 (0,18)

-

0,54 (0,18)

3

Е 12-67

Забор грунта, извлечение грейфера с грунтом из скважины, опорожнение грунта из грейфера в автосамосвал при ударном (грейферном) способе бурения.

В том числе:

1 м скважины

14

 

 

15,15

45,45 (15,15)

табл. 3, № 1в

- глубина скважины до 5 м

5

0,97

2,91 (0,97)

4,85

14,55 (4,85)

табл. 3, № 2в

- глубина скважины свыше 5 м до 10 м

 

5

1,1

3,3 (1,1)

5,5

16,5 (5,5)

табл. 3, № 3в

- глубина скважины свыше 10 м до 15 м

 

4

1,2

3,6 (1,2)

4,8

14,4 (4,8)

4

Е 1-5

№ 1а, б

Разгрузка, складирование и перемещение обсадных труб в зону действия бурильной машины

100 т

0,015

22

11 (11)

0,32

0,16 (0,16)

5

Е 12-67 табл. 2, № 1

Установка ножевой секции обсадной трубы

1 секция

1

1,1

3,3 (1,1)

1,1

3,3 (1,1)

6

Е 12-67 табл. 2, № 2

Наращивание обсадной трубы

1 секция

3

1,3

3,9 (1,3)

3,9

11,7 (3,9)

7

Е 12-67 табл. 5, в

Погружение секций обсадной трубы (длиной 2,4, 6 и 2 м)

1 м погружения

14

0,35

1,05 (0,35)

4,9

14,7 (4,9)

8

Е 12-73, № 1

Установка обсадного патрубка

1 установка

1

0,24

0,12 (0,12)

0,24

0,12 (0,12)

9

Е 12-74, № 1

Установка бетонолитной трубы

1 бетонолитная труба

1

0,46

0,23 (0,23)

0,46

0,23 (0,23)

10

Е 12-74, № 2

Бетонирование сваи

1 м3 бетона в деле

7,03

0,12

0,06 (0,06)

0,84

0,42 (0,42)

11

Е 12-74, № 3

Снятие бетонолитной трубы

1 бетонолитная труба

1

0,28

0,14 (0,14)

0,28

0,14 (0,14)

12

Е 12-73, № 6

Снятие обсадного патрубка

1 снятие

1

0,14

0,07 (0,07)

0,14

0,07 (0,07)

13

Е 12-67 табл. 8

Извлечение и снятие секций обсадной трубы

1 м обсадной трубы

14

0,11

0,33 (0,11)

1,54

4,62 (1,54)

Итого:

28,87

81,52 (27,98)

II Пересекающая (железобетонная) свая

14

Е2-1-9 табл. 3, № 1в

Разработка грунта приямка для оголовка сваи экскаватором, оборудованным обратной лопатой с погрузкой в транспортные средства

100 м3 грунта

0,016

-

4,3 (4,3)

-

0,07 (0,07)

15

Е 12-71 табл. 1, № 2

Установка направляющего кондуктора в приямок

1 установка

1

-

0,54 (0,18)

-

0,54 (0,18)

16

Е 12-67

Забор грунта, извлечение грейфера с грунтом из скважины, опорожнение грунта из грейфера в автосамосвал при ударном (грейферном) способе бурения.

В том числе:

1 м скважины

14

 

 

15,15

45,45 (15,15)

табл. 3, № 1в

- глубина скважины до 5 м

 

5

0,97

2,91 (0,97)

4,85

14,55 (4,85)

табл. 3. № 2в

- глубина скважины свыше 5 м до 10 м

 

5

1,1

3,3 (1,1)

5,5

16,5 (5,5)

табл. 3, № 3в

- глубина скважины свыше 10 м до 15 м

 

4

1,2

3,6 (1,2)

4,8

14,4 (4,8)

17

Е 1-5

№ 1а, б

Разгрузка, складирование и перемещение обсадных труб в зону действия бурильной машины

100 т

0,015

22

11 (11)

0,32

0,16 (0,16)

18

Е 1-5

№ 1а, б

Разгрузка, складирование и перемещение элементов арматурного каркаса 15 зону бурения

100 т

0,0056

22

11 (11)

0,12

0,06 (0,06)

19

Е 12-67 табл. 2, № 1

Установка ножевой секции обсадной трубы

1 секция

1

1,1

3,3 (1,1)

1,1

3,3 (1,1)

20

В 12-67 табл. 2, № 2

Наращивание обсадной трубы

1 секция

3

1,3

3,9 (1,3)

3,9

11,7 (3,9)

21

Е 12-67 табл. 5, в

Погружение секций обсадной трубы (длиной 2,4, 6 и 2 м)

1 м погружения

14

0,35

1,05 (0,35)

4,9

14,7 (4,9)

22

Е 12-73, № 1

Установка обсадного патрубка

1 установка

1

0,24

0,12 (0,12)

0,24

0,12 (0,12)

23

Е 12-67 табл. 6, № 1

Установка нижней секции арматурного каркаса длиной 7 м в обсадную трубу с установкой ограничителей

1 секция

1

0,54

1,62 (0,54)

0,54

1,62 (0,54)

24

Е 12-67 табл. 6, № 2

Наращивание арматурного каркаса, включая электросварку стыка

1 секция

1

3,4

10,2 (3,4)

3,4

10,2 (3,4)

25

Е 12-72

Установка арматурного каркаса в скважину

1 арматурный каркас

1

0,32

0,16 (0,16)

0,32

0,16 (0,16)

26

Е 12-74, № 1

Установка бетонолитной трубы

1 бетонолитная труба

1

0,46

0,23 (0,23)

0,46

0,23 (0,23)

27

Е 12-74, № 2

Бетонирование сваи

1 м3 бетона в деле

7,03

0,12

0,06 (0,06)

0,84

0,42 (0,42)

28

Е 12-74, № 3

Снятие бетонолитной трубы

1 бетонолитная труба

1

0,28

0,14 (0,14)

0,28

0,14 (0,14)

29

Е 12-73, № 6

Снятие обсадного патрубка

1 снятие

1

0,14

0,07 (007)

0,14

0,07 (0,07)

30

Е 12-67, табл. 8

Извлечение и снятие секции обсадной трубы

1 м обсадной трубы

14

0,11

0,33 (0,11)

1,54

4,62 (1,54)

Итого:

33,25

92,02 (32,14)

Всего:

62,12

173,54 (60,12)


Таблица 11 - График производства работ на устройство участка ограждения из одной опережающей (бетонной) буронабивной сваи и одной пересекающей (железобетонной) буронабивной сваи

Продолжение таблицы 11

Продолжение таблицы 11

Продолжение таблицы 11

Продолжение таблицы 11

Продолжение таблицы 11


Таблица 12 - Технико-экономические показатели на устройство участка ограждения из одной опережающей и одной пересекающей буронабивных свай

№ п/п

Наименование показателя

Ед. изм.

Вид сваи

Всего

опережающая

пересекающая

1

Затраты труда рабочих

чел.-ч

28,87

33,25

62,12

2

Затраты труда машинистов

чел.-ч

81,52

92,02

173,54

3

Работа машин

маш.-ч

27,98

32,14

60,12

4

Затраты на бурение:

- затраты труда рабочих

чел.-ч

15,15

15,15

30,3

- затраты труда машинистов

чел.-ч

45,45

45,45

90,9

5

Затраты на бетонирование:

- затраты труда рабочих

чел.-ч

0,84

0,84

1,68

- затраты труда машинистов

чел.-ч

0,42

0,42

0,84

6

Затраты труда на 1 м3 сваи:

- рабочих

чел.-ч

4,08

4,76

8,84

- машинистов

чел.-ч

11,63

13,11

24,74

7

Продолжительность выполнения работ

ч

27,82

32,04

59,86

7 ИСПОЛЬЗОВАННАЯ ЛИТЕРАТУРА

1 АООТ ПКТИпромстрой. Машины для производства земляных работ. Технические характеристики. Издание второе, переработанное и дополненное. Москва,. 1996.

2 АООТ ПКТИпромстрой. Стреловые самоходные краны. Технические характеристики. Часть 1. Краны автомобильные. Краны на шасси автомобильного типа. Москва, 1996.

3 ОАО ПКТИпромстрой. Методическое пособие по устройству ограждений из буронабивных свай. М., 2000.

4 Ибрагимов М.Н. Опыт устройства буросекущих свай. Основания, фундаменты и механика грунтов. 1999. № 6 С. 23 - 24.

5 Морозов А.А., Мотовилов Э.А., Шейнин В.И. Использование данных радиоизотопных измерений для контроля качества укладки бетона в тело буронабивных свай. Основания, фундаменты и механика грунтов. 1998. № 2. С. 22 - 25.

6 НИИОСП им. Н.М. Герсеванова Госстроя СССР. Руководство по устройству буронабивных свай большого диаметра. Москва, Стройиздат, 1977.

7 ОАО ПКТИпромстрой. Схемы операционного контроля качества выполнения строительно-монтажных работ. Москва, 1997.

8 Ермошкин П.М. Устройство буронабивных свай. Москва, Стройиздат, 1982.

9 Приложение к журналу «Подземное пространство мира». Новое в отечественном и зарубежном строительстве. В.Е. Меркин, Л.В. Маковский. Ограждение котлованов подземных сооружений. Информационный обзор. № 2, 1995. ИНЖИНИРИНГ, МАРКЕТИНГ, РЕКЛАМА. Москва, 1995.

10 Смородинов М.И., Егоров А.И., Губанова Е.М. и др. Свайные работы. Справочник строителя. 2-е издание, переработанное и дополненное. Москва, Стройиздат, 1988.

11 Строительная, дорожная и специальная техника. Краткий справочник. Внешторгиздат. Москва, 1996.

12 Сухачев В.П., Каграманов Р.А. Средства малой механизации для производства строительно-монтажных работ. Справочник строителя. Москва, Стройиздат, 1989.

13 Строительные машины. Справочник в двух томах. Том 1. Машины для строительства промышленных, гражданских сооружений и дорог. 5-е издание, переработанное. Москва, «Машиностроение», 1991.

14 СНиП III-4-80* «Техника безопасности в строительстве».

15 СНиП 2.02.03-85 «Свайные фундаменты».

16 СНиП 3.01.01-85* «Организация строительного производства».

17 СНиП 3.01.03-84 «Геодезические работы в строительстве».

18 СНиП 3.02.01-87 «Земляные сооружения, основания и фундаменты».

19 СНиП 3.03.01-87 «Несущие и ограждающие конструкции».

20 СНиП 12-03-2001 «Безопасность труда в строительстве. Часть 1. Общие требования».

(Измененная редакция).

21 ГОСТ 5686-94* Грунты. Методы полевых испытаний сваями.

22 ГОСТ 10180-90 Бетоны. Методы определения прочности по контрольным образцам.

23 ГОСТ 10181.1-81 Смеси бетонные. Методы определения удобоукладываемости.

24 ГОСТ 10528-90* Нивелиры. Общие технические условия.

25 ГОСТ 10529-96 Теодолиты. Общие технические условия.

26 ГОСТ 23407-78 Ограждения инвентарные строительных площадок и участков производства строительно-монтажных работ. Технические условия.

27 ГОСТ 25573-82* Стропы грузовые канатные для строительства. Технические условия.

28 ГОСТ 12.1.003-83* Шум. Общие требования безопасности.

29 ГОСТ 12.1.005-88 ССБТ. Общие санитарно-гигиенические требования к воздуху рабочей зоны.

30 ГОСТ 12.1.012-90 ССБТ. Вибрационная безопасность. Общие требования.

31 ППБ 01-93** «Правила пожарной безопасности в Российской Федерации».

(Измененная редакция).

32 ПБ 10-382-00 «Правила устройства и безопасной эксплуатации грузоподъемных кранов» Госгортехнадзора России.

33 «Правила эксплуатации электроустановок потребителей».

34 «Межотраслевые правила по охране труда (правила безопасности) при эксплуатации электроустановок». ПОТ РМ-016-2001, РД 153-34.0-03.150-00

(Измененная редакция).

35 «Указания по установке и безопасной эксплуатации грузоподъёмных кранов и строительных подъёмников при разработке ПОС и ППР». ОАО ПКТИпромстрой, 2002 г.

(Измененная редакция).

36 ЕНиР. Единые нормы и расценки на строительные, монтажные и ремонтно-строительные работы. Сборник 1. Внутрипостроечные транспортные работы.

37 ЕНиР. Единые нормы и расценки на строительные, монтажные и ремонтно-строительные работы. Сборник 2. Земляные работы. Выпуск 1. Механизированные и ручные земляные работы.

38 ЕНиР. Единые нормы и расценки на строительные, монтажные и ремонтно-строительные работы. Сборник 12. Свайные работы.

39 Организационно-технологические правила строительства (реконструкции) объектов в стесненных условиях существующей городской застройки. Управление развития генплана г. Москвы, 1998.

40 Правила производства земляных и строительных работ, прокладки и переустройства инженерных сетей и коммуникаций в г. Москве. Постановление правительства Москвы от 08.08.2000 № 603.


Приложение А

(обязательное)

Форма журнала изготовления буронабивных свай (титульный лист)

Наименование строительной организации ____________________________________________________________________________________

Объект __________________________________________________________________________________________________________________

ЖУРНАЛ ИЗГОТОВЛЕНИЯ БУРОНАБИВНЫХ СВАЙ

(с № ___________ по № ______________)

Начало _____________________________________________________ Окончание ________________________________________________

1. Тип бурового станка ____________________________________________________________________________________________________

2. Тип уширителя _________________________________________________________________________________________________________

(последующие страницы)

№ п/п свай по плану

Дата, смена

Диаметр скважины, м

Абсолютная отметка поверхности грунта

Бурение ствола

Разбуривание уширения (число циклов и диаметр), м

Наименование грунтов на уровне забоя

Длина арматурного каркаса, м

Марка бетона и осадка конуса

Бетонирование способом ВПТ

Общий расход бетона, м

Абсолютная отметка головы сваи

Исполнители (подписи) (прораб, буровой мастер)

Примечание

Глубина, м

Абсолютная отметка забоя скважины

Объем уложенного бетона, м3, включая уширение

Минимальное заглубление низа бетонолитной трубы в бетон, м

по проекту

фактическая

1

2

3

4

5

6

7

8

9

10

11

12

13

14

15

16

17

Примечание: 1. Ненужные графы зачеркнуть.

2. В графе 17 обязательно указать способ закрепления стенок скважин (глинистым раствором или обсадными трубами)

Исполнитель _____________________________

(Начальник участка)                    (подпись)


СВОДНАЯ ВЕДОМОСТЬ
ПРОБУРЕННЫХ СКВАЖИН УНИВЕРСАЛЬНЫМИ СТАНКАМИ

№ ______________________________________________________________________

с «__» ______________________ 200_ г. по «__» ________________________ 200_ г.

(скважины с № __________________ по № ________________)

Наименование строительной организации ____________________________________

Наименование объекта _____________________________________________________

Фундамент _______________________________________________________________

Проектный диаметр скважины, мм ___________________________________________

Тип бурового станка _______________________________________________________

№ п/п

Дата бурения

№ скважин по плану фундамента

Глубина скважин, м

Тип бурового инструмента

Примечание

начало

окончание

по проекту

фактически

1

2

3

4

5

6

7

8

Производитель работ ______________________________________________________

(подпись)

Мастер __________________________________________________________________

(подпись)

Приложение Б

(обязательное)

Форма актов освидетельствования и приемки буровой скважины, арматурного каркаса и приемки свайного поля из буронабивных свай

АКТ № _____________

ОСВИДЕТЕЛЬСТВОВАНИЯ И ПРИЕМКИ БУРОВОЙ СКВАЖИНЫ И АРМАТУРНОГО КАРКАСА ДЛЯ БЕТОНИРОВАНИЯ СВАЙ № ________

«__» ____________________________ 200_ г.

Мы, нижеподписавшиеся, ____________________________________________________

(представители заказчика, генподрядчика и исполнителя работ)

___________________________________________________________________________

провели освидетельствование и приемку буровой скважины и арматурного каркаса для бетонирования свай на объекте ________________________________________________

(наименование объекта)

При этом установлено:

1. Отметка низа сваи _______________________________________________________ м

2. Отметка поверхности грунта ______________________________________________ м

3. Отметка горизонта грунтовых вод __________________________________________ м

4. Отметка верха каркаса в скважине _________________________________________ м

5. Диаметр ствола сваи _____________________________________________________ м

6. Конструкция каркаса:

число стержней __________________________________________________________ шт.

диаметр стержней _________________________ мм, класс ______________________ мм

диаметр каркаса в осях рабочих стержней ____________________________________ мм

На основании рассмотренных данных постановили:

1. Размеры ствола скважины соответствуют проектным.

2. Считать скважину с арматурным каркасом готовой к бетонированию.

3. Начать бетонирование не позднее «__» _____________________ 200_ г.

Подписи: ________________________________

________________________________

________________________________

 

АКТ № __________
ПРИЕМКИ СВАЙНОГО ПОЛЯ ИЗ БУРОНАБИВНЫХ СВАЙ

«__» ______________ 200_ г.

Мы, нижеподписавшиеся, __________________________________________________

_________________________________________________________________________

_________________________________________________________________________

_________________________________________________________________________

_________________________________________________________________________

(представители заказчика, генподрядчика и исполнителя работ)

установили, что буронабивные сваи на строительной площадке __________________

_________________________________________________________________________

(наименование объекта)

выполнены в соответствии с проектом и дополнительными указаниями проектного института.

Свайные работы выполнены с отметки _______________________________________

На данной строительной площадке разрешается приступить к устройству ростверков.

Приложение к акту:

1. Акт приемки котлована до начала работ со схемой геодезической разбивки и закрепления осей фундамента.

2. Журналы изготовления буронабивных свай.

3. Сводная ведомость буронабивных свай _________________ листов _____________

4. Паспорта на бетонную смесь _________________ шт.

5. Акты лабораторных испытаний контрольных бетонных кубиков ____________ шт.

6. Акты освидетельствования скважин и арматурных каркасов _______________ шт.

7. Исполнительная схема изготовления свай _______________________________ шт.

Подписи: _____________________________________________

_____________________________________________

_____________________________________________

 

 




ГОСТЫ, СТРОИТЕЛЬНЫЕ и ТЕХНИЧЕСКИЕ НОРМАТИВЫ.
Некоммерческая онлайн система, содержащая все Российские Госты, национальные Стандарты и нормативы.
В Системе содержится более 150000 файлов нормативно-технической документации, действующей на территории РФ.
Система предназначена для широкого круга инженерно-технических специалистов.

Рейтинг@Mail.ru Яндекс цитирования

Copyright © www.gostrf.com, 2008 - 2026