Крупнейшая бесплатная информационно-справочная система онлайн доступа к полному собранию технических нормативно-правовых актов РФ. Огромная база технических нормативов (более 150 тысяч документов) и полное собрание национальных стандартов, аутентичное официальной базе Госстандарта. GOSTRF.com - это более 1 Терабайта бесплатной технической информации для всех пользователей интернета. Все электронные копии представленных здесь документов могут распространяться без каких-либо ограничений. Поощряется распространение информации с этого сайта на любых других ресурсах. Каждый человек имеет право на неограниченный доступ к этим документам! Каждый человек имеет право на знание требований, изложенных в данных нормативно-правовых актах!

  


 

ПРАВИТЕЛЬСТВО МОСКВЫ

МОСКОМАРХИТЕКТУРА

РЕКОМЕНДАЦИИ
по проектированию специальных
учебно
-воспитательных учреждений
закрытого
типа
для
детей и подростков
с
девиантным поведением

Выпуск 3

Специальное (коррекционное)
учебно-воспитательное учреждение
для
детей и подростков
с
отклонениями в развитии,
совершивших общественно опасные
деяния

2004

ПРЕДИСЛОВИЕ

1. РАЗРАБОТАНЫ: ГУП МНИИП «Моспроект-4» (архитекторы Любомудрова К.И., Кряжевских М.А., инженер Тихомирова И.Б.).

2. ПОДГОТОВЛЕНЫ К УТВЕРЖДЕНИЮ И ИЗДАНИЮ Управлением перспективного проектирования, нормативов и координации проектно-изыскательских работ Москомархитектуры.

3. СОГЛАСОВАНЫ: Департаментом образования города Москвы, Москомархитектурой.

4. УТВЕРЖДЕНЫ И ВВЕДЕНЫ В ДЕЙСТВИЕ приказом Москомархитектуры от 22.11.2004 г. № 174

СОДЕРЖАНИЕ

ВВЕДЕНИЕ

Специальное (коррекционное) учебно-воспитательное учреждение для детей и подростков с отклонениями в развитии, совершивших общественно опасные деяния (далее СКУВУ) является самостоятельным типом учебно-воспитательного закрытого учреждения с принудительным пребыванием детей и подростков с отклонениями в психическом развитии и криминальной девиантностью. Это учреждение создает оптимальные условия для реабилитации, воспитания, образования, оздоровления, социализации и начального профессионального образования воспитанников.

Назначением СКУВУ является обеспечение психологической, медицинской и педагогической коррекции отклонений в психическом развитии детей и подростков, формирование их личности, а также их социальная реабилитация, включая коррекцию поведения и адаптацию в обществе, а также условий, необходимых для получения неполного среднего общего и начального профессионального образования.

1. ОБЛАСТЬ ПРИМЕНЕНИЯ.

1.1. Настоящие «Рекомендации» разработаны в развитие нормативных документов по проектированию и строительству в г. Москве. Их положения распространяются на проектирование новых и реконструкцию существующих СКУВУ.

1.2. Настоящие «Рекомендации» устанавливают основные положения по размещению, участку, территории, архитектурно-планировочным решениям и инженерному оборудованию СКУВУ.

1.3. Проектирование СКУВУ должно вестись в соответствии с положениями настоящих «Рекомендаций», а также требованиями других нормативно-методических документов в строительстве, действующих на территории г. Москвы (Раздел 2 настоящих Рекомендаций).

2. НОРМАТИВНЫЕ ССЫЛКИ.

В настоящих Рекомендациях приведены ссылки на следующие нормативно-методические документы:

СНиП 2.08.02-89* «Общественные здания и сооружения»;

СНиП 21-01-97* «Пожарная безопасность зданий и сооружений»;

СНиП 2.07.01-89* «Градостроительство. Планировка и застройка городских и сельских поселений»;

НПБ 88-2001 «Установки пожаротушения и сигнализации. Нормы и правила проектирования»;

СНиП 41-01-2003 «Отопление, вентиляция и кондиционирование воздуха»;

СНиП 2.04.01-85* «Внутренний водопровод и канализация зданий»;

СНиП 23-05-95* «Естественное и искусственное освещение»;

СанПиН 2.2.1/2.1.1.1076-01 «Гигиенические требования к инсоляции и солнцезащите помещений жилых и общественных зданий и территорий»;

СанПиН 2.4.2.1178-02 «Гигиенические требования к условиям обучения в общеобразовательных учреждениях»;

СанПиН 2.2.1/2.1.1.1278-03 «Гигиенические требования к естественному, искусственному и совмещенному освещению в жилых и общественных зданиях»;

СанПиН 2.1.2.1188-03 «Плавательные бассейны. Гигиенические требования к устройству, эксплуатации и качеству воды. Контроль качества»;

СН 441-72* «Указания по проектированию ограждений площадок и участков предприятий, зданий и сооружений»;

МГСН 4.06-03 «Общеобразовательные учреждения»;

МГСН 4.15-98 «Общеобразовательные учреждения для детей-сирот и детей, оставшихся без попечения родителей»;

МГСН 4.12-97 «Лечебно-профилактические учреждения»;

МГСН 1.01-99 «Нормы и правила проектирования планировки и застройки г. Москвы»;

МГСН 2.01-99 «Энергосбережение в зданиях»;

МГСН 2.06-99 «Естественное, искусственное и совмещенное освещение»;

«Рекомендации по проектированию специальных учебно-воспитательных учреждений закрытого типа для детей и подростков с девиантным поведением», Выпуск 1, М., 2002 г.;

«Рекомендации по проектированию образовательных учреждений для детей, нуждающихся в психолого-педагогической и медико-социальной помощи», М., 2000 г.;

«Рекомендации по проектированию сети и зданий детских внешкольных учреждений для г. Москвы», М., Выпуск 1, 1996 г., Выпуск 2, 1997 г., Выпуск 3, 1998 г.;

«Рекомендации по проектированию учреждений профессиональной реабилитации инвалидов», М., 1999 г.;

«Пособие по проектированию учреждений здравоохранения к СНиП 2.08.02-89*»;

«Проектирование бассейнов» Справочное пособие к СНиП 2.08.02-89*, М., Стройиздат, 1991 г.

3. ОБЩИЕ ПОЛОЖЕНИЯ.

3.1. К основным видам деятельности, которые осуществляются в СКУВУ, относятся: образовательная деятельность, начальное профессиональное образование, дополнительное образование, оздоровление воспитанников, педиатрическая и иная врачебная помощь, психологическая, медицинская и педагогическая коррекция отклонений в психическом развитии, соблюдение режимных требований.

Режимные требования, приведенные в настоящем Выпуске 3, основаны на соответствующих положениях Выпуска 1 «Рекомендаций по проектированию специальных учебно-воспитательных учреждений закрытого типа для детей и подростков с девиантным поведением».

3.2. Основными задачами СКУВУ являются:

- оказание медико-психологической и социальной коррекционной помощи воспитанникам на основе индивидуальной диагностики;

- организация образовательной деятельности и компенсирующего обучения по общеобразовательным программам (основным и дополнительным) и профессионального образования в соответствии с индивидуальными особенностями воспитанников и их уровнем обученности;

- организация развивающего досуга (культурное и эстетическое развитие, оздоровление и занятия спортом);

- организация мероприятий, направленных на формирование законопослушного поведения воспитанников;

- обеспечение проживания и питания несовершеннолетних.

3.3. В СКУВУ следует предусматривать специальные условия содержания воспитанников:

- охрана территории и материальных ценностей;

- организация безопасных условий содержания воспитанников и работы персонала;

- временная изоляция воспитанников, исключение возможности самовольного ухода с территории учреждения;

- круглосуточное наблюдение и контроль за поведением воспитанников (в т.ч. во время их сна);

- проведение личного досмотра воспитанников;

- проведение выборочного досмотра писем, посылок, почтовых сообщений и т.д.

3.4. Контингент воспитанников СКУВУ составляют несовершеннолетние с отклонениями в развитии (задержкой психического развития и легкими формами умственной отсталости) в возрасте от 11 до 18 лет, совершившие общественно опасные деяния, установленные Уголовным кодексом, нуждающиеся в особых условиях воспитания и обучения и требующие специального педагогического подхода. К данному контингенту относятся лица, которые не подлежат уголовной ответственности в связи с недостижением соответствующего возраста или осужденные и освобожденные судом от отбытия наказания в исправительной колонии. В этом случае по решению суда несовершеннолетний направляется в СКУВУ. Срок содержания воспитанника в учреждении определяется данным решением.

3.5. В СКУВУ воспитанники содержатся не более 3 лет.

3.6. Организация деятельности СКУВУ осуществляется в соответствии с «Типовым положением о специальном учебно-воспитательном учреждении для детей и подростков с девиантным поведением» и «Типовым положением о специальном (коррекционном) образовательном учреждении для обучающихся и воспитанников с отклонениями в развитии».

3.7. СКУВУ, как правило, организуются отдельно для мальчиков и для девочек.

3.8. Воспитанники, выпущенные из учреждения, имеют право продолжать обучение в том образовательном учреждении, где они обучались ранее до пребывания в СКУВУ. Они принимаются в соответствующий класс на основании документов об их промежуточной аттестации в СКУВУ.

3.9. СКУВУ должно быть полностью рассчитано на использование внутренней инфраструктуры. Его воспитанники не могут посещать обычные общеобразовательные учреждения, учреждения дополнительного образования, учреждения начальной профессиональной подготовки (УПК), культурно-массовые и спортивные, и т.п. Функции этих учреждений должны быть обеспечены в СКУВУ за счет соответственно расширенной номенклатуры помещений.

3.10. В соответствии с Типовым положением о специальном учебно-воспитательном учреждении для детей и подростков с девиантным поведением (Постановление Правительства РФ от 25 апреля 1995 г. № 420) вместимость СКУВУ принимается не более 50 мест.

3.11. Основные концептуальные положения организации СКУВУ приведены в Приложении 1 настоящих Рекомендаций.

3.12. Состав и площади помещений СКУВУ должны определяться в соответствии с Разделом 5 настоящих Рекомендаций и уточняются в каждом конкретном случае заданием на проектирование.

4. ПОЛОЖЕНИЯ ПО РАЗМЕЩЕНИЮ, УЧАСТКУ И ТЕРРИТОРИИ.

4.1. СКУВУ следует размещать в периферийной зоне города, вне жилой застройки.

4.2. Здания СКУВУ следует размещать на обособленных земельных участках.

4.3. Площадь участка СКУВУ принимается из расчета 140 - 160 м2 на 1 воспитанника с учетом размещения на участке площадок и сооружений оздоровительного и досугового характера, обеспечивающих психолого-терапевтическую коррекцию.

4.4. В составе территории участка СКУВУ предусматриваются следующие зоны:

- учебная и общественная;

- проживания;

- физкультурно-оздоровительная;

- медицинского изолятора;

- хозяйственная.

4.5. Размеры и состав зон участков в зависимости от объемно-планировочного решения уточняются в процессе проектирования с учетом положений настоящего раздела.

4.6. В зоне проживания рекомендуется предусматривать прогулочную территорию, оборудованную газонами, цветниками, навесами, качелями, скамейками для отдыха и т.п. Учитывая задержку умственного развития воспитанников, прогулочную территорию следует оборудовать качелями, качалками и т.п. Прогулочные площадки должны быть оборудованы специальным ограждением. По периметру ограждения не должны присутствовать посторонние предметы.

4.7. В составе физкультурно-оздоровительной зоны рекомендуется предусматривать:

- баскетбольную и волейбольную площадки;

- гимнастическую площадку (15´16 м);

- комбинированную площадку для спортивных игр, метания мяча и прыжков (60´40 м).

Состав и количество физкультурных площадок уточняется заданием на проектирование.

4.8. Учитывая нарушение двигательной функции у контингента СКУВУ, на участке не рекомендуется организовывать дорожки для бега, катания на роликовых коньках, скейтбордах, лыжах, велосипедах и т.п.

4.9. Медицинский изолятор должен иметь самостоятельный выход на участок и подъездные пути, обеспечивающие возможность проезда специального медицинского транспорта для госпитализации заболевших.

4.10. Хозяйственная зона должна размещаться со стороны производственных помещений пищеблока. На ее территории допускается размещать гараж с мастерскими, навесы для инвентаря и оборудования, мусоросборники и т.п. Гараж рекомендуется проектировать на 3 машины (2 - служебные, 1 - учебная) и использовать как для хозяйственных нужд учреждения, так и для обучения автоделу воспитанников.

4.11. Земельный участок должен иметь глухое ограждение по всему периметру, высотой 4 м, без выступов с наружной и внутренней сторон, с периметральной охранной сигнализацией. По всему периметру ограждения следует устанавливать ряд скрытых телекамер для внутреннего обозрения территории и наружного обозрения ограждения. Все телекамеры должны быть выведены на центральный пункт режимной службы.

4.12. Въезд и проход на территорию СКУВУ осуществляется через контрольно-пропускной пункт. Дежурный по КПП осуществляет пропускной режим на территорию. КПП оборудуется автоматически закрывающимися воротами и дверьми, турникетом для сотрудников и посетителей, решетками на окнах, сигнализацией с выходом на центральный пульт дежурной части, телефонами оперативной связи.

4.13. Площадь озеленения территории участка должна составлять 40 % от общей площади участка. В состав зеленой зоны входят: газоны с низкорастущими декоративными растениями, кустарники (не выше 50 см), цветники и отдельно стоящие лиственные деревья, размещаемые в центральной зоне участка. По периметру ограждения рекомендуется предусматривать полосу газона, шириной не менее 5 м.

4.14. Участок СКУВУ должен быть освещен в соответствии с требованиями СНиП 23-05-95 с постоянным освещением в вечернее и ночное время.

4.15. Планировка участка должна обеспечивать подъезды с твердым покрытием к хозяйственной зоне, подъезды пожарных машин ко всем зданиям и блокам, а также объезды вокруг них в соответствии с СНиП 21-01-97*.

4.16. Для автомашин сотрудников СКУВУ следует предусматривать открытую стоянку в соответствии с требованиями МГСН 1.01-99 за пределами ограждаемой территории.

5. ПОЛОЖЕНИЯ ПО АРХИТЕКТУРНО-ПЛАНИРОВОЧНЫМ РЕШЕНИЯМ И ИНЖЕНЕРНОМУ ОБОРУДОВАНИЮ.

Общие требования.

5.1. В состав СКУВУ входят следующие функциональные группы помещений:

- вестибюльная;

- проживания;

- общего образования;

- профессиональной подготовки;

- дополнительного образования;

- лечебно-реабилитационная (психолого-коррекционные, коррекционные и медицинские помещения);

- культурно-досуговая и физкультурно-оздоровительная;

- медицинского изолятора;

- питания;

- административно-бытовая;

- хозяйственного обслуживания.

Архитектурно-планировочные решения СКУВУ должны учитывать требования функционального зонирования помещений с учетом осуществляемой в них деятельности.

Состав и площади функциональных групп помещений, рассчитанных на работу с воспитанниками, определяются с учетом выполнения коррекционной функции.

5.2. При проектировании помещений СКУВУ рекомендуется пользоваться габаритными схемами, приведенными в Приложениях к настоящим Рекомендациям. Площади отдельных помещений в зависимости от конкретных планировочных и конструктивных решений могут быть откорректированы (уменьшены или увеличены) на 15 %.

5.3. Функциональные группы помещений могут размещаться либо в одном здании, либо в отдельных корпусах или блоках, соединенных отапливаемыми переходами. При этом должны предусматриваться пожарные отсеки площадью не более 5000 м2, разделяемые противопожарными стенами 1-го типа (в соответствии с требованиями СНиП 21-01-97*). Из каждого пожарного отсека должно быть предусмотрено не менее двух эвакуационных выходов, один из входов допускается предусматривать в соседний блок.

5.4. Учитывая специфику контингента СКУВУ, отдельные блоки помещений, непосредственно рассчитанные на пребывание воспитанников, следует проектировать непроходными, с возможностью их изоляции в течение суток в зависимости от режима работы каждой группы помещений. Объединение различных групп помещений может осуществляться через общее коммуникационное пространство. В том случае, когда в одном блоке размещены различные группы помещений, их следует проектировать поэтажно, предусматривая возможность изоляции.

Общая функционально-планировочная схема СКУВУ представлена на Рис. 1.

Рис. 1. Функционально-планировочная схема СКУВУ.

1. Вестибюльная, группа помещений. 2. Помещения проживания. 3. Помещения питания. 4. Помещения общего образования. 5. Помещения профессиональной подготовки. 6. Помещения дополнительного образования. 7. Помещения культурно-досугового и физкультурноздоровительного назначения: а. - культурно-досуговые; б. - физкультурно-оздоровительные. 8. Лечебно-реабилитационные помещения. 9. Медицинский изолятор. 10. Административно-бытовые помещения.

Условные обозначения.

 - Коммуникационное пространство;  - Обязательные связи;  - Необязательные связи

5.5. Здания СКУВУ не должны превышать 4 этажей.

5.6. Объемно-планировочная структура здания должна обеспечивать оптимальные условия осуществления протекающих в нем функциональных процессов, отражать специфику учреждения и обеспечивать соответствующие условия эксплуатации и необходимую связь с участком.

5.7. Ширина лестничных маршей должна быть не менее 1,35 м. Лестничные марши и площадки должны иметь защитное ограждение на всю высоту.

Ширину дверей основных помещений следует принимать не менее 1 м.

Ширину коридоров в группах помещений административно-бытового, методического и хозяйственного назначения следует принимать не менее 1,4 м; а во всех группах помещений, рассчитанных на работу с детьми - не менее 2,2 м.

5.8. Коммуникационные помещения не должны иметь «карманов» и непросматриваемых зон.

5.9. На каждом этаже в коридорах и холлах следует размещать посты режимной службы. Посты режимной службы следует оборудовать средствами оперативной связи с директором СКУВУ и ответственным дежурным по режиму. В местах массового скопления воспитанников (вестибюле и т.п.) следует предусматривать помещения режимной службы.

5.10. На входах в здание следует предусматривать металлические двери.

5.11. Остекление наружных окон на всех этажах зданий следует производить с применением противоударных и тонированных стекол. Оконные запоры должны быть скрытыми и недоступными для воспитанников.

5.12. Все окна и наружные двери следует оборудовать автоматической сигнализацией с выводом сигнала на центральный пункт режимной службы.

5.13. На входах в здание СКУВУ, а также в зал проведения массовых мероприятий, спортивный зал и бассейн следует устанавливать телекамеры наблюдения с выводом сигнала на центральный пункт режимной службы.

5.14. Высота наземных этажей здания СКУВУ должна быть не менее 3,3 м (от пола до пола вышележащего этажа). Высота зала проведения массовых мероприятий принимается не менее 3,6 м, высота помещений бассейна и спортзала - 6 м (до низа несущих конструкций).

5.15. Внутренняя отделка помещений СКУВУ должна быть выполнена из материалов, разрешенных для применения органами Госсанэпиднадзора Минздрава РФ, допускающих влажную уборку, а также применение дезинфицирующих средств.

5.16. Все помещения групп общего образования, начальной профессиональной подготовки и дополнительного образования, лечебно-реабилитационных помещений, рассчитанные на пребывание воспитанников, должны быть оборудованы умывальниками, а также стулом воспитателя.

5.17. Естественное, искусственное и совмещенное освещение в помещениях следует проектировать в соответствии с требованиями СанПиН 2.2.1/2.1.1.1.1278-03 и МГСН 2.06-99.

5.18. Рабочие места в учебных помещениях и помещениях начальной профессиональной подготовки должны иметь естественное освещение с КЕО не менее 1,5 на поверхности столов и освещаться боковым с левой стороны светом. Для организации мобильных форм (групповых и индивидуальных) ведения занятий необходимо предусматривать равномерное освещение по всей рабочей плоскости в помещении за счет дополнительного верхнего света или дополнительного искусственного освещения в глубине помещения.

5.19. Допускается не предусматривать естественного освещения:

- в санитарных узлах и комнатах личной гигиены женщин (для персонала);

- в радиоузле;

- в столовой для персонала;

- в кладовых инвентаря, комнатах хранения предметов уборки;

- в помещениях технических служб.

В зависимости от архитектурно-планировочного решения допускается проектировать с искусственным освещением санитарные узлы для воспитанников в группе помещений проживания (при соблюдении необходимой кратности обмена воздуха).

5.20. Санитарные узлы и туалетные комнаты в СКУВУ проектируются с учетом специфики работы каждого подразделения в соответствии с действующими нормативными документами: МГСН 4.15-98, МГСН 4.06-03 и «Рекомендациями по проектированию специальных учебно-воспитательных учреждений закрытого типа для детей и подростков с девиантным поведением», Выпуск 1.

Внутренний водопровод и канализацию следует проектировать в соответствии с СНиП 2.04.01-85*.

Учитывая специфику контингента воспитанников, размещение санитарных приборов осуществляется только в общих санитарных узлах в открытых кабинах. Санитарные приборы должны быть в антивандальном исполнении.

5.21. В комнатах хранения уборочного инвентаря следует предусматривать умывальник и слив.

5.22. Инсоляцию помещений с длительным пребыванием воспитанников следует предусматривать в соответствии с требованиями СанПиН 2.2.1/2.1.1.1076-01.

5.23. Отопление и вентиляцию зданий следует проектировать в соответствии с требованиями СНиП 41-01-2003 и МГСН 2.01-99. Отопительные приборы и трубы в спальных помещениях следует предусматривать скрытыми в строительные конструкции.

5.24. Энергоснабжение, электрооборудование, электрическое освещение здания и наружное освещение территории следует предусматривать в соответствии с требованиями СанПиН 2.2.1/2.1.1.1278-03, МГСН 2.06-99, МГСН 2.01-99.

5.25. Проектирование здания должно осуществляться с учетом принципов максимального энергосбережения в соответствии с требованиями МГСН 2.01-99.

5.26. Здания следует проектировать не менее II степени огнестойкости в соответствии с СНиП 21-01-97*.

5.27. В зданиях должна быть предусмотрена автоматическая пожарная сигнализация в соответствии с требованиями НПБ 88-2001. Перечень помещений, в которых необходимо предусматривать автоматическую пожарную сигнализацию, следует определять в соответствии с МГСН 4.06-03 и МГСН 4.15-98. Сигнал о срабатывании системы АПС (автоматической пожарной сигнализации) выводится в помещение с круглосуточным пребыванием персонала.

5.28. На путях эвакуации из здания должно быть предусмотрено аварийное и эвакуационное освещение, проектируемое в соответствии с требованиями СНиП 21-01-97* и СНиП 23-05-95*.

Вестибюльная группа помещений.

5.29. Рекомендуемые состав и площади помещений вестибюльной группы СКУВУ приведены в таблице 5.1.

5.30. Вход воспитанников во все блоки различных групп помещений осуществляется через вестибюльную группу.

5.31. Помещение гардероба для воспитанников должно быть зонировано на изолированные секции для отдельных групп, отделяемые сетчатыми перегородками как друг от друга, так и от гардероба в целом.

5.32. В составе оборудования гардероба для воспитанников рекомендуется предусматривать сушильные шкафы для одежды и обуви с подогревом и вытяжкой, а также вешалки консольного типа.

5.33. Гардероб для верхней одежды персонала и посетителей рекомендуется предусматривать в отдельном помещении при вестибюле.

5.34. В состав вестибюльной группы рекомендуется включать комнату свиданий воспитанников с посетителями с остекленным проемом в стене для организации наблюдения.

5.35. В состав вестибюльной группы следует включать пост сотрудника режимной службы с помещением для отдыха.

5.36. Входы в вестибюль и служебные входы в здание следует оборудовать тамбурами.

Таблица 5.1

Рекомендуемые состав и площади помещений вестибюльной группы.

№ п.п.

Наименование помещений

Площадь помещений, м2

Примечание

На 1 место

Всего

1

2

3

4

5

1.

Вестибюль

0,5

-

С учетом численности персонала и возможностью организации поста режимной службы

2.

Гардероб для верхней одежды воспитанников

0,8

-

 

3.

Гардероб для верхней одежды персонала и посетителей

0,1

-

Число персонала по штатному расписанию. Число посетителей - 10 % от числа воспитанников

4.

Комната свиданий с посетителями

-

12

 

5.

Помещение для отдыха сотрудника режимной службы

-

10

 

6.

Санитарный узел с умывальником в шлюзе

-

3

 

7.

Комната хранения уборочного инвентаря

-

4

 

Помещения проживания.

5.37. Рекомендуемые состав и площади помещений проживания приведены в таблице 5.2.

5.38. Помещения проживания следует размещать в отдельном корпусе или блоке, непосредственно примыкающем к блокам других групп помещений или соединенным с ними теплым переходом.

5.39. Помещения проживания рекомендуется проектировать в виде изолированных секций, организованных по возрастному принципу, и состоящих из двух жилых групп на 5 воспитанников каждая.

5.40. Количество секций (на 10 воспитанников) определяется заданием на проектирование в зависимости от общего количества воспитанников СКУВУ.

5.41. В состав жилой секции входят:

- две жилые группы;

- комната дежурного воспитателя;

- кабинет дефектолога;

- кабинет логопеда:

- кабинет дежурной медсестры;

- санитарный узел персонала;

- бытовая комната;

- комната уборочного инвентаря.

5.42. В состав жилой группы входят:

- одна спальная комната на 1 место;

- две спальные комнаты на 2 места;

- многофункциональная комната дневного пребывания;

- санитарный узел;

- душевая;

- комната хранения личных вещей воспитанников;

- гардероб для хранения одежды воспитанников;

- буфетная с моечной посуды.

5.43. Входы в жилые группы и спальные комнаты проектируются с дверными проемами без дверного полотна для организации наблюдения за воспитанниками в ночное время. В проеме входа в жилую группу организуется пост режимной службы.

5.44. Вход в жилую секцию оборудуется запирающейся дверью.

5.45. Функционально-планировочная схема помещений жилой секции представлена на Рис. 2.

5.46. Учитывая специфику контингента СКУВУ, кабинеты дефектолога и логопеда используются для ежедневных занятий с каждым из воспитанников в свободное от занятий время. Они рассчитаны на проведение индивидуальных занятий.

5.47. В состав оборудования спальных комнат входят кровати и стулья в соответствии с количеством мест в комнате.

Рис. 2. Функционально-планировочная схема жилой секции

1. Санитарный узел. 2. Душевая. 3. Комната хранения личных вещей воспитанников. 4. Спальная комната на 2 места. 5. Спальная комната на 1 место. 6. Гардеробная. 7. Многофункциональная комната дневного пребывания. 8. Кабинет дежурной медсестры. 9. Комната дежурного воспитателя. 10. Кабинет дефектолога. 11. Кабинет логопеда. 12. Буфетная с моечной посуды. 13. Санитарный узел персонала. 14. Комната хранения уборочного инвентаря. 15. Бытовая комната.

5.48. Назначение многофункциональной комнаты дневного пребывания:

- организация питания воспитанников;

- приготовление уроков;

- проведение психолого-коррекционных занятий;

- проведение досуга (организации игр, просмотра телевизионных передач и т.п.).

В состав оборудования комнаты дневного пребывания рекомендуется включать: столы и стулья по количеству воспитанников в группе; стол дежурного воспитателя, который служит подсобным столом при организации питания воспитанников; комбинированный шкаф для хранения учебников, игр и т.п.; мягкую мебель; журнальный столик; телевизор.

При проведении групповых психолого-коррекционных занятий или игр отдельно стоящие столы составляются в один.

5.49. Мытье столовой посуды при буфетной осуществляется силами самих воспитанников. Моечная посуды является в данном случае коррекционным помещением, основное назначение которого - социально-бытовая адаптация.

5.50. Гардеробная оборудуется шкафами-купе с секциями по количеству воспитанников в жилой группе. Комната хранения личных вещей воспитанников оборудуется стеллажами с закрывающимися ячейками.

5.51. Рекомендуемый состав оборудования санитарного узла: 2 унитаза, огороженных экранами высотой не более 1 м, и 2 умывальника. Рекомендуемый состав оборудования душевой: душ (2 душевые сетки), умывальник, скамья для раздевания, вешалка для одежды. В учреждении для мальчиков в состав оборудования санитарного узла следует включать 2 писсуара. В учреждении для девочек - биде.

5.52. Помещения для хранения чистого и грязного белья рекомендуется размещать поэтажно на 2 - 3 секции.

Таблица 5.2

Рекомендуемые состав и площади помещений проживания.

№ п.п.

Наименование помещений

Площадь помещений, м2

Примечания

1

2

3

4

Жилая группа

1.

Спальная на 2 места (2 шт.)

9´2

Приложение 2, Рис. П.1.

2.

Спальная на 1 место (1 шт.)

6

-«-

3.

Многофункциональная комната дневного пребывания

34

Приложение 2, Рис. П.2.

4.

Санитарный узел для мальчиков

5

 

5.

Санитарный узел для девочек

6

 

6.

Душевая

4

 

7.

Комната для хранения личных вещей воспитанников

4

 

8.

Гардеробная

6

 

Жилая секция

1.

Комната дежурного воспитателя

9

 

2.

Кабинет дефектолога

10

 

3.

Кабинет логопеда

10

 

4.

Кабинет дежурной медсестры

8

 

5.

Санузел персонала

4

В состав санузла входят: унитаз, душ, умывальник

6.

Бытовая комната

6

 

7.

Буфетная с моечной посуды

8

 

8.

Комната хранения уборочного инвентаря

4

 

Общие помещения на 2 - 3 жилые секции

1.

Комната хранения грязного белья

3

 

2.

Комната хранения чистого белья

4

 

Помещения общего образования.

5.53. Рекомендуемые состав и площади помещений общего образования приведены в таблице 5.3.

5.54. Данная группа помещений обеспечивает проведение мероприятий, направленных на:

- обучение по образовательным программам в соответствии с возрастными и индивидуальными особенностями воспитанников, на уровне, предусмотренном законом «Об образовании», и соответствующее их психофизическому развитию;

- психолого-педагогическую помощь в усвоении образовательных программ.

5.55. Наполняемость всех классов принимается 5 чел. Комплектование классов осуществляется в соответствии с составом жилых групп.

5.56. В составе группы помещений общего образования предусмотрены неспециализированные классные помещения и специализированный кабинет (компьютерный класс). Учебные помещения должны отвечать требованиям активного ведения учебного урока с организацией как фронтальных, так групповых и индивидуальных форм обучения с широким привлечением технических средств. Во всех неспециализированных классах следует организовывать уголок релаксации с мягкой мебелью, шведской стенкой и ковром.

Помещения образования (классы, коридоры) должны быть свободны от лишних деталей, отвлекающих внимание учащихся (никакого ненужного украшательства). На окнах рекомендуется вывешивать шторы, гармонирующие по цвету с окраской стен.

5.57. Учитывая специфику контингента воспитанников, неспециализированные классные помещения следует проектировать с расстановкой одноместных парт на расстоянии не менее 0,70 м друг от друга. Количество неспециализированных классных помещений определяется в каждом конкретном случае заданием на проектирование в зависимости от общей вместимости учреждения.

5.58. Учитывая специфику контингента воспитанников, в оборудование как специализированных, так и неспециализированных классных помещений не следует включать стеллажи с пособиями. Хранение пособий следует предусматривать в специализированном помещении со стеллажами, которое следует организовывать при учительской.

5.59. В состав помещений общего образования входит библиотека с книгохранилищем без читального зала.

5.60. Проектирование санитарных узлов при учебных помещениях осуществляется в соответствии с МГСН 4.06-03.

Таблица 5.3

Рекомендуемые сослав и площади помещений общего образования.

п.п.

Наименование помещений

Площадь помещений, м2

Примечания

1

2

3

4

1.

Класс с уголком релаксации

36

Приложение 2, Рис. П.3.

2.

Компьютерный класс

38

Приложение 2, Рис. П.4.

3.

Библиотека:

 

Размещаются смежно

 

- книгохранилище на 10000 единиц хранения

35

 

 

- комната выдачи книг

10

 

4.

Методический кабинет

24

 

5.

Кабинет заведующего учебной частью

20

 

6.

Помещение хранения учебных пособий

12

 

7.

Учительская

36

 

8.

Комната сотрудников режимной службы

10

 

9.

Санитарный узел для учащихся с умывальниками в шлюзе

16

 

10.

Санитарный узел персонала с умывальником

2

 

11.

Комната хранения уборочного инвентаря

4

 

Помещения профессиональной подготовки.

5.61. Рекомендуемые состав и площади помещений профессиональной подготовки приведены в таблице 5.4.

5.62. Данная группа помещений обеспечивает проведение мероприятий, направленных на:

- предоставление воспитанникам возможности получения профессиональной подготовки;

- приобретение воспитанниками трудовых навыков, необходимых для выполнения определенной работы;

- раскрытие врожденных склонностей воспитанника;

- проведение терапевтической коррекционной работы, заключающейся в развитии различных видов моторики у несовершеннолетних с задержкой психического развития и легкими формами умственной отсталости.

5.63. Организация профессиональной подготовки воспитанников осуществляется в соответствии с их психофизическим развитием и имеет практическую направленность.

5.64. Наполняемость мастерских профессиональной подготовки принимается 5 чел.

5.65. Мастерские профессиональной подготовки могут быть использованы во внеурочное время в качестве помещений для дополнительного образования. Вследствие этого, располагать их следует в едином блоке помещений.

5.66. Рекомендуемый состав мастерских профессиональной подготовки в СКУВУ для мальчиков: картонажная, по обработке металла, по обработке дерева, автодело (теория), малярная, штукатурная и т.п. Практические занятия по автоделу проводятся в гараже и на территории учреждения.

Рекомендуемый состав мастерских профессиональной подготовки в СКУВУ для девочек: картонажная, швейная, вязальная, изготовления головных уборов и т.п.

Номенклатура видов профессиональной подготовки должна быть расширенной, предоставляющей возможность индивидуального подбора каждому воспитаннику типа занятий, наиболее эффективно корректирующего его дефект и позволяющий наиболее точно выбрать возможное направление его будущей профессиональной деятельности.

5.67. Состав и профиль мастерских профессиональной подготовки в каждом конкретном случае уточняются заданием на проектирование, при этом номенклатура их зависит от состава воспитанников на данный момент.

При организации мастерских следует предусмотреть возможность их перепрофилирования с учетом требований изменяющегося контингента воспитанников.

Площадь мастерских профессиональной подготовки следует принимать 10 м2 на 1 воспитанника в соответствии с положениями «Рекомендаций по проектированию учреждений профессиональной реабилитации инвалидов».

5.68. Учитывая специфику контингента воспитанников, планировка мастерских для занятий, проведение которых связано с использованием ценного оборудования, должна обеспечивать выделение двух зон доступности:

- зону занятий с руководителем;

- зону ограниченной доступности (хранения ценного оборудования, сырья, изделий).

5.69. При помещениях профессиональной подготовки следует предусматривать кладовые для хранения материалов и готовых изделий.

5.70. Мастерские следует оборудовать столом мастера, инструментальными шкафами, вешалками для спецодежды и умывальниками с подачей горячей и холодной воды (не менее 2-х умывальников на группу).

Помещения штукатурной и малярной мастерских должны дополнительно оборудоваться мойкой для мытья инструментов со специальным сливом.

5.71. Производственные помещения профессиональной подготовки, в которых процесс обучения связан с выделением пыли, следует оборудовать эффективной вентиляционной системой в соответствии со СНиП 41-01-2003.

5.72. Мастерские, в которых проводится рубка и резка металла, а также мастерские с крупногабаритным и тяжелым оборудованием, с крупногабаритными материалоемкими объектами работ учащихся, необходимо располагать на первом этаже.

5.73. При расстановке оборудования в мастерских рекомендуется учитывать следующие гигиенические рекомендации:

- слесарные верстаки (столярные верстаки, столы и т.п.) устанавливаются перпендикулярно светонесущей стене на расстоянии 0,6 м от окон;

- расстояние между слесарными верстаками (столярными верстаками, столами и т.п.) предусмотрено не менее 1,0 м, а между их рядами - 1,2 м;

- каждое рабочее место снабжено сиденьями, имеющими поясно-крестцовую опору, и возможность изменять высоту.

5.74. В состав помещений профессиональной подготовки следует включать мастерские: «станочный парк», механическую и слесарную.

Мастерская «станочный парк» предназначена для теоретического освоения воспитанниками профессионального инвентаря.

Механическая и слесарная мастерские не рассчитаны на пребывание учащихся. Основное их назначение - подготовка инвентаря к работе. В состав оборудования механической мастерской входят следующие станки: токарный, для заточки пил, для заточки ножей, сверлильный. В состав оборудования слесарной мастерской входят станки, предназначенные для подготовки слесарных инструментов к работе.

5.75. Производственные помещения профессионального образования включают:

- помещения профессионального образования для воспитанников;

- помещения подготовки процесса обучения для мастеров без участия воспитанников в соответствии с требованиями Трудового законодательства об использовании детского труда; площадь помещений (не менее 60 м2) и их количество определяется заданием на проектирование.

Таблица 5.4

Рекомендуемые состав и площади помещений профессиональной подготовки.

п.п.

Наименование помещений

Площадь помещений, м2

Примечания

1

2

3

4

1.

Мастерские профессиональной подготовки с кладовыми

50 + 12

 

2.

Мастерская автодела (теория)

32

 

3.

Мастерская «станочный парк» с кладовой

50 + 12

 

4.

Механическая мастерская с подсобным помещением для работы мастеров

50 + 12

 

5.

Слесарная мастерская с подсобным помещением для работы мастеров

50 + 12

 

6.

Комната мастеров

25

 

7.

Кладовые для хранения сырья, материалов и готовой продукции

24 - 36

 

8.

Комната сотрудников режимной службы

10

 

9.

Санитарный узел для воспитанников с умывальниками в шлюзе

16

 

10.

Санитарный узел персонала с умывальником

2

 

11.

Комната хранения уборочного инвентаря

4

 

Помещения дополнительного образования.

5.76. Рекомендуемые состав и площади помещений дополнительного образования приведены в таблице 5.5.

5.77. Данная группа помещений обеспечивает проведение мероприятий, направленных на:

- раскрытие врожденных склонностей воспитанников, формирование его культурных интересов;

- приобретение воспитанниками трудовых навыков, необходимых для выполнения определенной работы;

- проведение терапевтической коррекционной работы, заключающейся в развитии различных видов моторики у несовершеннолетних с задержкой психического развития и легкими формами умственной отсталости.

5.78. Номенклатура видов дополнительного образования должна быть расширенной, предоставляющей возможность индивидуального подбора каждому воспитаннику типа занятия, наиболее точно отвечающего его склонностям.

Специализация, состав и площади помещений дополнительного образования в каждом конкретном случае уточняются заданием на проектирование, при этом номенклатура их зависит от состава воспитанников на данный момент.

5.79. Все помещения дополнительного образования рассчитаны на проведение занятий в группе из 5 чел.

5.80. При помещениях дополнительного образования следует предусматривать кладовые для хранения материалов и готовых изделий.

Таблица 5.5

Рекомендуемые состав и площади помещений дополнительного образования.

п.п.

Наименование помещений

Площадь помещений, м2

Примечания

1

2

3

4

1.

Изостудия с кладовой

32 + 6

Приложение 2, Рис. П.5.

2.

Театрально-художественная мастерская с кладовой

37 + 6

Приложение 2, Рис. П.6.

3.

Кукольная мастерская (изготовление) с кладовой

37 + 6

Приложение 2, Рис. П.7.

4.

Мастерская выжигания по дереву с кладовой

36 + 6

Приложение 2, Рис. П.8.

5.

Мастерская лепки и обжига с кладовой

33 + 6

Приложение 2, Рис. П.9.

6.

Мастерская ткачества с кладовой

36 + 6

Приложение 2, Рис. П.10.

7.

Мастерская рукоделия (вязания, вышивания, бисероплетения)

27

Приложение 2, Рис. П.11.

8.

Швейная мастерская с кладовой

27 + 6

Приложение 2, Рис. П.12.

9.

Мастерская изготовления поделок из кожи

27

Приложение 2, Рис. П.13.

10.

Комната мастеров

24

 

11.

Санитарный узел для воспитанников с умывальниками в шлюзе

16

 

12.

Санузел персонала с умывальником

2

 

13.

Кладовые для хранения сырья, материалов и готовой продукции

24 - 36

 

14.

Комната хранения уборочного инвентаря

4

 

Лечебно-реабилитационные помещения (психолого-коррекционные, коррекционные и медицинские).

5.81. Рекомендуемые состав и площади лечебно-реабилитационных помещений приведены в таблице 5.6. Состав, количество кабинетов и их площади должны уточняться заданием на проектирование в каждом конкретном случае.

5.82. Группа лечебно-реабилитационных помещений предназначена для проведения мероприятий, направленных на:

- оздоровление и профилактику, лечение физических и психических заболеваний у воспитанников;

- нормализацию психического состояния воспитанников;

- преодоление отклонений в эмоционально-волевой сфере воспитанников;

- формирование законопослушного поведения несовершеннолетних;

- социально-средовую адаптацию воспитанников;

- социально-бытовую адаптацию воспитанников.

5.83. Группа медицинских помещений рассчитана на профилактику соматических заболеваний у воспитанников и общее укрепление организма.

5.84. Медицинские помещения следует проектировать с учетом положений МГСН 4.12-97 и Пособия по проектированию учреждений здравоохранения к СНиП 2.08.02-89*. Все кабинеты, входящие в данную группу, рассчитаны на индивидуальную работу с воспитанниками.

Учитывая специфику контингента, номенклатура медицинских помещений в СКУВУ должна быть достаточно расширенной и включать кабинеты специалистов различного профиля.

5.85. Кабинеты детского психиатра и психотерапевта могут быть объединены в один.

5.86. Кабинет групповых занятий ЛФК рассчитан на проведение занятий в группе из 5 чел.

5.87. Психолого-коррекционные помещения предназначены для проведения мероприятий, направленных на:

- индивидуальную психологическую коррекцию;

- преодоление социальной дезадаптации.

5.88. В состав оборудования кабинета групповой психотерапии рекомендуется включать кресла, журнальный столик, компьютерный стол специалиста. Кабинет рассчитан на проведение занятий группы из 5 чел.

5.89. Кабинет релаксации рассчитан на проведение индивидуальной психолого-терапевтической коррекции. В состав оборудования его рекомендуется включать виброкушетку, виброкресло, стул специалиста, столик для специальной аппаратуры и установку с водяным каскадом.

5.90. Коррекционные помещения предназначены для проведения мероприятий, направленных на:

- социально-средовую адаптацию воспитанников;

- социально-бытовую адаптацию воспитанников.

5.91. В состав коррекционных помещений следует включать кабинет коррекционных игр «лего», рассчитанный на проведение занятий в группе из 5 чел. В состав оборудования данного кабинета рекомендуется включать столы на 1 воспитанника, которые в случае проведения групповых занятий могут быть составлены в один стол, закрывающиеся шкафы с пособиями, стол специалиста.

5.92. Основное назначение зала ситуационных игр, входящего в состав коррекционных помещений - социально-средовая адаптация воспитанников. Он рассчитан на проведение занятий в группе из 15 чел. В состав оборудования зала следует включать стол, за которым проводятся занятия всех присутствующих, закрывающиеся шкафы с пособиями, стол специалиста.

5.93. Кабинет социально-бытовой адаптации представляет собой помещение, включающее зону приготовления пищи (кухня) и зону отдыха (гостиная). Кабинет рассчитан на проведение занятий в группе из 5 чел. В оборудование кухни рекомендуется включать разделочный стол, плиту, холодильник, шкаф сухих продуктов, шкаф кухонной посуды, шкаф столовой посуды, мойку. В оборудование гостиной входят: обеденный стол со стульями, мягкая мебель (диван, два кресла), журнальный столик.

Таблица 5.6

Рекомендуемые состав и площади лечебно-реабилитационных помещений (психолого-коррекционных, коррекционных и медицинских).

№ п.п.

Наименование помещений

Площадь помещений, м2

Примечания

1

2

3

4

Медицинские помещения

1.

Кабинет врача-педиатра

10

 

2.

Кабинет гинеколога-венеролога

12

В СКУВУ для девочек Приложение 2, Рис. П.14.

3.

Кабинет венеролога

10

В СКУВУ для мальчиков

4.

Кабинет детского психиатра и психотерапевта

10

 

5.

Кабинет стоматолога

16

Приложение 2, Рис. П.14.

6.

Кабинет медицинской сестры - процедурная

12

 

7.

Фитокабинет с кладовой

10 + 3

 

8.

Ингаляторий на 3 места со стерилизационной

12

Приложение 2, Рис. П.15.

9.

Кабинет физиотерапии

24

Приложение 2, Рис. П.16.

10.

Кабинет групповых занятий ЛФК с раздевальной и кладовой

36 + 7 + 6

Приложение 2, Рис. П.17.

11.

Кабинет массажа на 1 место

8

 

Психолого-коррекционные помещения

1.

Кабинет психолога

12

 

2.

Кабинет групповой психотерапии

24

Приложение 2, Рис. П.18.

3.

Кабинет релаксации

10

Приложение 2, Рис. П.19.

Коррекционные помещения

1.

Кабинет коррекционных игр «лего»

20

Приложение 2, Рис. П.20.

2.

Зал ситуационных игр

38

Приложение 2, Рис. П.21.

3.

Кабинет социально-бытовой адаптации

36

Приложение 2, Рис. П.22.

Общие помещения

1.

Санитарные узлы для воспитанников с умывальниками в шлюзе

16

 

2.

Санитарный узел персонала с умывальником

2

 

3.

Комната сотрудников режимной службы

10

 

4.

Комната хранения уборочного инвентаря

4

 

Культурно-досуговые и физкультурноздоровительные помещения

5.94. Рекомендуемый состав и площади культурно-досуговых и физкультурно-оздоровительных помещений приведены в таблице 5.7.

5.95. Эта группа помещений обеспечивает проведение мероприятий, направленных на:

- культурное и эстетическое развитие;

- проведение массовых мероприятий;

- социально-средовую адаптацию;

- физическое развитие.

5.96. В состав культурно-досуговых помещений рекомендуется включать зал с подиумом для проведения массовых мероприятий, рассчитанный на 75 % вместимости СКУВУ (50 % - воспитанники, 25 % - персонал и гости).

Данный зал является помещением для проведения мероприятий по социально-средовой адаптации воспитанников. Места в зале рекомендуется предусматривать съемными, секционными со складированием по периметру зала. Освобождаемая в этом случае площадь зала может быть использована для проведения игр. Количество зрительских мест в ряду должно быть кратно количеству воспитанников в группе с воспитателем, т.е. 6 чел.

5.97. Зал гимнастических занятий и тренажерный зал рассчитаны на проведение занятий в группе из 5 чел. Раздевальные при зале гимнастических занятий и тренажерном зале проектируется на 5 чел.

Раздевальные и кладовые для хранения спортивного и тренажерного инвентаря располагаются смежно с залом гимнастических занятий и тренажерным залом.

Зал гимнастических занятий при необходимости может использоваться для проведения занятий по борьбе и тяжелой атлетике.

5.98. Проектирование бассейна следует осуществлять в соответствии с положениями справочного пособия «Проектирование бассейнов» к СНиП 2.08.02-89* и СанПиН 2.1.2.1188-03. Рекомендуемый размер ванны бассейна для обучения плаванию и оздоровления - 25´11,5 м, глубина - 1,2 м в мелкой части; 1,8 м - в глубокой. Одновременная загрузка бассейна - 5 чел.

5.99. Длина ножной ванны при бассейне 1,8 м по направлению движения от душевой к чаше бассейна, ширина - по ширине прохода.

5.100. Раздевальная при бассейне проектируется на группу 5 чел. Площадь раздевальной с душевой и санитарным узлом следует предусматривать не менее 2,5 м2 на 1 воспитанника. В СКУВУ для девочек в раздевальной следует предусмотреть установку для сушки волос.

Таблица 5.7

Рекомендуемые состав и площади культурно-досуговых и физкультурно-оздоровительных помещений.

№ п.п.

Наименование помещений

Площадь помещений, м2

Примечания

1

2

3

4

Культурно-досуговые помещения

1.

Зал для проведения массовых мероприятий на 36 зрительских мест с кладовой

52 + 12

Приложение 2, Рис. П.23.

2.

Кинопроекционная с перемоточной и радиоузлом

16

 

3.

Комната сотрудников режимной службы

10

 

4.

Санитарный узел для воспитанников с умывальниками в шлюзе

16

 

5.

Помещение для артистов

8

 

6.

Фильмовидеотека

4

 

7.

Кладовая мебели и реквизита

20

 

8.

Кладовая аппаратуры

10

 

Физкультурно-оздоровительные помещения

1.

Зал гимнастических занятий с раздевальной и кладовой

37 + 7 + 13

Приложение 2, Рис. П.24.

2.

Тренажерный зал с раздевальной и кладовой

37 + 7 + 13

Приложение 2, Рис. П.24.

3.

Комната инструкторов-методистов с санузлом

10 + 3

В состав оборудования санузла входят: душ, умывальник, унитаз

4.

Комната сотрудников режимной службы

10

 

5.

Санузел для воспитанников с умывальниками в шлюзе

16

 

6.

Комната гигиены для девочек

2

Разместить при санузле в СКУВУ для девочек

7.

Санузел с умывальником для персонала

2

 

8.

Комната хранения уборочного инвентаря

4

 

9.

Бассейн с ванной 25´11,5 м

362,3

С учетом обходной дорожки

10.

Инвентарная при бассейне

10

 

11.

Раздевальная на 5 чел.

5

 

12.

Душевая при раздевальной включая ножную ванну

6

2 душевые сетки

13.

Санузел при раздевальной с умывальником

2

 

14.

Комната инструктора с санузлом

6 + 3

В состав оборудования санузла входят: душ, умывальник, унитаз

15.

Комната медсестры

10

Должны располагаться смежно и иметь выход на обходную дорожку

16.

Лаборатория анализа воды

8

17.

Узел управления

6

18.

Помещение хранения химических реактивов

4

 

19.

Реагентная

4

 

20.

Комната хранения уборочного инвентаря

4

 

Помещения медицинского изолятора.

5.101. Рекомендуемые состав и площади помещений медицинского изолятора приведены в таблице 5.8.

5.102. Вместимость изолятора следует предусматривать из расчета 10 - 15 % от числа воспитанников.

5.103. Помещения изолятора сообщаются с остальными помещениями СКУВУ через тамбур-шлюз, в котором следует размещать умывальник и вешалку для смены халатов.

5.104. В состав помещений изолятора следует включать изоляционные палаты на 1 и 2 чел. Количество палат в каждом конкретном случае определяется заданием на проектирование в соответствии с п. 5.102 настоящих Рекомендаций.

5.105. Между изоляционными палатами и коридором следует предусматривать глухие (не открывающиеся) окна для наблюдения за воспитанниками.

5.106. Для организации питания воспитанников, находящихся в изоляторе, в состав его помещений следует включать буфетную с моечной посуды.

5.107. Вход в санитарные узлы в изоляторе следует проектировать из коридора для возможного наблюдения за воспитанниками. Учитывая возможность возникновения различных инфекционных заболеваний и трудности госпитализации воспитанников учреждения, в состав помещений изолятора следует включать 2 санузла и 2 туалетные. Рекомендуемое оборудование санитарного узла: унитаз, умывальник; туалетной: унитаз, умывальник, ванна. В СКУВУ для мальчиков в состав оборудования санитарного узла следует включать писсуар. В СКУВУ для девочек - биде.

Таблица 5.8

Рекомендуемый состав и площади помещений медицинского изолятора.

п.п.

Наименование помещений

Площадь помещений, м2

Примечания

1

2

3

4

1.

Изоляционная палата на 1 место

6

 

2.

Изоляционная палата на 2 места

9

 

3.

Санитарный узел для воспитанников

4

 

4.

Туалетная для воспитанников

5

 

5.

Процедурная

8

 

6.

Кабинет врача, медицинской сестры

16

 

7.

Комната персонала с раздевальной и санузлом

10 + 4 + 3

Состав оборудования санузла: душ, унитаз, умывальник

8.

Буфетная с моечной посуды

12

 

9.

Кладовая со шкафами для чистого и грязного белья

6

 

10.

Комната сотрудников режимной службы

10

 

11.

Комната хранения уборочного инвентаря

4

 

Помещения питания.

5.108. Питание для воспитанников СКУВУ организуется в жилых группах.

5.109. Производственные помещения кухни следует рассчитывать на работу на сырье. Кроме питания детей, помещения кухни должны обеспечивать питание персонала.

В производственные помещения столовой должен предусматриваться отдельный вход.

5.110. Для питания персонала предусматривается обеденный зал самообслуживания (или буфет) из расчета 1,2 м2 на 1 посадочное место. Его следует располагать в составе помещений кухни (если по архитектурно-планировочному решению группа помещений питания непосредственно примыкает к административной группе помещений) или - в группе административных помещений. Количество мест определяется заданием на проектирование, исходя из количества питающихся в учреждении, продолжительности обеденного времени и количества смен. При зале предусматривается подсобное помещение, предназначенное для раздачи пищи, хранения и мойки посуды площадью 8 м2.

5.111. Для обслуживания жилых групп и изолятора при помещениях кухни следует предусматривать раздаточную с удобным доступом к внутренним коммуникационным связям (коридорам, лестницам).

5.112. Учитывая специфику контингента воспитанников СКУВУ (большое количество детей с хроническими заболеваниями в запущенной форме) в состав производственных помещений кухни следует включать кабинет диетсестры.

5.113. Рекомендуемые состав и площади производственных помещений кухни приведены в таблице 5.9.

Таблица 5.9

Рекомендуемые состав и площади производственных помещений кухни.

№ п.п.

Наименование помещений

Площадь помещений, м2

Примечания

1

2

3

4

1.

Горячий цех

70

 

2.

Холодный цех

 

3.

Рыбный цех

24

 

4.

Мясной цех

 

5.

Хлеборезка, хранение хлеба

8

 

6.

Цех мучных изделий

14

 

7.

Раздаточная

18

 

8.

Сервизная

8

 

9.

Моечная кухонной посуды

10

 

10.

Моечная столовой посуды

18

 

11.

Моечная котлов

10

 

12.

Охлаждаемая камера для хранения:

 

 

 

- молочных продуктов

8

 

 

- рыбы, мяса

8

 

 

- яиц

6

 

13.

Кладовая сухих продуктов

6

 

14.

Кладовая овощей

12

 

15.

Кладовая суточного запаса

8

 

16.

Помещение первичной обработки овощей

8

 

17.

Загрузочная, кладовая тары

14

 

18.

Камера утилизации отходов с техническим сливом

4

 

19.

Комната заведующего производством

8

 

20.

Кабинет диетсестры

8

 

21.

Бельевая, гардеробная персонала, душевая, уборная

18

 

22.

Комната хранения уборочного инвентаря

4

 

Административно-бытовые помещения.

5.114. Рекомендуемые состав и площади административно-бытовых помещений приведены в таблице 5.10.

5.115. В состав административно-бытовых помещений рекомендуется включать кабинет сотрудника по организации перевозки несовершеннолетних воспитанников. Основная задача данной службы - организация доставки и сопровождения воспитанника, например, к месту его дальнейшего проживания. Кабинет специалистов рассчитан на одновременное пребывание 2 сотрудников.

5.116. Комната дежурной части должна быть оборудована центральным пультом, телефонами оперативной связи. Входная дверь в дежурную часть должна автоматически закрываться.

5.117. Кладовую чистого белья и кладовую грязного белья рекомендуется располагать рядом с прачечной. В кладовой чистого белья следует предусмотреть место для починки белья.

5.118. Прачечная, кладовая сезонной одежды и инвентарные могут располагаться в подвальном помещении.

5.119. Помещение кладовой сезонной одежды и обуви следует оборудовать принудительной вентиляцией.

5.120. В СКУВУ не рекомендуется организовывать дисциплинарное помещение. Изоляция нарушающих дисциплину в данном случае может привести к противоположному эффекту.

5.121. Комнату для сбора и досмотра передач для воспитанников рекомендуется располагать вблизи комнаты персонала режимной службы. Прием передач осуществляется дежурным на КПП.

5.122. В состав помещений КПП входят: помещение для охранника с санитарным узлом, проход с автоматически закрывающимися металлическими дверями и турникетом для сотрудников и посетителей.

Таблица 5.10

Рекомендуемые состав и площади помещений административно-бытового обслуживания.

№ п.п.

Наименование помещений

Площадь помещений, м2

Примечания

1

2

3

4

1.

Кабинет директора

36

 

2.

Приемная

18

Смежно с кабинетом директора

3.

Канцелярия

12

 

4.

Кабинет заместителя директора по хозяйственной части

16

 

5.

Помещение дежурного персонала технического обслуживания

14

 

6.

Бухгалтерия с кассой

18 + 4

 

7.

Комната сестры-хозяйки

12

 

8.

Кабинет сотрудников службы организации перевозки воспитанников

12

 

9.

Комната психологической разгрузки персонала

18

 

10.

Комната отдыха персонала

36

 

11.

Компьютерный центр с архивом

24 + 10

 

12.

Помещение пожарного поста

12

 

13.

Кладовая чистого белья

20

 

14.

Кладовая грязного белья

18

 

15.

Прачечная

22

 

16.

Кладовая сезонной одежды и обуви

22

 

17.

Инвентарные

40

 

18.

Санитарные узлы для мужчин и женщин с умывальниками

2´2

 

19.

Кабины личной гигиены для женщин

2

Разместить при санитарном узле

20.

Комната хранения уборочного инвентаря

4

 

21.

Центральный пост режимной службы с кладовой для хранения видеозаписей слежения

16 + 6

 

22.

Комната для сбора и досмотра корреспонденции и передач для воспитанников

8

 

23.

Комната персонала режимной службы с гардеробной и санузлом

14

В состав оборудования санузла входят: душ, унитаз, умывальник

24.

Комната начальника смены

10

 

25.

Помещение КПП

11

Приложение 2, Рис. П.25.

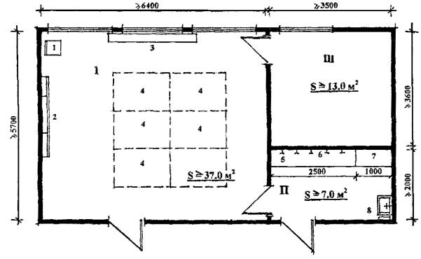
ПРИЛОЖЕНИЯ

Приложение 1

Концептуальные положения организации СКУВУ.

Основой концепции организации СКУВУ является необходимость создания учебно-воспитательного учреждения, обеспечивающего специальные условия для индивидуальной коррекции отклонений в развитии детей и подростков, совершивших общественно опасные деяния, а также охранительного режима с учетом психо-физических особенностей детей и подростков с задержкой психического развития и легкими формами умственной отсталости.

Детям и подросткам данной группы свойственны снижение работоспособности, низкий уровень активности познавательной деятельности, замедление переработки информации, ограничение в объеме и непрочность памяти, незрелость эмоциональной сферы, несформированность произвольного поведения, отставание в развитии речи, несбалансированность процессов торможения и возбуждения, отклонения в развитии двигательной сферы, нарушение моторики кистей и пальцев рук.

Взаимоотношения со средой у подобных несовершеннолетних характеризуется как состояние хронической дезадаптации.

Основные концептуальные положения организации учреждения строятся на указанной выше специфике психо-физического развития данного контингента СКУВУ:

- обеспечение активного приспособления воспитанников к условиям социальной среды на основе групп «малого контакта», т.е. групп проживания и обучения численностью не более 5 чел., (по мнению психологов оптимальное число для осуществления коррекционной деятельности). Нежелательность одновременного постоянного пребывания нескольких групп в одном помещении из-за нарушения эмоционального комфорта и психического равновесия воспитанников;

- учет особенностей речевого и психического развития воспитанников, требующих ежедневного вмешательства специалистов - логопеда и дефектолога, непосредственно по месту проживания;

- организация постоянного медицинского наблюдения за воспитанниками по месту проживания (предотвращение психических срывов несовершеннолетних);

- необходимость коррекции отклонений в развитии двигательной сферы с применением массажа и занятий ЛФК;

- средовая адаптация воспитанников на основе ситуационных игр (одновременное пребывание 3 групп) и массовых мероприятий (одновременное пребывание 5 групп);

- необходимость развития бытовых навыков самообеспечения, социально-бытовая адаптация непосредственно в условиях жилых групп (самостоятельное мытье столовой посуды, накрывание на стол, уборка помещений, стирка носильных вещей и т.п.);

- формирование у воспитанников рефлексии, связанной с мотивацией обучения, осознанностью действий и самоконтролем за выполнением собственных действий следует организовывать отдельно от жилых групп;

- развитие моторики на основе уроков ручного труда с формированием обобщенных приемов умственной работы;

- подбор видов деятельности для каждого воспитанника по индивидуальной программе на основе расширенной номенклатуры видов профессиональной подготовки и дополнительного образования;

- снятие асоциального поведения у воспитанников психолого-коррекционными мероприятиями без дисциплинарных мер и изоляции;

- коррекция двигательных дефектов воспитанников на основе подбора специальных физкультурно-оздоровительных занятий, в том числе плаванием - наиболее эффективным средством достижения как коррекционных целей, так и физического развития организма аномальных детей, как правило, отличающихся недоразвитием одновременно телосложения и психики.

Приложение 2

Примеры планировочных решений.

ЭКСПЛИКАЦИЯ ОБОРУДОВАНИЯ

1. Кровать; 2. Стул

Рис. П.1. Спальные комнаты на (I) и на 2 (II) места.

ЭКСПЛИКАЦИЯ ОБОРУДОВАНИЯ

1. Стол воспитанника; 2. Стул воспитанника; 3. Стол воспитателя (подсобный стол при организации питания); 4. Стул воспитателя (психолога); 5. Комбинированный шкаф; 6. Телевизор с видеомагнитофоном; 7. Мягкая мебель; 8. Журнальный столик

Рис. П.2. Многофункциональная комната дневного пребывания.

Расстановка оборудования: а) для приготовления уроков; б) для организации питания, проведения психолого-коррекционных занятий и досуговых мероприятий.

ЭКСПЛИКАЦИЯ ОБОРУДОВАНИЯ

1. Стол ученический; 2. Стул ученический; 3. Стол учителя; 4. Стул учителя; 5. Классная доска; 6. Шведская стенка; 7. Ковер; 8. Стул воспитателя; 9. Мягкая мебель; 10. Журнальный столик; 11. Умывальник с вешалкой для полотенца

Рис. П.3. Класс с уголком релаксации.

ЭКСПЛИКАЦИЯ ОБОРУДОВАНИЯ

1. Ученический стол; 2. Стул; 3. Стол преподавателя; 4. Компьютерный стол преподавателя с компьютером; 5. Ученический стол с компьютером; 6. Классная доска; 7. Стул воспитателя; 8. Умывальник с вешалкой для полотенца

Рис. П.4. Компьютерный класс.

ЭКСПЛИКАЦИЯ ОБОРУДОВАНИЯ

I - ИЗОСТУДИЯ

1. Мольберт; 2. Помост для моделей; 3. Стенд для рисунков и картин; 4. Стол преподавателя; 5. Стул преподавателя; 6. Умывальник с вешалкой для полотенца; 7. Стул воспитателя

II - КЛАДОВАЯ

8. Комбинированный шкаф

Рис. П.5. Изостудия с кладовой

ЭКСПЛИКАЦИЯ ОБОРУДОВАНИЯ

I - МАСТЕРСКАЯ

1. Стол ученический для индивидуальной работы; 2. Стул; 3. Рабочий стол; 4. Швейная машина; 5. Табурет регулируемый; 6. Мольберт; 7. Стол мастера; 8. Стул мастера; 9. Стул воспитателя; 10. Умывальник с вешалкой для полотенца; 11. Шкаф для экспозиций; 12. Урна для мусора

II - КЛАДОВАЯ

13. Комбинированный шкаф

Рис. П.6. Театрально-художественная мастерская с кладовой

ЭКСПЛИКАЦИЯ ОБОРУДОВАНИЯ

I - МАСТЕРСКАЯ

1. Швейная машина; 2. Табурет регулируемый; 3. Рабочий стол; 4. Стул воспитателя; 5. Ширма для представлений; 6. Стол мастера; 7. Стул мастера; 8. Шкаф для экспозиции; 9. Умывальник с вешалкой для полотенца

II - КЛАДОВАЯ

10. Шкаф комбинированный

Рис. П.7. Кукольная мастерская (изготовление) с кладовой.

ЭКСПЛИКАЦИЯ ОБОРУДОВАНИЯ

I - МАСТЕРСКАЯ

1. Рабочий стол с прибором для выжигания; 2. Регулируемый табурет; 3. Стол мастера; 4. Стул мастера; 5. Стул воспитателя; 6. Стол для рисования; 7. Шкаф для экспозиции; 8. Урна для мусора; 9. Умывальник с вешалкой для полотенца; 10. Тумбочка с лакокрасочными материалами

II - КЛАДОВАЯ

11. Комбинированный шкаф

Рис. П.8. Мастерская выжигания по дереву с кладовой.

ЭКСПЛИКАЦИЯ ОБОРУДОВАНИЯ

I - МАСТЕРСКАЯ

1. Рабочий стол; 2. Регулируемый табурет; 3. Рабочий стол для индивидуальной работы; 4. Печь для обжига; 5. Гончарный круг; 6. Стул воспитателя; 7. Шкаф для экспозиции; 8. Стол мастера; 9. Стул мастера; 10. Умывальник с вешалкой для полотенца; 11. Урна для мусора

II - КЛАДОВАЯ

12. Комбинированный шкаф

Рис. П.9. Мастерская лепки и обжига с кладовой.

ЭКСПЛИКАЦИЯ ОБОРУДОВАНИЯ

I - МАСТЕРСКАЯ

1. Ткацкий станок; 2. Табурет регулируемый; 3. Рабочий стол; 4. Ящик для пряжи; 5. Стул воспитателя; 6. Стол мастера; 7. Стул мастера; 8. Умывальник с вешалкой для полотенца; 9. Урна для мусора

II - КЛАДОВАЯ

10. Комбинированный шкаф

Рис. П.10. Мастерская ткачества с кладовой

ЭКСПЛИКАЦИЯ ОБОРУДОВАНИЯ

1. Рабочий стол; 2. Регулируемый табурет; 3. Швейная машина для вышивания; 4. Вязальная машина; 5. Стул воспитателя; 6. Стол мастера; 7. Стул мастера; 8. Металлический шкаф для хранения материалов; 9. Урна для мусора; 10. Умывальник с вешалкой для полотенца

Рис. П.11. Мастерская рукоделия (вязания, вышивания, бисероплетения)

ЭКСПЛИКАЦИЯ ОБОРУДОВАНИЯ

I - МАСТЕРСКАЯ

1. Высокий стол для раскроя тканей; 2. Стол со швейной машиной; 3. Регулируемый табурет; 4. Манекен; 5. Гладильная доска; 6. Кронштейн для выполняемой продукции; 7. Стул воспитателя; 8. Стол мастера; 9. Стул мастера; 10. Умывальник с вешалкой для полотенца; 11. Урна для мусора

II - КЛАДОВАЯ

12. Комбинированный шкаф

Рис. П.12. Швейная мастерская с кладовой

ЭКСПЛИКАЦИЯ ОБОРУДОВАНИЯ

1. Рабочий стол; 2. Регулируемый табурет; 3. Стул воспитателя; 4. Стол мастера; 5. Стул мастера; 6. Металлический шкаф для хранения лоскутов кожи, клеев, красок и предметов ухода за кожей; 7. Стол со швейной машиной; 8. Высокий стол для натягивания кожи; 9. Тумбочка с емкостью для замачивания кожи; 10. Умывальник с вешалкой для полотенца; 11. Урна для мусора

Рис. П.13. Мастерская изготовления поделок из кожи

ЭКСПЛИКАЦИЯ ОБОРУДОВАНИЯ

I - КАБИНЕТ ГИНЕКОЛОГА-ВЕНЕРОЛОГА

1. Кресло гинекологическое; 2. Винтовой табурет; 3. Передвижной светильник; 4. Стол врача; 5. Стул; 6. Столик инструментальный; 7. Бачок для мусора; 8. Умывальник; 9. Шкаф медицинский; 10. Ширма

II - КАБИНЕТ СТОМАТОЛОГА

1. Кресло стоматологическое; 2. Столик инструментальный; 3. Установка стоматологическая универсальная; 4. Винтовой табурет; 5. Плевательница; 6. Светильник; 7. Шкаф медицинский; 8. Умывальник; 9. Бачок для мусора; 10. Стол врача; 11. Стул

Рис. П.14. Кабинеты гинеколога-венеролога (I) и стоматолога (II)

ЭКСПЛИКАЦИЯ ОБОРУДОВАНИЯ

1. Стационарная ингаляционная установка; 2. Винтовой табурет; 3. Стол процедурной медсестры; 4. Стул; 5. Умывальник с вешалкой для полотенца; 6. Бачок для мусора

Рис. П.15. Ингаляторий на 3 места

ЭКСПЛИКАЦИЯ ОБОРУДОВАНИЯ

1. Кушетка; 2. Столик c аппаратурой; 3. Столик с аппаратурой для приема процедур сидя; 4. Стул; 5. Стол врача; 6. Шкаф медицинский; 7. Умывальник с вешалкой для полотенца

Рис. П.16. Кабинет физиотерапии

ЭКСПЛИКАЦИЯ ОБОРУДОВАНИЯ

I - кабинет

1. Места для занятий (ковры); 2. Стол методиста; 3. Стул методиста; 4. Шведская стенка; 5. Стул воспитателя; 6. Скамья; 7. Зеркало

II - раздевальная

8. Скамья; 9. Крючки для одежды; 10. Шкаф методиста; 11. Умывальник с вешалкой для полотенца

III - кладовая

12. Шкаф; 13. Манеж для хранения мячей

Рис. П.17. Кабинет групповых занятий ЛФК с раздевальной и кладовой

ЭКСПЛИКАЦИЯ ОБОРУДОВАНИЯ

1. Стол специалиста с компьютером; 2. Стул специалиста; 3. Журнальный стол; 4. Мягкая мебель; 5. Шкаф; 6. Стул воспитателя; 7. Умывальник с вешалкой для полотенца

Рис. П.18. Кабинет групповой психотерапии

ЭКСПЛИКАЦИЯ ОБОРУДОВАНИЯ

1. Виброкушетка; 2. Виброкресло; 3. Столик для специальной аппаратуры; 4. Установка с водяным каскадом; 5. Стул специалиста; 6. Штора

Рис. П.19. Кабинет релаксации

ЭКСПЛИКАЦИЯ ОБОРУДОВАНИЯ

1. Стол воспитанника; 2. Стул воспитанника; 3. Закрывающийся шкаф с пособиями; 4. Стул воспитателя; 5. Стол специалиста; 6. Стул специалиста; 7. Урна для мусора; 8. Умывальник с вешалкой для полотенца

Рис. П.20. Кабинет коррекционных игр «лего».

Варианты расстановки оборудования для проведения: а) индивидуальных занятий; б) групповых занятий

ЭКСПЛИКАЦИЯ ОБОРУДОВАНИЯ

1. Рабочий стол; 2. Стул воспитанника; 3. Стул специалиста; 4. Компьютерный стол специалиста с компьютером; 5. Закрывающиеся шкафы для пособий; 6. Ученическая доска; 7. Умывальник с вешалкой для полотенца; 8. Стулья для воспитателей

Рис. П.21. Зал ситуационных игр

экспликация оборудования

1. Стол-шкаф кухонной посуды; 2. Холодильник; 3. Мойка; 4. Электроплита с воздухоочистителем; 5. Шкаф для сухих продуктов; 6. Шкаф для столовой посуды; 7. Высокая сервировочная стойка - разделочный стол; 8. Обеденный стол; 9. Стул воспитанника; 10. Стул воспитателя; 11. Мягкая мебель; 12. Журнальный столик

Рис. П.22. Кабинет социально-бытовой адаптации

ЭКСПЛИКАЦИЯ ОБОРУДОВАНИЯ

I - зал

1. Сцена; 2. Пианино; 3. Табурет винтовой; 4. Ширма; 5. Зрительные места; 6. Место складирования зрительских мест

II - кладовая

7. Шкаф; 8. Умывальник с вешалкой для полотенца

Рис. П.23. Зал для проведения массовых мероприятий с кладовой

ЭКСПЛИКАЦИЯ ОБОРУДОВАНИЯ

I - зал для гимнастических и тренажерных занятий

1. Стул воспитателя; 2. Шведская стенка; 3. Скамья; 4. Зона размещения тренажеров

II - раздевальная

5. Скамья для переодевания; 6. Крючки для одежды; 7. Шкаф методиста; 8. Умывальник с вешалкой для полотенца

III - кладовая хранения спортивного и тренажерного инвентаря

Рис. П.24. Зал гимнастических занятий (тренажерный зал) с раздевальной и кладовой

ЭКСПЛИКАЦИЯ ОБОРУДОВАНИЯ

I - помещение поста режимной службы

а) Комната дежурного

1. Стол с пультом управления; 2. Стул; 3. Стеллаж для складирования передач

б) Санузел

II - проход для сотрудников и посетителей на территорию СКУВУ

4. Турникет

III - ворота для проезда автотранспорта на территорию СКУВУ

Рис. П.25. Помещение контрольно-пропускного пункта

 




ГОСТЫ, СТРОИТЕЛЬНЫЕ и ТЕХНИЧЕСКИЕ НОРМАТИВЫ.
Некоммерческая онлайн система, содержащая все Российские Госты, национальные Стандарты и нормативы.
В Системе содержится более 150000 файлов нормативно-технической документации, действующей на территории РФ.
Система предназначена для широкого круга инженерно-технических специалистов.

Рейтинг@Mail.ru Яндекс цитирования

Copyright © www.gostrf.com, 2008 - 2026