Крупнейшая бесплатная информационно-справочная система онлайн доступа к полному собранию технических нормативно-правовых актов РФ. Огромная база технических нормативов (более 150 тысяч документов) и полное собрание национальных стандартов, аутентичное официальной базе Госстандарта. GOSTRF.com - это более 1 Терабайта бесплатной технической информации для всех пользователей интернета. Все электронные копии представленных здесь документов могут распространяться без каких-либо ограничений. Поощряется распространение информации с этого сайта на любых других ресурсах. Каждый человек имеет право на неограниченный доступ к этим документам! Каждый человек имеет право на знание требований, изложенных в данных нормативно-правовых актах!

  


 

ТИПОВЫЕ ТЕХНОЛОГИЧЕСКИЕ КАРТЫ НА ПРОИЗВОДСТВО ОТДЕЛЬНЫХ ВИДОВ РАБОТ

ТИПОВАЯ

ТЕХНОЛОГИЧЕСКАЯ КАРТА

НА СПЕЦИАЛЬНЫЕ СТРОИТЕЛЬНЫЕ РАБОТЫ

6547030002

810002

 

монтаж мобильного здания многоцелевого

назначения из складывающихся секций

комплектной поставки (проект 254-05)

 

Москва-1990

 

РАЗРАБОТАНА

Институтом Оргуралсибстрой

СОГЛАСОВАНА

Управлением механизации и технологии

строительства Госстроя СССР

Главный инженер                 В.А.Шевков

Письмо от 27.01.1990г. № 12-34

Начальник отдела ТСП-3     В.А.Камышев

Введена в действие с 1.03.1990 г.

1. ОБЛАСТЬ ПРИМЕНЕНИЯ

Типовая технологическая карта (ТТК) разработана на монтаж мобильного здания многоцелевого назначения из складывающихся секций комплектной поставки (проект серии 254-05). Проект разработан экспериментальным конструкторским бюро НПО "Союзстройконструкция" Минуралсибстроя РСФСР.

Измеритель конечной продукции - одно здание.

Здание компонуется из сборных складывающихся секций, торцевых стен, комплекта ворот, фасонных элементов (нащельников), элементов крепления.

Пролет здания - 12м. Длина - 3n, где n - количество секций.

В данной ТТК предусмотрен монтаж 20 секций.

Габаритные размеры собранной (монтируемой) секции - 3,0x12,0x6,7 (h), м. Масса секций до 3,4 т.

Размеры и масса конструктивных элементов полной заводской готовности приведены в комплектовочной ведомости проекта.

Производство работ предусмотрено в летний и зимний периоды.

При привязке ТТК к конкретному объекту, и конкретным условиям производства работ должны быть уточнены объемы работ, средства механизации, потребности в трудовых и материально-технических ресурсах, фактические размеры здания.

2. ОРГАНИЗАЦИЯ И ТЕХНОЛОГИЯ ВЫПОЛНЕНИЯ РАБОТ

2.1. Организация работ.

До начала монтажа конструкций здания необходимо:

выполнить планировку участка строительства с устройством водоотлива;

разметить и закрепить проектное положение осей здания;

выполнить устройство фундаментов;

проложить подземные коммуникации;

выполнить устройство основания под полы;

принять по акту фундаменты с закладными деталями.

На приобъектный склад конструкции доставляют на полуприцепах, буксируемых автомобильными тягачами.

При возведении здания используют комплексный метод монтажа. Укрупнительная сборка секций выполняется непосредственно в зоне монтажа.

Монтаж конструкций осуществляют безвыверочным способом. Все работы проводит комплексная бригада в количестве 12 чел. (табл. I).

Таблица I

Профессия членов бригады

Разряды*

Кол-во

Основная

Смежная

VI

V

IV

III

Монтажник

Сварщик, такелажник

1

-

1

-

2

Монтажник

Такелажник

-

-

-

1

1

Монтажник

Такелажник, теплоизолировщик

-

2

4

3

9

* - разряды приведены для основных профессий.

Перечень рекомендуемых машин и оборудования приведен в табл. 2.

Таблица 2

Наименование комплекта машин и оборудования

Вариант (фасет-код)

Техническая характеристика

Марка

Количество

Кран монтажный

1

(01-1)

Кран пневмоколесный грузоподъемностью до 16 т

КС-4361

КС-4362

I

2

(01-2)

Кран автомобильный грузоподъемностью до 16 т

КС-4561А

КС-4571

МКА-16

I

Транспортные средства

I

Универсальный раздвижной полуприцеп

УПР1212

2

I

Тягач

МАЗ-504В

2

I

Бортовой автомобиль

ЗИЛ-130

I

Оборудование для рабочего места монтажника

I

(02-1)

Подмости облегченные

ЦНИИОМТП

РЧ 4401.00.000

2

2

(02-2)

Автоподъемник

АП-17

2

 

2.2. Технология производства работ

При возведении здания необходимо соблюдать такую последовательность выполнения работ:

установить опоры (фиксаторы) секций и панелей торцевых стен;

произвести монтаж секций, выполняя в зоне монтажа их укрупнительную сборку, теплоизолировать стыки по кровле, установить на стыках нащельники (I очередь);

произвести монтаж панелей торцевых стен и ворот (II очередь);

установить нащельники на стыках стеновых панелей с устройством теплоизоляции.

Схема монтажа здания представлена на листе 3.

Установка опор (фиксаторов) секций и панелей торцевых стен

При установке опор необходимо:

произвести разметку мест установки с нанесением рисок на закладных деталях фундамента;

установить опоры (фиксаторы) в проектном положении;

закрепить установленные опоры (фиксаторы) электродуговой сваркой.

Монтаж секций (с укрупнительной сборкой)

В технологическом процессе монтажа секций выделено три этапа.

На первом этапе необходимо (листы 4, 5):

уложить направляющие из швеллера;

на направляющие положить деревянные подкладки;

сложенные полусекции установить на подкладки;

в коньковых узлах установить по одному монтажному винту;

застропить блок полусекций в четырех точках, ближайших к коньку;

установить затяжки, подняв конструкцию до положения, в котором совпадут отверстия в затяжке и косынках; закрепить их винтами (вручную);

расстропить конструкцию.

На втором этапе (листы 6,7):

в коньковый стык уложить теплоизолирующий пакет;

установить внутренний нащельник;

установить наружный нащельник;

с наружной стороны низа стеновых панелей секции установить деревянные брусья, предохраняющие профилированный лист от повреждения;

зафиксировать брус клиньями;

подвязать к брусьям оттяжки;

к стеновым панелям снизу прикрепить кляммерами прокладки из минераловатной плиты,

На третьем этапе (листы 7, 8):

застропить блок в четырех точках, ближайших к карнизным узлам;

поднять конструкцию на 300-500мм над опорами;

установить секцию с помощью оттяжек на опоры;

установить средства подмащивания;

подкосы (по оси "I" - для первой секции, а для следующей - по оси, ближайшей к установленным секциям) закрепить болтами в проектном положении;

поставить болты, соединяющие секции в карнизных и коньковом узлах;

 



снять брусья с оттяжками;

расстропить конструкцию.

При выполнении теплоизоляционных работ и установке нащельников в стыке секции по кровле необходимо (лист 7):

установить средства подмащивания;

положить деревянные подкладки, предохраняющие профилированный лист от повреждения;

закрепить подкладки струбцинами;

закрепить страховочный фал с ловителем;

уложить теплоизоляционные пакеты;

установить нательники.

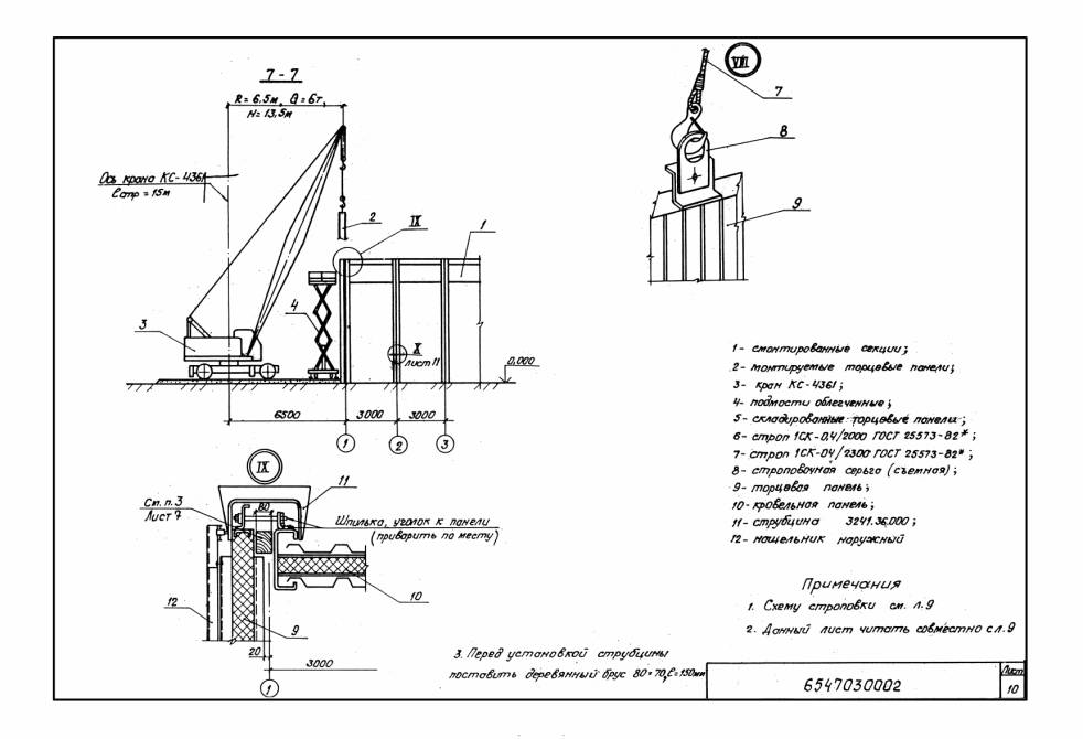
Монтаж панелей торцевых стен

В процессе монтажа панелей торцевых стен следует (листы 9, 10):

застропить панель; поднять на 300-500 мм над опорами; установить на опоры; установить средства подмащивания;

зафиксировать панель в проектном положении струбциной с помощью деревянного бруска;

расстропить конструкцию;

снять строповочные серьги;

приварить к раме секции элементы крепления по месту; закрепить панель, поставив шпильки;

снять струбцину.

Установка нащельников и устройство теплоизоляции в стыках стеновых панелей

Порядок выполнения работ по теплоизоляции и установке нащельников в стыках стеновых панелей следующий (листы 11, 12): установить средства подмащивания;

закрепить теплоизоляционные пакеты на стыках проволокой; установить нащельники.

3. ТРЕБОВАНИЯ К КАЧЕСТВУ И ПРИЕМКЕ РАБОТ

До начала работ по монтажу конструкций здания необходимо проверить соответствие положения закладных деталей фундамента их проектному положению и требованиям СНиП 3.03.01-87 по безвыверочному монтажу.

Приемочный контроль выполненных работ осуществляют согласно СНиП 3.03.01-87. При приемке работ предъявляют журналы монтажных и сварочных работ, акты освидетельствования скрытых работ в соответствии со СНиП 3.01.04-87.


Технические критерии и средства контроля операций и процессов приводятся в табл. 3.

Таблица 3

Наименование процессов, подлежащих контролю

Предмет контроля

Инструмент и способ контроля

Время контроля

Ответственный контролер

Технические критерии оценки качества

Подготовительные предмонтажные работы

Соответствие геометрических размеров проектным, наличие внешних дефектов

Рулетка металлическая, визуальный осмотр

До начала работ

Мастер

Отклонения, допускаемые рабочими чертежами

Установка опор секции и панелей торцевых стен

Точность выполнения работ

Рулетка, метр металлический, нивелир, теодолит

В процессе установки

То же

Отклонение: от продольной оси - 5 мм; от поперечной оси - 3 мм; от отметок поверхности опор - б мм

Сварочные работы

Контроль сварочных соединений в процессе их выполнения

Метр металлический, визуальный осмотр

В процессе работ

-"-

Приемка по ГОСТ 10922-75

Укрупнительная сборка секций

Несовпадение отверстий в смежных деталях - "чернота"

То же

То же

-"-

"Чернота" - ± 1 мм

Точность сборки

Рулетка, метр металлический

-"-

-"-

Отклонения, допускаемые рабочими чертежами

Монтаж конструкций

Точность монтажа

Отвес, метр металлический

-"-

-"-

Отклонение верха панелей стен от вертикали -10 мм

Качество затяжки винтов и болтов

Щуп (0=0,3 мм), молоток

По окончании монтажа

-"-

Щуп в пределах зоны, ограниченной шайбой, не должен проходить между собранными деталями на глубину более 20 мм. При отстукивании болты не должны смещаться

Установка нащельников

Соответствие проектному положению

Рулетка, метр металлический

В процессе работ

-"-

Отклонение от оси установки - 5 мм

Отклонение положения центров заклепок

То же

То же

-"-

Отклонения: вдоль нащельников - 20 мм; поперек нащельников - 5 мм

4. КАЛЬКУЛЯЦИЯ ЗАТРАТ ТРУДА, МАШИННОГО ВРЕМЕНИ, ЗАРАБОТНОЙ ПЛАТЫ НА ОДНО ЗДАНИЕ

Таблица 4

Наименование процесса

Номер для пересчета показателей

Единица измерения

Объем работ

Обоснование (ЕНиР и др нормы)

Норма  времени

Расценка р.-к.

Затраты труда

Заработная плата, р.-к.

Время пребывания

машины на

объекте, маш.-ч

Заработная

плата машиниста с учетом пребывания машины на объекте,

р.-к.

рабочих,

чел.-ч

машинис-

та, чел.-ч.

(маш.-ч)

рабочих

маши-

ниста

рабочих,

чел.-ч

машинис-

та, чел.-ч

(маш.-ч)

рабочих

маши-

ниста

I. Выгрузка с автотранспорта приспособлений, инвентаря, крепежных элементов массой до 0,5 т.

01

100 т

0,08

ЕНиР,§Е1-5,

табл.2,п1а,б

22

II

14-09

11-66

1,76

0,88

1-13

0-93

0,88

0-93

2. Выгрузка полусекций массой до 2 т

01

100 т

0,68

ЕНиР,§Е1-5, табл.2,п.1а,б

ПР-1(к=1,2)

8,64

4,32

5-53

4-58

5,88

2,97

3-76

3,11

2,97

3-11

3. Установка опор секции и панелей торцевых стен массой до 10 кг вручную с электроприхваткой

01

т

0,15

ЕНиР,§Е5-1-18,

табл.1,п.1а, п.2а

37,1

-

27-83

-

5,57

-

4-17

-

-

-

4. Электродуговая сварка опор с закладными деталями фундамента

01

10 м

3,5

ЕНиР,§Е22~1-1,

п.1в, п.2в

3,2

-

2-24

-

11,2

-

7-84

-

-

.-

5. Укрупнительная сборка секции

01

шт.

20

ЕНиР,§Е5-1-4, табл.2,п.1к,п.2к

0,2

0,04

0-16,8

0-04,6

45,48

8,96

38-38

9-69

8,96

9-69

т

68

п.3к, п.4к, ВЧ-1 (к=1,1)

0,61

0,12

0-51,5

0-12,9

6. Монтаж секций

01

шт.

20

ЕНиР,§Е5-1-6,

табл.2,п.1и, п.2и

8,36

1,21

7-10,6

1-28,7

232,48

33,04

97-47

35-26

33,04

35-26

т

68

п.3и, п.4и, ВЧ-1 (к=1,1)

0,96

0,13

0-81,4

0-14

7. Постановка винтов и болтов при сборке и монтаже с земли

01

100шт.

4,06

ЕНиР,§Е5-1-19, п.1; ПР-3 (к=0,7)

8,05

-

6-00

-

32,68

-

24-36

-

-

-.

7а. То же, с подмостей

01

100шт.

2,2

ЕНиР,§Е5-1-19, п.I

11,5

-

8-57

-

25,3

-

18-85

-

-

-

8. Перестановка средств подмащивания

01

шт.

130

ЕНиР,§Е5-1-2, п.9а,б. ПР-1 (к=1,2)

0,51

-

0-35,7

-

66,3

-

46-41

-

-

-

9. Укладка минераловатной плиты при теплоизоляции насухо в стыках стеновых панелей

01

м2

392

ЕНиР,§Е11-41, п.1а, ПР-1 (к=0,6)

0,08

-

0-20,5

-

31,36

-

80-36

-

-

-

10. То же, в стыках по кровельным панелям

01

м2

168.

ЕНиР,§ЕП-41, п.2а, ПР-1 (к-0,6)

0,06

-

0-15,4

-

10,08

-

25-87

-

-

-

11. Установка нащельников

01

10м

119,8

ЕНиР,§Е5-1-5, табл.2, п.3

1,5

-

1-12

-

179,7

-

134-18

-

-

-

12. Сверление отверстий под заклепки ручной эл.сверлильной машиной

01

100 отв.

70,7

ЕНиР,§Е5-1-20, табл.5, п.3

0,55

-

0-43,5

-

38,89

-

30-75

-

-

-

13. Установка заклепок

01

100 шт.

70,7-

ЕНиР,§Е5-1-20, табл.5, п.4

0,72

-

0-56,9

-

50,90

-

40-23

-

-

-

14. Монтаж панелей торцевых стен

01

1 панель

12

ТНиР,§1-7-65, п.2а,б

2,3

0,38

1-33

0-26,7

27,6

4,56

15-96

3-20

4,56

3-20

15. Установка болтов, ригеля ворот

01

т

0,08

ЕНиР,§Е5-1-18, табл.1,п.1б ВЧ-1 (к=1,1)

6,5

-

4-84

-

0,52

-

0-39

-

-

-

16. То же, притворов

01

т

0,05

ЕНиР,§Е5-1-18, табл.1, п.1ж

ВЧ-1 (к=1,1)

23,1

-

17-21

-

1,16

-

0-86 •

-

-

-

17. Сверление отверстий под самонарезающие винты эл.сверлильной машиной

01

100 отв.

1,3

ЕНиР,§Е5-1-20, табл.5, п.7

1,15

-

0-90,9

-

1,18

-

1-00

-

-

-

18. Установка козырька и сливов

01

10м

2,3

ЕНиР,§Е5-1-15, табл.2, п.12

0,88

-

0-65,6

-

2,02

-

1-51

-

-

-

19. Установка самонарезающих винтов

01

100шт.

1,3

ЕНиР,§Е5-1-20, табл.5, п.8

0,9

-

0-67,1

-

1,17

-

0-87

-

-

-

20. Монтаж полотна ворот

01

шт.

I

ЕНиР,§Е5-1-6, табл.2, п.16.п.2б,

0,33

0,11

0-26,4

0-11,6

1,24

0,41

0-99

0-44

0,41

0-44

т

0,83

п.3б, п.4б, ВЧ-1 (к-1,1)

1,1

0,36

0-88

0-38,5

Итого:

 

 

 

 

 

 

 

 

772,79

50,79

675-52

52-63

50,79

52-63

 


5. ГРАФИК ПРОИЗВОДСТВА РАБОТ

Таблица 5

 

 

6. МАТЕРИАЛЬНО-ТЕХНИЧЕСКИЕ РЕСУРСЫ

Потребность в инструменте, инвентаре и приспособлениях приведена в табл.6.

Таблица 6

Наименование

Марка, техническая характеристика, ГОСТ, номер чертежа

Кол-во

Назначение

Трансформатор сварочный

ТСН-300. Изготовитель Кокандский машиностроительный завод

1

Сварочные работы

Строп четырехветвевой

4СК1-4.0.7000, ГОСТ 25573-82*

I

Укрупнительная сборка, монтаж секций

Строп одноветвевой

1СК-0.4.2000 ГОСТ 25573-82*

I

Монтаж панелей, торцевых стен

Строп одноветвевой

1СК-0.4.2300 ГОСТ 25573-82*

I

 

Столик монтажный

Проект 3241.07.000, ЦНИИОМТП

2

Средства подмащивания при монтаже секций

Телескопическая лестница

Проект 83-251-083/2, Челябинский тракторный завод

3

Средства подмащивания при монтаже секций и установке нащельников

Нивелир в комплекте

НТ, ГОСТ 10528-76*

I

Контроль качества выполнения работ

Теодолит в комплекте

Т-15, ГОСТ 10529-86*

I

То же

Ящик для инструмента

ЯМД, ТУ 36-1037-75

4

Хранение инструмента

Машина ручная сверлильная электрическая

ИЭ-1035. Изготовитель-"Электроинструмент", г. Ростов-на-Дону

5

Сверление отверстий под самонарезающие винты и заклепки

Катальный ход

Швеллер № 12, L=3000м

8

Перемещение подмостей

Направляющие

Швеллер № 12, L=5000 м

*4

Укрупнительная сборка

Набор гаечных ключей

ГОСТ 2841-80*Е

4

Укрупнительная сборка, монтаж конструкций

Рулетка

РС-20, ГОСТ 7502-80*

2

Контроль качества работ

Метр складной металлический

206 УССР 49-77, № 2

 

То же

Отвес

ОТ-400, ГОСТ 7948-80

2

-"-

Лом монтажный

ЛМЛ или ЛМВ, ГОСТ 1405-83

4

Укрупнительная сборка, монтаж конструкций

Струбцина

Проект 3241.36.000, ЦНИИОМТП

2

Монтаж панелей торцевых стен

Струбцина

ТУ 2-17-321-82

4

Фиксация прокладок под страховочный фал

Кувалда

ГОСТ 11402-75*

2

Подгибание деталей крепления монтажных петель

Молоток слесарный

А-5, Г0СТ 2310-77*Е

2

Установка деревянных брусьев

Канат пеньковый

d=16 мм. L=20,0 м, ГОСТ 483-75*

 

Монтаж секций

Полуавтоматический замок

Проект 3.2.29.700-100-00 ВНИПИ Промстальконструкция"

4

То же

Скоба такелажная

Типоразмер 1.7

2

Крепление страховочного фала

Респиратор

ШБ-1 "Лепесток", ГОСТ 12.4.028-76*

6

Теплоизоляционные работы

Пистолет ручной односторонней клепки

Проект 4610-00-00, Ногинский опытный завод монтажных приспособлений

5

Установка заклепок

Каска пластмассовая для строителей

ГОСТ 12.4.087-84

12

Индивидуальная безопасность'

Ловитель индивидуальный

Проект 392-80, Главэнергоремонт Минэнерго СССР

2

То же

Фал страховочный

Стальной канат 3-Г-Т-ОЖ-Н-1370.

ГОСТ 2688-80*, L=14500 мм

1

-"-

Пояс предохранительный

ГОСТ 12.4.089-80

2

-"-

Потребность в материалах, не учтенных в комплектовочной ведомости проекта, приводится в табл.7.

Таблица 7

Наименование материала, полуфабриката, конструкции (марка, ГОСТ)

Вариант (фасет-код)

Исходные данные

Потребность в материале, кг

Единица измерения

Объем работ в нормативных единицах

Принятая норма расхода материала, кг

Электроды Э-42

-

0,15

17

2,55

Лак ХСД для антикоррозийной защиты

-

2

поверхности

0,35

0,1

0,04

7. ТЕХНИКА БЕЗОПАСНОСТИ

При монтаже зданий комплектной поставки все виды работ необходимо выполнять с совладением требований соответствующих разделов СНиП III-4-80*;

Рабочие, входящие в состав бригады, должны быть до начала работ проинструктированы в правильных приемах выполнения операций и правилах техники безопасности по каждому виду работ.

Эксплуатацию машин, оборудования, механизмов следует осуществлять в соответствии с инструкциями по безопасности.

Все машины, механизмы и оборудование должны быть в исправном состоянии.

Лицам, работающим с электрифицированным инструментом и оборудованием, категорически запрещается работать без индивидуальных средств защиты (диэлектрических перчаток, калош). При применении ручных машин надлежит соблюдать правила 'безопасной эксплуатации, предусмотренные ГОСТ 12.1.013-78 и ГОСТ 12.2.010-75*.

В соответствии с действующими нормами такелажные приспособления перед их использованием испытывает двойной нагрузкой.

Складирование и строповку. на листах 3, 5, 9.

Производство электросварочных работ во время дождя или снегопада при отсутствии навеса над электросварочным оборудованием и рабочим местом электросварщика не допускается. Очистку подлежащих монтажу элементов конструкций от грязи и наледи следует производить до их подъема.

Перед подъемом надо проверить надежность строповки груза.

Работы по перемещению и установке конструкций ввиду большой парусности следует прекращать при скорости ветра свыше 10 м/с.

При укрупнительной сборке и производстве монтажных работ все технологические операции выполняют под руководством монтажника конструкций 6 разряда, обеспечивающего сигнальную связь с машинистом крана.

При перемещении конструкций расстояние между ними и выступающими частями других конструкций должно быть не менее I м - по горизонтали и 0,5 м - по вертикали.

Запрещается перемещать конструкции над подмостями, телескопической лестницей, если на них находятся люди.

Монтажники конструкций, выполняющие работы на кровле, обязаны пристегнуть предохранительный пояс к ловителю, которым оснащен страховочный фал. Узел крепления фала показан на листе 12. Крепление фала и подъем на кровлю осуществляется с телескопических лестниц.

Рабочие, устанавливающие теплоизоляционные пакеты из минераловатной плиты, должны пользоваться респираторами и очками.

8. ТЕХНИКО-ЭК0НОМИЧЕСКИЕ ПОКАЗАТЕЛИ НА ОДНО ЗДАНИЕ

Нормативные затраты труда рабочих, чел.-ч .                                      772,79

Нормативные затраты машинного времени, маш.-ч;                           50,79

Заработная плата рабочих-монтажников, р.-к.                                     675-52

Заработная плата машинистов, р.-к.                                                      52-63

Продолжительность выполнения работ, смен                                      8,4

Выработка на одного рабочего в смену, т (металлоконструкций)       0,79

Условные затраты на механизацию, р.-к.                                              494-95

Сумма изменяемых затрат, р.-к.                                                              1170-47

9. ФАСЕТНЫЙ КЛАССИФИКАТОР ФАКТОРОВ

ФАСЕТ 01

Стоимость 1 маш.-ч работы монтажного крана, руб.

Наименование фактора

Обоснование

Код

Значение фактора

Кран пневмоколесный грузоподъемностью до 16 т

СНиП IV-3-84,

Приложение

1

6-65

Кран автомобильный грузоподъемностью до 16 т

"Сб. сметных цен эксплуатации строительных машин"

2

4-63

ФАСЕТ 02

Стоимость 1 маш.-ч работы монтажных механизмов, руб.

Наименование фактора

Обоснование

Код

Значение фактора

Подмости облегченные

СНиП IV-3-84, Приложение

1

1-49

Автоподъемник АП-17

"Сб. сметных цен эксплуатации строительных машин"

2

4-45

Примечание. Рамкой в таблицах обведены значения факторов, на которые рассчитаны показатели в данной технологической карте.

Содержание

 

 




ГОСТЫ, СТРОИТЕЛЬНЫЕ и ТЕХНИЧЕСКИЕ НОРМАТИВЫ.
Некоммерческая онлайн система, содержащая все Российские Госты, национальные Стандарты и нормативы.
В Системе содержится более 150000 файлов нормативно-технической документации, действующей на территории РФ.
Система предназначена для широкого круга инженерно-технических специалистов.

Рейтинг@Mail.ru Яндекс цитирования

Copyright © www.gostrf.com, 2008 - 2026