Крупнейшая бесплатная информационно-справочная система онлайн доступа к полному собранию технических нормативно-правовых актов РФ. Огромная база технических нормативов (более 150 тысяч документов) и полное собрание национальных стандартов, аутентичное официальной базе Госстандарта. GOSTRF.com - это более 1 Терабайта бесплатной технической информации для всех пользователей интернета. Все электронные копии представленных здесь документов могут распространяться без каких-либо ограничений. Поощряется распространение информации с этого сайта на любых других ресурсах. Каждый человек имеет право на неограниченный доступ к этим документам! Каждый человек имеет право на знание требований, изложенных в данных нормативно-правовых актах!

  


 

Распоряжение ОАО "РЖД" от 27 декабря 2005 г. N 2266р

Об утверждении Местных технических условий размещения и крепления среднетоннажных контейнеров, перевозимых ОАО "РЖД" на универсальных платформах

В целях более полного и рационального использования платформ и в соответствии с пунктом 1.2 главы I Технических условий размещения и крепления грузов в вагонах и контейнерах, утвержденных МПС России 27 мая 2003 г. N ЦМ-943:

1. Утвердить и ввести в действие 30 декабря 2005 г. прилагаемые Местные технические условия размещения и крепления среднетоннажных контейнеров, перевозимых ОАО "РЖД" на универсальных платформах.

2. Начальникам железных дорог - филиалов ОАО "РЖД" обеспечить доведение Местных технических условий, утвержденных настоящим распоряжением, до сведения причастных работников железных дорог, грузоотправителей и грузополучателей.

 

Вице-президент ОАО "РЖД"                              С.В. Козырев

Местные технические условия размещения и крепления среднетоннажных контейнеров, перевозимых ОАО "РЖД" на универсальных платформах

1. Настоящие технические условия разработаны на основании экспериментальной проверки на соударение универсальных платформ, загруженных контейнерами, и определяют способы размещения и крепления среднетоннажных контейнеров на универсальных платформах.

2. Среднетоннажные контейнеры размещаются на универсальных платформах по всей погрузочной длине платформы.

 

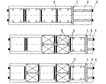
"Принципиальные схемы размещения и крепления среднетоннажных контейнеров на универсальной платформе"
1– упорный брусок; 2 – распорный брусок; 3 – увязка; 4 – короткая стойка

3. Размещать среднетоннажные контейнеры различных типоразмеров на универсальных платформах при неполном использовании погрузочной длины платформы разрешается при соблюдении следующих условий:

а) платформа должна иметь исправные продольные и торцовые борта и деревянный настил пола;

б) контейнеры должны быть размещены одной группой вплотную друг к другу и дверями друг к другу;

в) в торцах группы контейнеров должны быть размещены груженые контейнеры типоразмеров УУК-5, УУК-(6), УУКП-5 и УУКП-5(6), расположенные длиной вдоль платформы;

г) крепление группы контейнеров в продольном направлении при наличии зазора между торцовым бортом и контейнерами должно производиться при помощи упорного бруска сечением не менее 100 ´ 100 мм, длиной 2750 мм и двух распорных брусков такого же сечения. Упорный брусок устанавливают вплотную к контейнеру и прикрепляют к полу 8 гвоздями диаметром 6 мм и длиной, превышающей высоту бруска не менее чем на 50 мм.

Распорные бруски устанавливают в распор между упорным бруском и торцовым бортом напротив стоечных скоб и прикрепляют к полу гвоздями указанного размера (по 4 гвоздя на каждый брусок);

д) крайние торцовые контейнеры группы должны быть увязаны за грузоподъемные устройства с примыкающими к ним контейнерами двумя увязками из проволоки диаметром не менее 4 мм в 2 нити. Если к крайним контейнерам примыкают контейнеры типоразмеров УУК-5У, УУКП-3(5), УУК-3(5) и УУК-3, размещенные двумя рядами по ширине, то они также должны быть увязаны между собой аналогичными увязками;

е) торцовые борта универсальных платформ при погрузке груженых контейнеров дополнительно закрепляют короткими деревянными стойками в соответствии с требованиями главы I Технических условий размещения и крепления грузов в вагонах и контейнерах N ЦМ-943.

 

 




ГОСТЫ, СТРОИТЕЛЬНЫЕ и ТЕХНИЧЕСКИЕ НОРМАТИВЫ.
Некоммерческая онлайн система, содержащая все Российские Госты, национальные Стандарты и нормативы.
В Системе содержится более 150000 файлов нормативно-технической документации, действующей на территории РФ.
Система предназначена для широкого круга инженерно-технических специалистов.

Рейтинг@Mail.ru Яндекс цитирования

Copyright © www.gostrf.com, 2008 - 2026