Крупнейшая бесплатная информационно-справочная система онлайн доступа к полному собранию технических нормативно-правовых актов РФ. Огромная база технических нормативов (более 150 тысяч документов) и полное собрание национальных стандартов, аутентичное официальной базе Госстандарта. GOSTRF.com - это более 1 Терабайта бесплатной технической информации для всех пользователей интернета. Все электронные копии представленных здесь документов могут распространяться без каких-либо ограничений. Поощряется распространение информации с этого сайта на любых других ресурсах. Каждый человек имеет право на неограниченный доступ к этим документам! Каждый человек имеет право на знание требований, изложенных в данных нормативно-правовых актах!

  


 

ГОСТ 6629-88

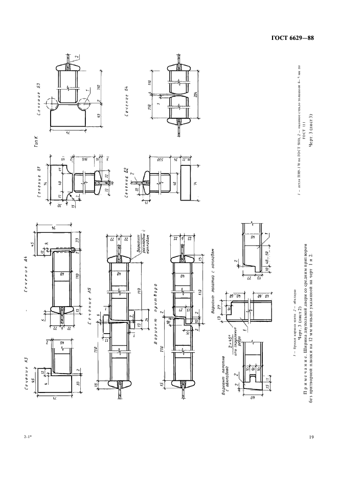
Двери деревянные внутренние для жилых и общественных зданий. Типы и конструкция

Обозначение:ГОСТ 6629-88
Текущий статус документа: действующий
Название документа рус.:Двери деревянные внутренние для жилых и общественных зданий. Типы и конструкция
Название документа англ.:Wooden inner doors for dwellings and public buildings. Types and structure
Дата актуализации текста:01.12.2013
Дата издания:01.07.2000
Дата введения:01.01.1989
Дата последнего изменения:22.05.2013
Переиздание:переиздание
Область применения:Настоящий стандарт распространяется на деревянные внутренние двери для жилых и общественных зданий, а также для административных и вспомогательных зданий и помещений предприятий различных отраслей народного хозяйства.
Стандарт не распространяется на двери специального назначения (в т.ч. противопожарные и звукоизоляционные) и двери из древесины ценных пород
ГОСТ 6629-88ГОСТ 6629-88ГОСТ 6629-88ГОСТ 6629-88ГОСТ 6629-88ГОСТ 6629-88ГОСТ 6629-88ГОСТ 6629-88ГОСТ 6629-88ГОСТ 6629-88ГОСТ 6629-88ГОСТ 6629-88
 




ГОСТЫ, СТРОИТЕЛЬНЫЕ и ТЕХНИЧЕСКИЕ НОРМАТИВЫ.
Некоммерческая онлайн система, содержащая все Российские Госты, национальные Стандарты и нормативы.
В Системе содержится более 150000 файлов нормативно-технической документации, действующей на территории РФ.
Система предназначена для широкого круга инженерно-технических специалистов.

Рейтинг@Mail.ru Яндекс цитирования

Copyright © www.gostrf.com, 2008 - 2026