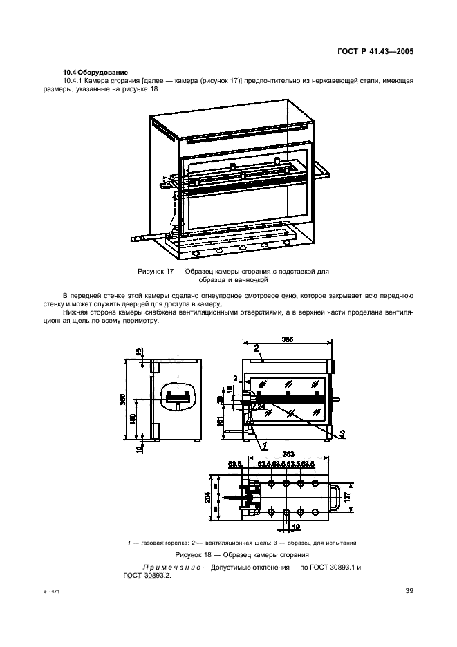
Крупнейшая бесплатная информационно-справочная система онлайн доступа к полному собранию технических нормативно-правовых актов РФ. Огромная база технических нормативов (более 150 тысяч документов) и полное собрание национальных стандартов, аутентичное официальной базе Госстандарта. GOSTRF.com - это более 1 Терабайта бесплатной технической информации для всех пользователей интернета. Все электронные копии представленных здесь документов могут распространяться без каких-либо ограничений. Поощряется распространение информации с этого сайта на любых других ресурсах. Каждый человек имеет право на неограниченный доступ к этим документам! Каждый человек имеет право на знание требований, изложенных в данных нормативно-правовых актах!

  


 

ГОСТ Р 41.43-2005

Единообразные предписания, касающиеся безопасных материалов для остекления и их установки на транспортных средствах

Обозначение:ГОСТ Р 41.43-2005
Текущий статус документа: действующий
Название документа рус.:Единообразные предписания, касающиеся безопасных материалов для остекления и их установки на транспортных средствах
Название документа англ.:Uniform provisions concerning the safety glazing materials and their installation on vehicles
Дата актуализации текста:01.12.2013
Дата издания:06.04.2006
Дата введения:30.06.2006
Дата последнего изменения:22.05.2013
Область применения:Настоящий стандарт распространяется на безопасные материалы для остекления, предназначенные для установки в качестве ветровых или других стекол и перегородок на механических транспортных средствах и их прицепах, и на соответствующие приспособления, за исключением материалов для остекления устройств освещения и световой сигнализации и комбинации приборов, а также специальных пуленепробиваемых материалов.
Стандарт не распространяется на двойные окна
ГОСТ Р 41.43-2005ГОСТ Р 41.43-2005ГОСТ Р 41.43-2005ГОСТ Р 41.43-2005ГОСТ Р 41.43-2005ГОСТ Р 41.43-2005ГОСТ Р 41.43-2005ГОСТ Р 41.43-2005ГОСТ Р 41.43-2005ГОСТ Р 41.43-2005ГОСТ Р 41.43-2005ГОСТ Р 41.43-2005ГОСТ Р 41.43-2005ГОСТ Р 41.43-2005ГОСТ Р 41.43-2005ГОСТ Р 41.43-2005ГОСТ Р 41.43-2005ГОСТ Р 41.43-2005ГОСТ Р 41.43-2005ГОСТ Р 41.43-2005ГОСТ Р 41.43-2005ГОСТ Р 41.43-2005ГОСТ Р 41.43-2005ГОСТ Р 41.43-2005ГОСТ Р 41.43-2005ГОСТ Р 41.43-2005ГОСТ Р 41.43-2005ГОСТ Р 41.43-2005ГОСТ Р 41.43-2005ГОСТ Р 41.43-2005ГОСТ Р 41.43-2005ГОСТ Р 41.43-2005ГОСТ Р 41.43-2005ГОСТ Р 41.43-2005ГОСТ Р 41.43-2005ГОСТ Р 41.43-2005ГОСТ Р 41.43-2005ГОСТ Р 41.43-2005ГОСТ Р 41.43-2005ГОСТ Р 41.43-2005ГОСТ Р 41.43-2005ГОСТ Р 41.43-2005ГОСТ Р 41.43-2005ГОСТ Р 41.43-2005ГОСТ Р 41.43-2005ГОСТ Р 41.43-2005ГОСТ Р 41.43-2005ГОСТ Р 41.43-2005ГОСТ Р 41.43-2005ГОСТ Р 41.43-2005ГОСТ Р 41.43-2005ГОСТ Р 41.43-2005ГОСТ Р 41.43-2005ГОСТ Р 41.43-2005ГОСТ Р 41.43-2005ГОСТ Р 41.43-2005ГОСТ Р 41.43-2005ГОСТ Р 41.43-2005ГОСТ Р 41.43-2005ГОСТ Р 41.43-2005ГОСТ Р 41.43-2005ГОСТ Р 41.43-2005ГОСТ Р 41.43-2005ГОСТ Р 41.43-2005ГОСТ Р 41.43-2005ГОСТ Р 41.43-2005ГОСТ Р 41.43-2005ГОСТ Р 41.43-2005ГОСТ Р 41.43-2005ГОСТ Р 41.43-2005ГОСТ Р 41.43-2005ГОСТ Р 41.43-2005ГОСТ Р 41.43-2005ГОСТ Р 41.43-2005ГОСТ Р 41.43-2005ГОСТ Р 41.43-2005ГОСТ Р 41.43-2005ГОСТ Р 41.43-2005ГОСТ Р 41.43-2005ГОСТ Р 41.43-2005ГОСТ Р 41.43-2005ГОСТ Р 41.43-2005ГОСТ Р 41.43-2005ГОСТ Р 41.43-2005ГОСТ Р 41.43-2005ГОСТ Р 41.43-2005ГОСТ Р 41.43-2005ГОСТ Р 41.43-2005ГОСТ Р 41.43-2005ГОСТ Р 41.43-2005ГОСТ Р 41.43-2005ГОСТ Р 41.43-2005ГОСТ Р 41.43-2005ГОСТ Р 41.43-2005ГОСТ Р 41.43-2005ГОСТ Р 41.43-2005ГОСТ Р 41.43-2005ГОСТ Р 41.43-2005
 




ГОСТЫ, СТРОИТЕЛЬНЫЕ и ТЕХНИЧЕСКИЕ НОРМАТИВЫ.
Некоммерческая онлайн система, содержащая все Российские Госты, национальные Стандарты и нормативы.
В Системе содержится более 150000 файлов нормативно-технической документации, действующей на территории РФ.
Система предназначена для широкого круга инженерно-технических специалистов.

Рейтинг@Mail.ru Яндекс цитирования

Copyright © www.gostrf.com, 2008 - 2026