Крупнейшая бесплатная информационно-справочная система онлайн доступа к полному собранию технических нормативно-правовых актов РФ. Огромная база технических нормативов (более 150 тысяч документов) и полное собрание национальных стандартов, аутентичное официальной базе Госстандарта. GOSTRF.com - это более 1 Терабайта бесплатной технической информации для всех пользователей интернета. Все электронные копии представленных здесь документов могут распространяться без каких-либо ограничений. Поощряется распространение информации с этого сайта на любых других ресурсах. Каждый человек имеет право на неограниченный доступ к этим документам! Каждый человек имеет право на знание требований, изложенных в данных нормативно-правовых актах!

  


 

ГОСТ 19535-74

Соединения фланцевые для гидравлических и смазочных систем. Технические условия

Обозначение:ГОСТ 19535-74
Текущий статус документа: действующий
Название документа рус.:Соединения фланцевые для гидравлических и смазочных систем. Технические условия
Название документа англ.:Flange joints for hydraulic and lubricating systems. Specifications
Дата актуализации текста:01.12.2013
Дата издания:01.12.1984
Дата введения:01.01.1975
Дата последнего изменения:22.05.2013
Переиздание:переиздание с изм. 1
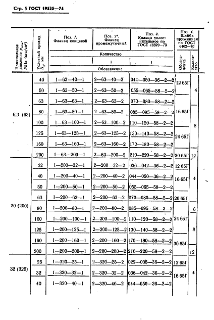
Область применения:Настоящий стандарт распространяется на соединения с квадратными и круглыми фланцами с уплотнительными резиновыми кольцами круглого сечения, предназначенные для трубопроводов гидравлических и смазочных систем с Dу 25-200 мм, работающих на минеральных маслах, воде и водно-масляных эмульсиях при номинальном давлении до 32 МПа (320 кгс/см в кв.) и температурах от минус 40 до плюс 100 град. С, изготовляемые для нужд народного хозяйства и экспорта
Список изменений:№1 от 01.07.1979 (рег. 10.04.1979) «Срок действия продлен»
№2 от 01.01.1985 (рег. 22.06.1984) «Срок действия продлен»
ГОСТ 19535-74ГОСТ 19535-74ГОСТ 19535-74ГОСТ 19535-74ГОСТ 19535-74ГОСТ 19535-74ГОСТ 19535-74ГОСТ 19535-74ГОСТ 19535-74ГОСТ 19535-74ГОСТ 19535-74ГОСТ 19535-74ГОСТ 19535-74ГОСТ 19535-74ГОСТ 19535-74ГОСТ 19535-74
 




ГОСТЫ, СТРОИТЕЛЬНЫЕ и ТЕХНИЧЕСКИЕ НОРМАТИВЫ.
Некоммерческая онлайн система, содержащая все Российские Госты, национальные Стандарты и нормативы.
В Системе содержится более 150000 файлов нормативно-технической документации, действующей на территории РФ.
Система предназначена для широкого круга инженерно-технических специалистов.

Рейтинг@Mail.ru Яндекс цитирования

Copyright © www.gostrf.com, 2008 - 2026