Крупнейшая бесплатная информационно-справочная система онлайн доступа к полному собранию технических нормативно-правовых актов РФ. Огромная база технических нормативов (более 150 тысяч документов) и полное собрание национальных стандартов, аутентичное официальной базе Госстандарта. GOSTRF.com - это более 1 Терабайта бесплатной технической информации для всех пользователей интернета. Все электронные копии представленных здесь документов могут распространяться без каких-либо ограничений. Поощряется распространение информации с этого сайта на любых других ресурсах. Каждый человек имеет право на неограниченный доступ к этим документам! Каждый человек имеет право на знание требований, изложенных в данных нормативно-правовых актах!

  


 

ГОСТ Р 53256-2009

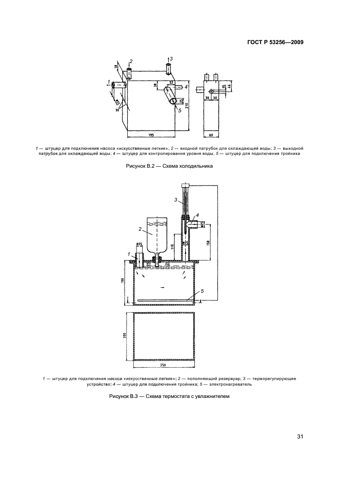
Техника пожарная. Аппараты дыхательные со сжатым кислородом с замкнутым циклом дыхания. Общие технические требования. Методы испытаний

Обозначение:ГОСТ Р 53256-2009
Текущий статус документа: действующий
Название документа рус.:Техника пожарная. Аппараты дыхательные со сжатым кислородом с замкнутым циклом дыхания. Общие технические требования. Методы испытаний
Название документа англ.:Fire equipment. Self-contained closed-circuit breathing apparatus with compressed oxygen. General technical requirements. Test methods
Дата актуализации текста:01.12.2013
Дата издания:20.04.2009
Дата введения:30.04.2009
Дата последнего изменения:20.06.2013
Область применения:Настоящий стандарт распространяется на аппараты дыхательные со сжатым кислородом с замкнутым циклом дыхания для защиты органов дыхания и зрения пожарных от вредного воздействия непригодной для дыхания токсичной и задымленной газовой среды при тушении пожаров в зданиях, сооружениях и на производственных объектах различного назначения.
Настоящий стандарт устанавливает общие технические требования и методы испытаний
ГОСТ Р 53256-2009ГОСТ Р 53256-2009ГОСТ Р 53256-2009ГОСТ Р 53256-2009ГОСТ Р 53256-2009ГОСТ Р 53256-2009ГОСТ Р 53256-2009ГОСТ Р 53256-2009ГОСТ Р 53256-2009ГОСТ Р 53256-2009ГОСТ Р 53256-2009ГОСТ Р 53256-2009ГОСТ Р 53256-2009ГОСТ Р 53256-2009ГОСТ Р 53256-2009ГОСТ Р 53256-2009ГОСТ Р 53256-2009ГОСТ Р 53256-2009ГОСТ Р 53256-2009ГОСТ Р 53256-2009ГОСТ Р 53256-2009ГОСТ Р 53256-2009ГОСТ Р 53256-2009ГОСТ Р 53256-2009ГОСТ Р 53256-2009ГОСТ Р 53256-2009ГОСТ Р 53256-2009ГОСТ Р 53256-2009ГОСТ Р 53256-2009ГОСТ Р 53256-2009ГОСТ Р 53256-2009ГОСТ Р 53256-2009ГОСТ Р 53256-2009ГОСТ Р 53256-2009ГОСТ Р 53256-2009ГОСТ Р 53256-2009ГОСТ Р 53256-2009ГОСТ Р 53256-2009ГОСТ Р 53256-2009ГОСТ Р 53256-2009
 




ГОСТЫ, СТРОИТЕЛЬНЫЕ и ТЕХНИЧЕСКИЕ НОРМАТИВЫ.
Некоммерческая онлайн система, содержащая все Российские Госты, национальные Стандарты и нормативы.
В Системе содержится более 150000 файлов нормативно-технической документации, действующей на территории РФ.
Система предназначена для широкого круга инженерно-технических специалистов.

Рейтинг@Mail.ru Яндекс цитирования

Copyright © www.gostrf.com, 2008 - 2026