|
|
|
ПРАВИТЕЛЬСТВО МОСКВЫ РЕКОМЕНДАЦИИ Выпуск 2 Профилирующие учебно-производственные помещения 2008 ПРЕДИСЛОВИЕ 1. Разработаны ОАО «Институт общественных зданий» (канд. арх. Рождественский Д.А. - научный руководитель, канд. арх. Гарнец A.M., инж, Сигачева Л.В., при участии канд. арх. Сафронова Е.В., инж. Кротюка В.Ф., арх. Одинцовой О.Л.) с участием Департамента образования г. Москвы (канд. экон. наук Потапов А.С., канд. пед. наук Александров А.Е.). 2. Подготовлены к утверждению и изданию Управлением городского заказа разработки документации по территориальному планированию и планировке территории Москомархитектуры. 3. Согласованы с Департаментом образования г.Москвы, Москомархитектурой. 4. Утверждены Приказом Москомархитектуры № 67 от 25.07.2008 г. ВВЕДЕНИЕ Рекомендации по проектированию учреждений начального и среднего профессионального образования состоят из двух выпусков: Выпуск 1. Общие требования. Общие и общеобразовательные помещения. Выпуск 2. Профилирующие учебно-производственные помещения. Настоящий, второй выпуск Рекомендаций содержит специальные требования к проектированию учреждений начального и среднего профессионального образования (колледжей), зависящие от их отраслевой принадлежности. В нем рассматриваются вопросы проектирования только профилирующих учебных помещений: специализированных учебных лабораторий, учебно-производственных мастерских, сопутствующих им вспомогательных, складских и санитарно-бытовых помещений. Особая новизна настоящего выпуска Рекомендаций состоит в том, что официальным рекомендательным документом вопросы проектирования профилирующих помещений учреждений профессионального образования в нем рассматриваются впервые. В настоящем выпуске также впервые учитывается современная потребность колледжей в использовании учебно-производственных мастерских во внеучебное время в производственно-коммерческих целях. Такая возможность, в частности, обеспечивается: - рекомендуемыми расчетными показателями площади учебно-производственных мастерских, приближенными к реальным производственным помещениям; - рекомендуемым составом оборудования, мастерских обеспечивающим полный технологический цикл производства продукции; - специальными помещениями при мастерских, создающими условия для организационно-финансового сопровождения их хозрасчетной деятельности. Настоящие Рекомендации также предусматривают возможность обучения в колледжах по доступным специальностям студентов-инвалидов с недостатками опорно-двигательного аппарата. Настоящий выпуск Рекомендаций ориентирован на максимально высокий уровень компьютеризации учебно-производственного процесса московских колледжей. Он не содержит требований к размещению участку, общим функциональным группам помещений, объемно-планировочным решениям, инженерному оборудованию и внутренней среде зданий учреждений начального и среднего профессионального образования, которые были изложены в предыдущем, первом Выпуске настоящих Рекомендаций * Представленные в настоящем выпуске Рекомендаций рисунки содержат примерные схемы планировки помещений и взаимосвязи их основных планировочных зон. При реальном проектировании в соответствии с конструктивно-планировочным решением конкретного вновь строящегося или реконструируемого здания колледжа, размеры помещений, их пропорции и вместимость могут быть изменены. * Рекомендации по проектированию учреждений начального и среднего профессионального образования. Выпуск 1. Общие требования. Общие и общеобразовательные помещения /Д.А. Рождественский, Л.В. Сигачева, А.Е. Александров и др.// Правительство Москвы, Москомархитектура. - М., 2006-60с Содержание 1. ОБЛАСТЬ ПРИМЕНЕНИЯ1.1. Рекомендации разработаны для г. Москвы и распространяются на проектирование вновь строящихся и реконструируемых зданий учреждений начального и среднего профессионального образования, независимо от их организационно-правовых форм и форм собственности. 1.2. Рекомендации устанавливают основные требования к размещению в структуре здания, планировке и технологическому оснащению основных учебно-производственных и сопутствующих им вспомогательных помещений, колледжей, всех отраслей московского городского хозяйства. 2. НОРМАТИВНЫЕ ССЫЛКИ2.1. В настоящих рекомендациях приведены ссылки на следующие документы: СНиП 31-03-2001 «Производственные здания». СанПиН 2.4.3.1186-03 «Санитарно эпидемиологические требования к организации учебно-производственного процесса в оборудованных учреждениях начального профессионального образования». СНиП 23-03-2003 «Защита от шума». СП 35-101-2001 «Проектирование зданий и сооружений с учетом доступности для маломобильных групп населения». СП 35-104-2001 «Здания и помещения с местами труда для инвалидов». СанПиН 2.2.2/2.4.1340-03 «Гигиенические требования к персональным электронно-вычислительным машинам и организации работы». СНиП 2.09.04-87* «Административные здания». 3. ОБЩАЯ ЧАСТЬ3.1. Состав профилирующих учебно-производственных помещений учреждений начального среднего профессионального образования зависит от расчетного контингента обучаемых (студентов), состава изучаемых специальностей, содержания учебных планов и программ и определяется расчетом по учебным планам при разработке Задания на проектирование, 3.2. Профилирующие учебно-производственные помещения учреждений начального и среднего профессионального образования подразделяются: - по видам осуществляемой в них деятельности; - по изучаемым дисциплинам. 3.3. По видам осуществляемой деятельности профилирующие учебно-производственные помещения подразделяются на: - специализированные лаборатории (общепрофессионального и специального циклов)*; - учебно-производственные мастерские; - производственно-вспомогательные помещения; - санитарно-бытовые помещения; - складские помещения. *В учреждениях начального и среднего профессионального образования также имеются лаборатории общеобразовательного цикла. 3.4. По изучаемым дисциплинам подразделяются только специализированные лаборатории и учебно-производственные мастерские. Соответствующая классификация этих помещений и потребность в них колледжей различной отраслевой принадлежности приведены в таблицах Приложений 1 и 2 к настоящему выпуску Рекомендаций. 3.5. В таблицах Приложений 1 и 2 приведены наиболее распространенные, в колледжах г. Москвы, массовые специализированные лаборатории и учебно-производственные мастерские, однако, в отдельных учебных учреждениях встречаются и другие единичные виды лабораторий и мастерских как, например: - лаборатории: театральной светотехники; звукооператорского мастерства; фотостудия и др.; - мастерские: народных промыслов, гостиничного сервиса, художественной росписи металла, изготовления кукол и др. Подобные лаборатории и мастерские в силу их нетипичности настоящими Рекомендациями не рассматриваются. 3.6. Для специализированных лабораторий и учебно-производственных мастерских предпочтительной является вместимость 12 мест. В отдельных случаях (ограниченные условия строительства реконструкция и т.п.) допускается вместимость лабораторий и мастерских - 25 мест. Отдельные мастерские и лаборатории (кузнечная, информационных технологий и др.) могут иметь вместимость 8 рабочих мест. 4. ФУНКЦИОНАЛЬНО-ПЛАНИРОВОЧНЫЕ ТРЕБОВАНИЯ К ПРОЕКТИРОВАНИЮ.4.1. При проектировании профилирующих учебно-производственных помещений учреждений начального и среднего профессионального образования (принятии объемно-планировочных и конструктивных решений, определении параметров внутренней среды, обеспечении условий эвакуации людей и расстановки оборудования) следует руководствоваться требованиями СНиП 31-03-2001 и СанПиН 2.4.3.1186-03. 4.2. Проектирование учебно-производственных мастерских и специализированных лабораторий следует осуществлять при соблюдении требований защиты от шума, определяемых СНиП 23-03-2003. 4.3. В структуре зданий учреждений начального и среднего профессионального образования, лаборатории общепрофессионального и специального циклов (специализированные лаборатории) рекомендуется размещать в едином блоке (зоне) с кабинетами и лабораториями общеобразовательного цикла, поблизости от помещений соответствующих кафедр. 4.4. Специализированные лаборатории, оснащенные тяжелым крупногабаритным оборудованием (металловедения, строительных материалов, материаловедения, сопротивления материалов, технологии машиностроения и др.) рекомендуется размещать в блоке с учебно-производственными мастерскими. 4.5.
При специализированных лабораториях следует предусматривать лаборантские
площадью 4.6. Учебно-производственные мастерские следует размещать в отдельном блоке (зоне) здания совместно с производственно-вспомогательными помещениями, складскими и санитарно-бытовыми помещениями со стороны учебного полигона (если таковой имеется). 4.7. При выборе размещения учебно-производственных мастерских на различных этажах зданий колледжей, следует руководствоваться техническими условиями на установку и эксплуатацию используемого в них оборудования, а также - требованиями СанПиН 2.4.3.1186-03. 4.8. В стесненных условиях функционально-планировочной организации колледжей токарная и фрезерная учебно-производственные мастерские могут быть объединены в единую механическую мастерскую. 4.9. Лаборатории с тяжелым оборудованием и учебно-производственные мастерские не следует размещать в подвалах и цокольных этажах зданий, а также - над учебными помещениями. 4.10. Рекомендуемое размещение профилирующих учебно-производственных помещений в общей системе помещений учреждений начального и среднего профессионального образования показано на Рисунке 1. 4.11. Основные эргономические требования проектирования специализированных лабораторий и учебно-производственных мастерских приведены на Рисунке 2 настоящего выпуска Рекомендаций. 4.12.
Расстояние между рядами столов в специализированных лабораториях рекомендуется
принимать не менее 4.13.
Расстояние между первым рядом столов и доской в специализированных лабораториях
и учебно-производственных мастерских рекомендуется принимать от 2,4 до 4.14. Минимальные расстояния между сборочными столами и верстаками специализированных лабораторий и учебно-производственных мастерских следует принимать по таблице Приложения 3 к настоящему выпуску Рекомендаций. 4.15. Минимальные расстояния между столами и от станков до стен помещений в учебно-производственных мастерских, следует принимать по Таблице Приложения 4 к настоящему выпуску Рекомендаций. 4.16. Условия размещения в специализированных лабораториях и учебно-производственных мастерских студентов-инвалидов должны соответствовать требованиям СП 35-101-2001 и СП 35-104-2001. 4.17. Проектирование специализированных лабораторий, оснащенных персональными электронно-вычислительными машинами (компьютерами), следует руководствоваться требованиями СанПиН 2.2.2/2.4.1340-03. 4.18. Помещения специализированных лабораторий рекомендуется разделять на функциональные зоны: - преподавателя; - теоретических занятий; - лабораторно-практических занятий; - зону хранения. 4.19. Зона преподавателя оборудуется меловой (магнитной маркерной, интерактивной) доской, имеет место для размещения наглядных материалов и пособий, оборудуется рабочим столом преподавателя, специальным демонстрационным столом, компьютером, проекционными устройствами, пультом дистанционного управления техническими средствами и зашториванием окон. Зона преподавателя должна иметь удобную связь с лаборантской. 4.20. Зона теоретических занятий должна включать рабочие столы студентов и некоторую свободную часть пола для удобной эвакуации. Расстановка столов, в зависимости от пропорций размера и вместимости лабораторий, может быть трехрядной, а при блокировке столов - двухрядной или однорядной. Столы размещаются перпендикулярно стене, имеющей оконные проемы. 4.21. Зона лабораторно-практических занятий предназначается для размещения учебных машин, механизмов, устройств и т.д. и работы с ними студентов. В зависимости от видов используемого оборудования, рабочие места студентов в этой зоне могут также оснащаться лабораторными столами и табуретами. 4.22. В зависимости от видов технологического оборудования и специфики лабораторных работ, зона лабораторно-практических занятий может подразделяться на подзоны тяжелого оборудования и легкого (особо точного) оборудования. 4.23. В целях шумозащиты, защиты от вибрации, изоляции термических процессов, подзону тяжелого оборудования рекомендуется отделять от других функциональных зон лабораторий шумозащитной перегородкой. 4.24. Зона хранения организуется на площади лаборантской. В этой зоне, как правило, размещаются пристенные стеллажи, шкафы, шкафы-перегородки, предназначенные для хранения демонстрационных материалов и пособий, химических веществ и препаратов, приборов и технических средств. 4.25. Примеры зонирования помещений специализированных лабораторий показаны на Рисунках 3 и 4 настоящего выпуска Рекомендаций, 4.26. Помещения учебно-производственных мастерских рекомендуется разделять на функциональные зоны: - преподавателя (мастера); - коллективного инструктажа; - учебно-производственную; - временного складирования. 4.27.
Зона преподавателя включает
рабочее место мастера со столом и стулом; демонстрационную тумбу высотой В учебно-производственных мастерских, работа в которых сопряжена с высоким уровнем шума (слесарной, слесарно-сборочной, токарной, фрезерной, столярной и т. д.), зону преподавателя (мастера) рекомендуется размещать за прозрачной звукозащитной перегородкой, которая должна достигать потолка помещения. 4.28. Зона коллективного инструктажа оборудуется скамейками или ученическими столами и стульями и размещается перед рабочим местом преподавателя (мастера). 4.29. Организация учебно-производственной зоны зависит от видов оборудования, особенностей производственного процесса, условий освещения и др. факторов, неодинаковых для мастерских, относящихся к различным дисциплинам. На площади учебно-производственной зоны может выделяться место для сборки узлов и деталей, оснащаемое электроталью (слесарная, столярная мастерские и др.). 4.30. Зона временного складирования предназначена для хранения инструментов, приспособлений и инвентаря. Она оснащается шкафами или стеллажами, имеет некоторую свободную площадь пола. 4.31. Примеры зонирования помещений учебно-производственных мастерских и планировки зон преподавателя и зоны коллективного инструктажа в учебно-производственных мастерских приведены на рис. 5, 6 и 7 настоящего выпуска Рекомендаций. 4.32. Площадь специализированных лабораторий следует принимать из расчета: -
не менее -
не менее 4.33. Площадь учебно-производственных мастерских следует принимать из расчета удельных показателей, приведенных в таблице Приложения 5 к настоящему выпуску Рекомендаций. 5. ПРИМЕРЫ ПЛАНИРОВКИ ОСНОВНЫХ ПРОФИЛИРУЮЩИХ УЧЕБНО-ПРОИЗВОДСТВЕННЫХ ПОМЕЩЕНИЙ5.1. В настоящем разделе приведены примеры планировки профилирующих учебно-производственных помещений, состав которых определен с учетом: - степени распространения лабораторий и учебно-производственных мастерских в колледжах г. Москвы (см. таблицы Приложений 1 и 2); - значимости для различных дисциплин вопросов техники безопасности обучения; - социально-экономической значимости различных профессий для системы городского хозяйства г. Москвы. 5.2. Для отдельных лабораторий и мастерских примерами их планировки предусмотрены места для студентов-инвалидов*, обучение которых возможно по перечню профессий и специальностей, приведенному в Приложении 6 к настоящему выпуску Рекомендаций. * Под студентами-инвалидами в настоящих Рекомендациях подразумеваются студенты с недостатками опорно-двигательного аппарата. Специализированные лаборатории 5.3. Лабораторные столы и универсальные стенды лабораторий физической, коллоидной и аналитической химии следует оснащать подводками электричества, горячей и холодной воды, бытового горючего газа, сжатого воздуха, азота, вакуума. Разводку названных коммуникаций рекомендуется осуществлять в зоне потолка (подвесного потолка) лабораторных помещений. 5.4. Электротехнические панели лабораторий электротехники и электроники должны иметь подводки переменного и постоянного тока, заземления. 5.5. В лабораториях основ автоматизации и контрольно-измерительных приборов, информационных технологий, электротехники и электроники следует устанавливать кондиционеры. 5.6.
Высота лабораторий, оснащенных крупногабаритным оборудованием, должна быть не
менее 5.7. Примеры планировки специализированных лабораторий учреждений начального и среднего профессионального образования приведены на рис. 8-21 настоящего выпуска Рекомендаций. Учебно-производственные мастерские 5.8. Учебно-производственные мастерские оснащаются учебно-производственным оборудованием с учетом обеспечения каждому обучаемому (студенту) самостоятельного рабочего места. 5.9. В учебно-производственных мастерских следует предусматривать шкафы для хранения спецодежды, размеры и количество которых определяются по СНиП 2.09.04-87*. 5.10. В учебно-производственных мастерских должны быть предусмотрены не менее 2-х умывальников с горячей и холодной водой. 5.11. Слесарные и столярные верстаки в учебно-производственных мастерских рекомендуется располагать перпендикулярно к стене, имеющей световые проемы. 5.12. Для уменьшения риска травм от случайно вылетевших из патрона деталей, токарные и фрезерные станки в учебно-производственных мастерских следует размещать под углом 30° к стене, со световыми проемами. 5.13. При одновременном боковом и верхнем освещении мастерских допускается свободное размещение в них столярных и слесарных верстаков. 5.14. Каждое рабочее место обучаемого (студента) в учебно-производственных мастерских должно иметь индивидуальное искусственное освещение. 5.15. Тяжелое металлорежущее оборудование, прессы, молоты и наковальни в учебно-производственных мастерских следует устанавливать на специальные вибропоглощающие подушки, не связанные с конструкциями пола и несущими конструкциями здания. 5.16.
В электрогазосварочных мастерских учебно-производственная зона оборудуется
электрогазосварочными кабинами высотой не менее При
электрогазосварочной мастерской следует предусматривать лабораторию для механических
испытаний и контроля качества сварных швов, площадью не менее 5.17. В учебно-производственных мастерских каменщиков необходимо предусматривать подвод и отвод технической воды. 5.18. Учебно-производственную авторемонтную мастерскую следует размещать на 1 этаже здания. Каждый ремонтный пост должен иметь отдельные ворота для въезда и выезда автомобиля. 5.19. Учебно-производственная поварская мастерская, в соответствии с назначением используемого в ней оборудования, подразделяется на зоны: теоретических занятий, производственную зону, зону сервировки и разделки, зону дегустации приготовленных блюд. Поварскую мастерскую рекомендуется размещать поблизости от обеденного зала столовой колледжа. 5.20. Отделочные мастерские (малярно-штукатурные) следует оборудовать кабинами, стенками и щитами для тренировочного нанесения штукатурки, шпаклевки и краски. В зоне мастерских, предназначенной для приготовления и нанесения красочных составов, необходимо предусматривать принудительную вентиляцию с выбросом воздуха из помещения наружу через маслоулавливающие фильтры. 5.21. В радиомонтажной и электрогазосварочной учебно-производственных мастерских рабочие места студентов оборудуются местными вытяжными устройствами. 5.22. Учебно-производственные мастерские плиточников оборудуются тренировочными кирпичными стенками различной конфигурации и кирпичными макетами арок и ворот. 5.23. Для учебно-производственных мастерских каменщиков, плиточников и маляров-штукатуров целесообразно предусматривать отдельный выход (выходы) на улицу в хозяйственную зону участка. 5.24. Полы в учебно-производственных мастерских следует предусматривать: в мастерской каменщиков и других мастерских с тяжелым оборудованием - бетонные; поварской мастерской - из керамической плитки; столярной - деревянные (досчатые или брусчатые); швейной - из линолеума. 5.25. Примеры планировки помещений учебно-производственных мастерских учреждений начального и среднего профессионального образования приведены на рис. 21-34 настоящего выпуска Рекомендаций. 5.26. Учебно-производственные участки учебных полигонов для защиты от неблагоприятных погодных воздействий целесообразно закрывать навесами или легкими сооружениями (ангарами), возводимыми из легких, эффективных строительных конструкций. Производственно-вспомогательные помещения 5.27. К производственно-вспомогательным относятся помещения, не используемые непосредственно в учебном процессе, но необходимые для обеспечения выпуска продукции учебно-производственными мастерскими, решения сопутствующих общехозяйственных и инженерно-технических задач. К ним относятся: - ремонтная мастерская; - заточная мастерская; - заготовительная мастерская; - отдел технического контроля; - комнаты мастеров; - помещения обслуживания хозрасчетной деятельности; - сушильные камеры; - компрессорные; - трансформаторные. 5.28. Состав и площади производственно-вспомогательных мастерских зависят от величины и оснащения учебно-производственных мастерских и определяется по нормам технологического проектирования предприятий соответствующих отраслей народного хозяйства. 5.29.
Площадь помещения отдела технического
контроля следует принимать из расчета 5.30.
Площадь комнаты (комнат) мастеров следует
принимать из расчета 5.31. Состав и площади помещений организационно-финансового обеспечения хозрасчетной деятельности учреждений начального и среднего профессионального образования следует принимать по таблице Приложения 10 к первому выпуску настоящих Рекомендаций (Общие требования. Общие и общеобразовательные помещения) как для помещений: - отдела маркетинга с информационно-аналитической группой; - кабинета бизнес-проектов; - кабинета программистов-бухгалтеров 5.32. Площадь сушильных камер, компрессорных и трансформаторных следует принимать по результатам технологического расчета с учетом условий установки и эксплуатации используемого в них оборудования. 5.33. Примеры планировки основных производственно-вспомогательных помещений приведены на рис. 40 настоящего выпуска Рекомендаций. Санитарно-бытовые помещения 5.34. К санитарно-бытовым относятся помещения гардеробных, душевых, умывальных, уборных. 5.35. Площадь гардеробных следует принимать из расчета на 1 рабочее место в учебно-производственных мастерских: -
-
Гардеробные могут предусматриваться общими для нескольких мастерских или отдельными для каждой. 5.36. Количество сантехприборов в умывальных и душевых помещениях следует определять из расчета: 1 умывальник на 30 и 1 душевая сетка на 15 рабочих мест в учебно-производственных мастерских. 5.37. Количество сантехприборов в уборных следует принимать из расчета: 1 унитаз на 30 работающих в мастерских женщин и один унитаз и один писсуар на 40 работающих в мастерских мужчин. 5.38. Площади санитарно-бытовых помещений следует принимать по СНиП 2.09.04-87*. 5.39. Примеры планировки санитарно-бытовых помещений приведены на Рис. 41 настоящего выпуска Рекомендаций. Складские помещения 5.40. К складским помещениям относятся: склад заготовок и материалов, склад готовой продукции, инструментальная кладовая. 5.41.
Площадь помещений склада заготовок и
материалов и склада готовой продукции следует принимать из расчета 5.42.
Площадь инструментальной кладовой следует
принимать из расчета 5.43. Примеры планировки складских помещений приведены на Рис. 42 настоящего выпуска Рекомендаций. Приложение 1
|
|||||||||||||||||||||||||||||||||||||||||||||||||||||||||||||||||||||||||||||||||||||||||||||||||||||||||||||||||||||||||||||||||||||||||||||||||||||||||||||||||||||||||||||||||||||||||||||||||||||||||||||||||||||||||||||||||||||||||||||||||||||||||||||||||||||||||||||||||||||||||||||||||||||||||||||||||||||||||||||||||||||||||||||||||||||||||||||||||||||||||||||||||||||||||||||||||||||||||||||||||||||||||||||||||||||||||||||||||||||||||||||||||||||||||||||||||||||||||||||||||||||||||||||||||||||||||||||||||||||||||||||||||||||||||||||||||||||||||||||||||||||||||||||||||||||||||||||||||||||||||||||||||||||||||||||||||||||||||||||||||||||||||||||||||||||||||||||||||||||||||||||||||||||||||||||||||||||||||||||||||||||
|
№№ |
Названия лабораторий |
Отраслевая принадлежность колледжей |
|||||||||
|
Экономика и управление |
Сфера обслуживания |
Энергетика |
Машиностроение и металлообработка |
Транспорт |
Радиотехника и связь |
Информатика и вычислительная техника |
Строительство и архитектура |
Технология продовольственных и непродовольственных товаров |
Культура и искусство |
||
|
1. |
Технологических средств обучения |
• |
• |
• |
• |
• |
• |
• |
• |
• |
• |
|
2. |
Материаловедения |
|
|
• |
• |
• |
• |
|
• |
• |
• |
|
3. |
Электротехники и электроники |
|
• |
• |
• |
• |
• |
• |
• |
• |
|
|
4. |
Метрологии, стандартизации и сертификации |
|
• |
|
• |
• |
• |
|
• |
• |
|
|
5. |
Информационных технологий |
• |
• |
• |
• |
• |
• |
• |
• |
• |
|
|
6. |
Промышленного электрооборудования |
|
• |
• |
• |
• |
|
|
• |
• |
|
|
7. |
Технической механики |
|
|
• |
• |
• |
|
|
• |
• |
|
|
8. |
Основ автоматизации и контрольно-измерительных приборов |
|
|
• |
• |
|
|
• |
• |
• |
|
|
9. |
Гидравлики и пневматики |
|
|
• |
• |
|
|
|
• |
|
|
|
10. |
Металловедения |
|
|
• |
• |
|
|
|
|
|
|
|
11. |
Сопротивление материалов |
|
|
|
• |
|
|
|
• |
|
|
|
12. |
Физической, коллоидной и аналитической химии |
|
• |
|
|
|
|
|
|
• |
|
|
13. |
Технологии машиностроения |
|
|
|
• |
|
|
|
|
|
|
|
14. |
Строительных материалов и деталей |
|
|
|
|
|
|
|
• |
|
|
|
15. |
Компьютерной графики и видеомонтажа |
|
• |
|
|
|
|
• |
• |
• |
• |
|
16. |
Учебной бухгалтерии |
• |
• |
|
|
|
|
|
|
• |
|
|
17. |
Обработки экономической информации |
• |
• |
|
|
|
|
• |
|
|
|
|
18. |
Маркетинговых исследований и проектных разработок |
• |
|
|
|
|
|
|
• |
• |
|
|
19. |
Экологии и безопасности жизнедеятельности |
|
|
|
|
• |
|
|
• |
• |
|
|
20. |
Дорожных машин |
|
|
|
|
• |
|
|
• |
|
|
|
21. |
Электрических машин и электропривода |
|
|
• |
|
• |
|
|
|
|
|
|
22. |
Товароведения и экспертизы и качества |
|
• |
|
|
|
|
|
|
• |
|
|
23. |
Санитарно-технических и вентиляционных систем |
|
|
|
|
|
|
|
• |
|
|
|
24. |
Средств связи |
|
|
|
|
|
• |
|
|
|
|
|
№№ |
Названия учебно-производственных мастерских |
Отраслевая принадлежность колледжей |
|||||||||
|
Экономика и управление |
Сфера услуг |
Энергетика |
Машиностроение и металлообработка |
Транспорт |
Радиотехника и связь |
Информатика и вычислительная техника |
Строительство и архитектура |
Технология продовольственных и непродовольственных товаров |
Культура и искусство |
||
|
1. |
Слесарная (слесарно-сборочная) |
|
• |
• |
• |
• |
• |
|
• |
|
|
|
2. |
Электромонтажная |
|
• |
• |
• |
• |
• |
|
• |
|
|
|
3. |
Токарная |
|
|
|
• |
• |
• |
|
• |
|
|
|
4. |
Фрезерная |
|
|
|
• |
• |
• |
|
• |
|
|
|
5. |
Электрогазосварочная |
|
|
• |
• |
• |
|
|
• |
|
|
|
6. |
Радиомонтажная |
|
• |
|
• |
• |
• |
|
|
|
|
|
7. |
Столярная |
|
• |
|
• |
• |
|
|
• |
|
|
|
8. |
Кузнечная |
|
|
|
• |
• |
|
|
• |
|
|
|
9. |
По техническому обслуживанию и ремонту автомобилей |
|
• |
|
• |
• |
|
|
|
|
|
|
10. |
Отделочная (малярно-штукатурная) |
|
• |
|
|
|
|
|
• |
|
|
|
11. |
По ремонту кранового оборудования |
|
|
|
• |
|
|
|
• |
|
|
|
12. |
Поварская |
|
• |
|
|
|
|
|
|
• |
|
|
13. |
Каменщиков |
|
|
|
|
|
|
|
• |
|
|
|
14. |
Плиточников |
|
|
|
|
|
|
|
• |
|
|
|
15. |
Деревообрабатывающая |
|
• |
|
• |
|
|
|
• |
|
|
|
16. |
Швейная |
|
• |
|
|
|
|
|
|
• |
• |
|
17. |
Обувная |
|
• |
|
|
|
|
|
|
• |
• |
|
18. |
Рукоделия |
|
• |
|
|
|
|
|
|
• |
• |
|
19. |
Ограночная |
|
• |
|
|
|
|
|
|
|
|
|
20. |
Ювелирная |
|
• |
|
|
|
|
|
|
|
|
|
21. |
Изостудия |
|
|
|
|
|
|
|
|
|
|
|
22. |
Парикмахеров |
|
• |
|
|
|
|
|
• |
|
|
|
Расстояния |
Величины, см |
|
Между слесарными верстаками и столами расположенными «в затылок» |
100 |
|
Между слесарными верстаками и столами расположенными фронтом один к другому |
200 |
|
Между осями тисков |
100 |
|
От стены до тыльной или боковой сторон верстаков и столов |
70 |
|
От стены до фронтальной стороны верстаков и столов |
90 |
|
Расстояния |
Габариты станков, см |
||
|
до 80´180 |
до 200´400 |
до 400´800 |
|
|
Между боковыми сторонами станков |
70 |
90 |
150 |
|
Между тыльными сторонами станков |
70 |
80 |
120 |
|
Между станками, расположенными «в затылок» |
130 |
150 |
200 |
|
Между станками, расположенными фронтальной стороной один к другому |
200 |
250 |
300 |
|
От стены до тыльной или боковой сторон станков |
70 |
80 |
90 |
|
От стены до фронтальной стороны станков |
100 |
130 |
150 |
Примечание. В случаях, когда рядом располагаются станки, имеющие разные габаритные размеры, расстояния между ними следует принимать исходя из требований, относящихся к большему станку.
|
Названия мастерских |
Вместимость (количество |
Удельный показатель площади, |
|
Слесарная |
12 |
7,2 |
|
25 |
6,0 |
|
|
Слесарно-сборочная |
12 |
8,0 |
|
25 |
7,2 |
|
|
По техническому обслуживанию и ремонту автомобилей |
12 |
12,0 |
|
Пожарная |
12 |
16,8 |
|
25 |
14,4 |
|
|
Фрезерная |
12 |
16,8 |
|
25 |
14,4 |
|
|
Электрогазосварочная |
12 |
14,4 |
|
Электромонтажная |
12 |
10,8 |
|
25 |
9,0 |
|
|
Радиомонтажная |
12 |
6,0 |
|
25 |
4,0 |
|
|
Столярная |
12 |
12,0 |
|
25 |
9,6 |
|
|
Деревообрабатывающая |
12 |
12,0 |
|
25 |
10,0 |
|
|
Кузнечная |
6-8 |
14,0 |
|
Отделочная (малярно-штукатурная ) |
12 |
10,8 |
|
Каменщиков |
12 |
9,6 |
|
Плиточников |
12 |
14,5 |
|
Поварская |
12 |
12,0 |
|
Парикмахеров |
6-8 |
6,0 |
|
Швейная |
12 |
6,0 |
|
25 |
4,5 |
|
|
Ювелирная |
12 |
4,0 |
|
Ограночная |
12 |
4,0 |
|
Изостудия |
8-12 |
8,0 |
|
Рукоделия |
12 |
3,5 |
Профессии начального профессионального образования:
Монтажник радиоэлектронной аппаратуры и приборов.
Монтажник оборудования радио и телефонной связи.
Обработчик алмазов.
Портной.
Специальности среднего профессионального образования:
Автоматизированные системы обработки информации и управления.
Документационное обеспечение управления и архивоведение.
Земельно-имущественные отношения.
Моделирование и конструирование швейных изделий.
Радиоаппаратостроение.
Садово-парковое и ландшафтное строительство.
Технология изделий из кожи.
Технология швейных изделий.
Товароведение.
Экспертиза качества потребительских товаров.
Дизайн интерьеров.
Организация социального обеспечения.
Виды экономической деятельности колледжей - виды их деятельности, дифференцированные по принадлежности к различным отраслям народного хозяйства;
Аудитория - универсальное учебное помещение для теоретических занятий;
Кабинет - учебное помещение для теоретических занятий по конкретному предмету;
Лаборатория - учебное помещение для занятий по конкретному предмету, в котором предусмотрены условия для проведения учебно-практических экспериментов.
Учебно-производственная мастерская - помещение для производственного обучения студентов с использованием действующих устройств, машин, станков и механизмов.
Ряд столов - такое их размещение, при котором сидящие за ними студенты смотрят друг другу в затылок.

1 - вестибюль с гардеробом; 2 - рекреация; 3 - учебные помещения профессионально-технического цикла; 4 - учебные помещения общеобразовательного цикла; 5 - лаборатория ТСО; 6 - лекционная аудитория; 7 - спортивные помещений; 8 - актовый зал с кружковыми помещениями; 9 - библиотека; 10 - столовая; 11 - учебно-производственные мастерские; 12 - учебный полигон; 13 - спортплощадки; 14 - специализированные лаборатории с тяжелым оборудованием; 15 - производственно-вспомогательные помещения; 16 - санитарно-бытовые помещения; 17 - складские помещения.


А - зона преподавателя - демонстрационная зона, Б - зона теоретических занятий и инструктажа обучаемых; В - зона лабораторно-практических занятий; Г - зона хранения; 1 - мебель; 2 - оборудование; 3 - шкафы - перегородки.

А - зона преподавателя - демонстрационная зона; Б - зона теоретических занятий и инструктажа обучаемых; В - зона лабораторно-практических занятий с тяжелым оборудованием; Г - зона лабораторно-практических занятий с легким оборудованием; Д - зона хранения; 1 - мебель; 2 - тяжелое оборудование; 3 - шкафы-перегородки, 4, 5 - лабораторные шкафы с легким настольным оборудованием.

А - зона преподавателя (мастера) - демонстрационная зона; Б - зона коллективного инструктажа; В - учебно-производственная зона; Г - зона временного складирования; Д - место сборки узлов и деталей; 1 - стол; 2 - стул; 3 - доска меловая (маркерная, магнитная); 4 -подиум; 5 - заточной станок универсальный; 6 - скамья; 7 - верстак слесарный, 8 - табурет; 9 - тумба к рабочему месту; 10, 11 - вертикально-сверлильные станки; 12 - радиально-сверлильный станок; 13 - стеллаж; 14 - электроталь.

а - в слесарной мастерской на 12 мест; б - в слесарной мастерской на 25 мест; в - в механической мастерской на 12 мест; г - с размещением мастера за прозрачной звукозащитной перегородкой. 1 - стол мастера; 2 - стул; 3 - шкафы с магнитной (маркерной, интерактивной) доской; 4 - верстак демонстрационный; 5 - скамья складируемая; 6 - станок токарно-винторезный; 7 - тумба подкатная; 8 - стол приставной; 9 - шкаф; 10 - компьютер.
Примечание: на данном и всех последующих рисунках размеры приведены в сантиметрах.

А - зона преподавателя (мастера); В - учебно-производственная зона; Г - зона временного складирования; Д - место сборки узлов и деталей. 1 - стол; 2 - стул; 3 - приставной стол; 4 - приставная тумба; 5 - шкаф; 6 - заточный станок универсальный; 7 - верстак слесарный; 8 - табурет; 9 - тумба к рабочему месту; 10, 11 - вертикально-сверлильный станок; 12 - радиально-сверлильный станок; 13 - стеллаж; 14 - место сборки.

1 - стол преподавателя; 2 - стол учебный; 3 - кресло; 4 - персональный компьютер; 5 - принтер; 6 - тумба для принтера; 7 - плоттер; 8 - тумба для проекционной аппаратуры; 9 - доска (маркерная, магнитная, интерактивная); 10 - шкаф для хранения учебного материала; 11 - место студента-инвалида.

1 - стол рабочий; 2 - кресло рабочее; 3 - тумба; 9 - стол преподавателя; 10 - стул преподавателя; 11 - тумба для проектора; 12 -книжный шкаф; 13 - многофункциональная доска (маркерная, магнитная, проекционный экран); 14 - тумба для бумаг, 15 - репрографический комплекс (плоттер, сканер); 16 - рабочее место студента-инвалида.

1 - доска меловая (маркерная, магнитная); 2 - стол преподавателя; 3-4 - стол лабораторный физический; 5 - стул; 6 - твердомер шариковый; 7 - копер маятниковый; 8 - верстак слесарный; 9 - пресс гидравлический; 10 - испытательная машина; 11 - разрывная машина; 12 - шкаф лабораторный; 13 - стеллаж пристенный; 14 - тумба для проектора.

1 - рабочее место студента-инвалида; 2 - стол для электромонтажных работ; 3 - стол демонстрационный; 4 - стул ученический; 5 - стул преподавателя; 6 - стол для размещения компьютера и проектора; 7 - тумба для проекционных аппаратов; 8 - демонстрационный стенд; 9 - шкаф для учебных пособий и материалов; 10 - доска меловая (маркерная, интерактивная); 11 - щиты экспозиционные.

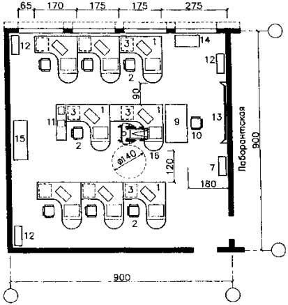
1 - стол преподавателя; 2 - стул преподавателя; 3 - доска меловая (маркерная, магнитная); 4 - стол лабораторный физический; 5 - стул ученический; 6 - шкаф для учебных пособий; 7 - 8 - микроскоп; 9 - оптиметр; 10 - тумба для инструмента; 11 - стеллаж; 12 - тумба для проекционной аппаратуры.

1 - стол преподавателя; 2 - стул; 3 - доска меловая (маркерная, интерактивная); 4 - стол лабораторный; 5 - верстак слесарный; 6 - подставка для электродвигателя; 7 - выпрямительное устройство; 8 - шкаф комплексного выпрямительного устройства; 9 - аппарат для испытания электрической прочности; 10 - рабочее место студента-инвалида.
Примечание. Пунктиром показаны места временного расположения стульев учащихся.

1 - стол лабораторный физический; 2 - рабочее место студента-инвалида; 3 - стол преподавателя; 4 - тумба для проекционной аппаратуры; 5 - шкаф для приборов; 6 - стул ученический; 7 - стул преподавателя; 8 - коляска инвалида; 9 - доска меловая (маркерная, интерактивная).

1 - стол преподавателя; 2 - стул преподавателя; 3 - стол радиомонтажный; 4 - стул; 5 - доска меловая (маркерная, магнитная); 6 - шкаф пристенный; 7 - стол лабораторный физический;8 - верстак слесарный; 9 - станок настольно-сверлильный; 10 - станок точильно-шлифовальный; 11 - стенд для основ электроники; 12 - установка для изучения эл. регулятора; 13 - установка систем авторегулирования; 14 - установка систем авторегулирования; 15 - рабочее место студента-инвалида.

1 - стол преподавателя; 2 - стул; 3 - доска многофункциональная (меловая, маркерная, магнитная); 4 - стол учащегося; 5 - стул; 6 - стол лабораторный.

1 - стол преподавателя; 2 - стол ученический; 3 - стул рабочий поворотный; 4 - стул учащегося; 5 - доска меловая (маркерная, магнитная); 7 - штанга для подвески экспозиции; 8 - тумба для проекционной аппаратуры; 10 - шкаф-перегородка (шкаф встроенный); 11 - стол лабораторный с микроскопом МИМ-7; 12 - стол лабораторный с микроскопом биологическим; 13 - стол лабораторный с микроскопом МИМ-8; 14 - стол препараторский для травления микро и макрошлифов, зачистки образцов; 15 - шторы затемнения; 16 - вытяжной шкаф; 17 - стол лабораторный с твердомером ПМТ-3; 18 - стол лабораторный с твердомером шариковым; 19 - стол лабораторный с твердомером конусным; 20 - стол лабораторный с электропечью муфельной; 21 - стол лабораторный с электропечью тигельной.

1 - стол преподавателя; 2 - стул преподавателя; 3 - стол ученический; 4 - стол физический; 5 - стул ученический; 6 - доска меловая (маркерная, интерактивная); 7 - экран; 8 - машина для испытания пружин; 9 - машина для испытаний на трение и износ; 10 - гидравлический пресс; 11 - машина для испытаний на кручение; 12 -машина для испытания материалов на разрыв; 13 - копер маятниковый; 14 - твердомер; 15 - шкаф для приборов; 16 - тумба для проекционной аппаратуры.

1 - стол преподавателя; 2 - стул; 3 - доска (маркерная, интерактивная); 4 - стол для проекционной аппаратуры; 5 - стол лабораторный химический островной; 6 - стол лабораторный химический; 7 - стул; 8 - стол лабораторный физический; 9 - шкаф для реактивов; 10 - шкаф вытяжной; 11 - рабочее место студента-инвалида.

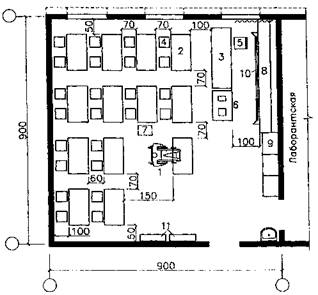
1 - станок плоскошлифовальный; 2 - станок заточный; 3 - верстак слесарный; 4 - станок вертикально-сверлильный; 5 - станок поперечно-строгальный; 6 - станок токарно-винторезный; 7 - стол лабораторный физический; 8 - тумба для инструмента; 9 - станок точильно-шлифовальный; 10 - станок токарно-винторезный; 11 - станок токарно-винторезный; 12 - станок настольный сверлильный; 13 - станок фрезерный; 14 - станок отрезной с ножовочной пилой; 15 - стеллаж пристенный; 16 - стол письменный; 17 - шкаф лабораторный; 18 - стол преподавателя; 19 - стул.

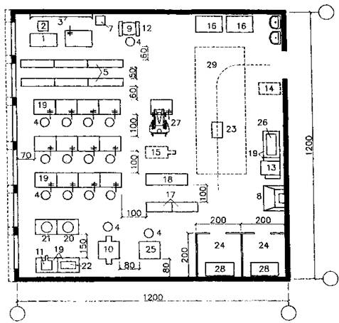
1 - лабораторный стол с весами торговыми; 2 - лабораторный стол с весами циферблатными; 3 - лабораторный стол с весами техническими; 4 - весы почтовые; 5 - вытяжной шкаф; 6 - дуктилометр; 7 - лабораторный стол с пенитрометром, кольцом и шаром; 8 - лабораторный стол с вискозиметром и прибором Вика; 9 - лабораторный стол с сушильными шкафами; 10 - лабораторный стол с муфельными печами; 11 - пресс (П-50); 12 - пресс (П-250); 13 - разрывная машина; 14 - барабан лабораторный; 15 - мешалка лабораторная; 16 - виброплощадка лабораторная; 17 - твердомер шариковый; 18 - машина испытательная; 19 - копер испытательный; 20 - ящик для приготовления смеси; 21 - столы лабораторные пристенные для разборки форм; 22 - ящики с песком, щебнем; 23 - банки с цементом; 24 - ванны для замачивания щебня; 25 - сита; 26 - ящики с щебнем; 27 - лабораторные столы для работы с малым оборудованием и приборами; 28 - стол учащегося; 29 - стол преподавателя; 30, 31 - доска меловая (маркерная, магнитная), экран; 32 -лабораторная раковина; 33 - тумба для компьютера и проектора.

1 - стол; 2 - стул; 3 - доска (маркерная, магнитная); 5 - заточный станок универсальный; 6 - скамья; 7 - верстак слесарный; 8 - табурет; 9 - тумба к рабочему месту станочника; 10 - вертикально-сверлильный станок; 11 - вертикально-сверлильный станок; 12 - радиально-сверлильный станок; 13 - шкаф; 14 - место сборки.

1 - стол; 2 - стул; 3 - шкаф; 4 - тумба приставная; 5 - стол приставной; 6 - заточный станок универсальный; 7 - верстак слесарный; 8 - табурет; 9 - тумба к рабочему месту станочника; 10 - вертикально-сверлильный станок; 11 - вертикально-сверлильный станок; 12 - радиально-сверлильный станок; 13 - шкаф; 14 - место сборки.

1 - стол мастера; 2 - стул; 3 - доска учебная; 4 - табурет; 5 - скамья; 7 - тумба к рабочему месту станочника; 8 - шкаф вытяжной химический; 9 - станок точильно-шлифовальный; 10 - станок вертикально-сверлильный; 11 - станок настольный сверлильный; 12 - пылеулавливающий агрегат; 13 - шкаф сушильный; 14 - установка компрессорная; 15 - тележка для транспортировки; 16 - стол физический; 17 - подставка для электромашин; 18 - скамья кабельная; 19 - верстак слесарный; 20 - трубоприжим; 21 - трубогиб ручной; 22 - пресс ручной; 23 - электроталь; 24 - кабина для электромонтажных работ; 25 - станок вертикально-сверлильный; 26 - станок вертикально-сверлильный; 27 - рабочее место студента-инвалида; 28 - стол электромонтажный; 29 - место сборки.

1 - стол мастера; 2 - стул преподавателя; 3 - доска меловая (маркерная, магнитная); 5 - скамья; 6 - тумба к рабочему месту станочника; 7 - верстак слесарный; 8 - станок токарно-винторезный; 9 - станок токарно-револьверный; 10 - автомат токарно-револьверный; 11 - станок токарно-винторезный; 12 - станок токарно-винторезный; 13 - станок токарно-винторезный; 14 - станок токарно-винторезный; 15 - станок токарно-винторезный.

1 - стол преподавателя (мастера); 2 - стул преподавателя; 3 - шкаф; 4 - приставной стол; 5 - приставная тумба; 6 - тумба к рабочему месту станочника; 7 - верстак слесарный; 8 - станок токарно-винторезный; 9 - станок токарно-револьверный; 10 - автомат токарно-револьверный; 11 - станок токарно-винторезный: 12 - станок токарно-винторезный; 13 - станок токарно-винторезный; 14 - станок токарно-винторезный; 15 - станок токарно-винторезный; 16 - прозрачная звукозащитная перегородка.

1 - стол преподавателя (мастера); 2 - стул преподавателя; 3 - шкаф; 4 - стол приставной; 5 - тумба приставная; 6 - тумба к рабочему месту станочника; 7 - верстак слесарный; 8 - станок фрезерный и шлифовальный; 9 - станок вертикально-фрезерный; 10 - станок шпоночно-фрезерный; 11 - станок горизонтально-фрезерный; 12 - станок горизонтально-фрезерный; 13 - станок консольно-фрезерный; 14 - полуавтомат зубофрезерный; 15 - табурет поворотный; 16 - прозрачная звукозащитная перегородка.

1 - стол мастера; 2 - стул; 3 - доска учебная; 5 - шкаф для одежды; 6 - верстак слесарный; 7 - табурет; 8 - автомат для дуговой сварки под флюсом; 9 - машина для сварки трением; 10 - машина для контактной дуговой сварки; 11 - машина для точечной сварки; 12 - машина для шовной сварки; 13 - машина переносная газорежущая; 14 - стол для электросварочных работ; 15 - электросварочная кабина; 16 - преобразователь передвижной; 17 - пост газораздаточный кислорода; 18 - пост газораздаточный ацетилена; 19 - стол для газосварочных работ; 20 - рамка разрядная ацетиленовая; 21 - рамка перепускная кислородная; 22 - скамья.

1- стол мастера; 2 - стул; 3 - доска учебная; 4 - табурет; 5 - скамья; 7 - тумба к рабочему месту станочника; 8 - шкаф вытяжной химический; 9 - станок точильно-шлифовальный; 10 - станок вертикально-сверлильный; 11 - станок настольный сверлильный; 12 - пылеулавливающий агрегат; 13 - шкаф сушильный; 14 - установка компрессорная; 15 - тележка для транспортирования; 16 - стол физический; 17 - верстак слесарный; 18 -трубоприжим; 19 - трубогиб ручной; 20 - пресс ручной; 21 - станок вертикально-сверлильный; 22 - станок вертикально-сверлильный; 23 - рабочее место студента-инвалида.

1 - стол мастера; 2 - стул преподавателя; 3 - доска меловая (маркерная, магнитная); 5 - скамья; 6 - верстак столярный; 7 - табурет, 8 - верстак столярный; 9 - клееварка; 10 - вертикально-сверлильный станок; 11 - станок ажурно-лобзиковый; 12 - станок токарный по дереву; 13 - шкаф для одежды; 14 - агрегат пылеулавливающий; 15 - место для сборки деревянных конструкций.

1 - стол мастера; 2 - стул; 3 - шкаф; 4 - стол приставной; 5 - тумба приставная; 6 - верстак столярный; 7 - табурет; 8 - верстак слесарный; 9 - клееварка; 10 - вертикально-сверлильный станок; 11 - станок ажурно-лобзиковый; 12 - станок токарный по дереву; 13 - шкаф для одежды; 14 - агрегат пылеулавливающий; 15 - место сборки деревянных конструкций.

1 - стол мастера; 2 - стол ученический; 3 - стул; 4 - доска меловая (маркерная, магнитная); 5 - электропечь; 6 - станок ножовочный; 7 - электропечь; 8 - молот ковочный пневматический; 9 - наковальня; 10 - горн; 11 - верстак слесарный; 12 - газодувка ротационная; 13 - стеллаж; 14 - пресс-ножницы.

1 - верстак слесарный: 2 - вертикально-сверлильный станок; 3 - станок точильный двухсторонний; 4 - станок настольно-сверлильный; 5 - электроточило; 6 - стеллаж; 7 - установка компрессорная передвижная; 8 - стенд для демонтажа и монтажа колес; 9 - стенд для балансировки колес; 10 - подъемник; 11 - сход-развал; 12 - тумбочка к рабочему месту станочника; 13 - стол преподавателя; 14 - стул преподавателя; 15 - шкаф; 16 - приставной стол; 17 - приставная тумба; 18 - прозрачная звукозащитная перегородка.

А - отделение маляров-штукатуров; Б- колерная; 1 - доска меловая (маркерная, магнитная); 2 - стол мастера; 3 - стул; 4 - скамья трехместная; 5 - стол демонстрационный; 7 - стеллаж универсальный; 8 - шкаф для одежды; 9 - мелотерка; 10 - вибросито; 11 - мешалка двухвальная; 12 - умывальник; 13 - краскопульт; 14 - станок заточной; 15 - установка шпаклевочная; 16 - красконагревательный бачок; 17 - компрессор диафрагменный; 18 - кабина асбоцементная; 19 - место для тренировочных щитов.

1 - стол; 2 - стул; 3 - доска (маркерная, магнитная); 5 - заточный станок универсальный; 6 - скамья; 7 - верстак слесарный; 8 - табурет; 9 - тумба к рабочему месту станочника; 10 - вертикально-сверлильный станок; 11 - вертикально-сверлильный станок; 12 - радиально-сверлильный станок; 13 - шкаф; 14 - электроталь; 15 - место сборки; 16 - место для узлов и деталей.

1 - стол преподавателя с размещением мультимедийного персонального компьютера и принтера; 2 - стол учебный; 3 - стул преподавателя; 4 - стул учебный; 5 - тумба общего назначения; 6 - тумба с откидной дверцей; 7 - интерактивная доска (экран); 8 - тумба для размещения проекционной аппаратуры; 9 - стол производственный разделочный; 10 - стол четырехместный обеденный; 11 - сервировочный стол; 12 - стойка для приборов; 13 - стол производственный; 14 - микроволновая печь; 15 - электрогриль; 16 - шкаф для посуды; 17 - стол-мойка (посудомоечная машина; 18 - мойка; 19 - холодильный шкаф; 20 - стол производственный; 21 - навесная полка; 22 - плита электрическая с жарочным шкафом; 23 - шкаф электрический жарочный двухсекционный; 24 - овощерезка; 25 - шкаф для хлеба.

1 - стол мастера; 2 - стул; 3 - доска учебная; 5 - скамья; 6 - рабочее место каменщика; 7 - шкаф для одежды; 8 - ящик для раствора; 9 - клетка кирпича; 10 - растворомешалка; 11 - растворонасос; 12 - щит для приготовления раствора; 13 - тачка для развозки раствора; 14 - тачка для развозки кирпича; 15 - вибросито; 16 - бункер для глины; 17 - ларь для песка.

1 - стол мастера; 2 - стул; 3 - доска учебная; 5 - скамья; 6 - рабочее место каменщика; 7 - шкаф для одежды; 8 - ящик для раствора; 9 - клетка кирпича; 10 - растворомешалка; 11 - растворонасос; 12 - щит для приготовления раствора; 13 - тачка для развозки раствора; 14 -тачка для развозки кирпича; 15 - вибросито; 16 - бункер для глины; 17 - ларь для песка.

1 - доска меловая (маркерная, магнитная);2 - стол мастера; 3 - стул; 4 - стол демонстрационный; 5 - скамья трехместная; 6 - шкаф для одежды; 7 - стеллаж универсальный; 9 - растворитель; 10 сито барабанное; 11 - стенка кирпичная; 12 - стенка кирпичная полукруглая; 13 - арка кирпичная; 14 - место для песка.


а - заточная мастерская; б - механическая мастерская; в - ремонтная мастерская. 1 - стол рабочий; 2 - стул; 3 - стеллаж ячеечный; 4 - стеллаж; 5 - шкаф инструментальный; 6 - станок токарно-винторезный; 7 - станок отрезной ножовочный; 8 - станок фрезерный универсальный; 9 - стенд сборочный; 10 - тумба для инструментов; 11 - верстак слесарный; 12 - станок вертикально-сверлильный; 13 - станок токарно-винторезный; 14 - станок плоско-шлифовальный; 15 - станок кругло-шлифовальный; 16 - станок точильный; 17 - подставка для настольного оборудования; 18 - подставка для разметочной плиты; 19 - электроталь.


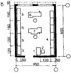
а - централизованный блок санитарно-бытовых помещений на 150 мест; б - гардеробная при механической мастерской. I - гардеробная; II - душевая; III - умывальные; IV - уборные. 1 - шкаф открытый для рабочей одежды; 2 - шкаф закрытый для рабочей и домашней одежды; 3 - вешалка напольная односторонняя; 4 - вешалка напольная двухсторонняя; 5 - скамья для переодевания.


а - инструментальная кладовая; б - склад готовой продукции; в - склад заготовок и материалов. 1 - стол рабочий; 2 - стул; 3 - стеллаж ячеечный; 4 - стеллаж универсальный; 5 - шкаф инструментальный; 6 - станок токарно-винторезный; 7 - станок отрезной; 8 - станок фрезерный универсальный; 9 - стенд сборочный; 10 - тумба для инструментов; 11 - верстак слесарный; 12 - станок вертикально-сверлильный; 13 - станок токарно-винторезный; 14 - станок плоско-шлифовальный; 15 - станок кругло-шлифовальный; 16 - станок точильный; 17 - подставка для настольного оборудования; 18 - подставка для разметочной плиты; 19 - электроталь.
|
ГОСТЫ, СТРОИТЕЛЬНЫЕ и ТЕХНИЧЕСКИЕ НОРМАТИВЫ. Некоммерческая онлайн система, содержащая все Российские Госты, национальные Стандарты и нормативы. В Системе содержится более 150000 файлов нормативно-технической документации, действующей на территории РФ. Система предназначена для широкого круга инженерно-технических специалистов. Copyright © www.gostrf.com, 2008 - 2025 |