Крупнейшая бесплатная информационно-справочная система онлайн доступа к полному собранию технических нормативно-правовых актов РФ. Огромная база технических нормативов (более 150 тысяч документов) и полное собрание национальных стандартов, аутентичное официальной базе Госстандарта. GOSTRF.com - это более 1 Терабайта бесплатной технической информации для всех пользователей интернета. Все электронные копии представленных здесь документов могут распространяться без каких-либо ограничений. Поощряется распространение информации с этого сайта на любых других ресурсах. Каждый человек имеет право на неограниченный доступ к этим документам! Каждый человек имеет право на знание требований, изложенных в данных нормативно-правовых актах!

  


 

Открытое акционерное общество

Проектно-конструкторский и технологический институт промышленного строительства

ОАО ПКТИпромстрой

 

 

 

 

УТВЕРЖДАЮ

Генеральный директор, к.т.н.

С.Ю. Едличка

ТЕХНОЛОГИЧЕСКАЯ КАРТА НА РАЗРАБОТКУ ГРУНТА В ТРАНШЕЕ С КРЕПЛЕНТЕМ СТЕНОК И ВЕРХНИМИ РАСПОРАМИ

114-05 ТК

Главный инженер

                   А.В. Колобов

Начальник лаборатории

             Б.И. Бычковский

 

 

2005

Содержание

В карте приведена технология разработки грунта в траншее с креплением вертикальных стенок стальными трубами и верхними распорами, представлены схемы механизации, освещены вопросы качества работ, безопасности и охраны труда, экологической и пожарной безопасности работ, приведены указания по организации рабочего места, дана потребность в материально-технических ресурсах, приведены технико-экономические показатели.

Карта может применяться самостоятельно, а также в составе проекта производства работ в качестве технологического документа при производстве работ на строительных объектах.

Настоящая карта разработана сотрудниками ОАО ПКТИпромстрой:

Савина О.А. - исполнитель, компьютерная обработка и графика;

Черных В.В. - разработка технологической модели карты;

Бычковский Б.И. - разработка технологической карты, нормоконтроль и корректура разработки;

Колобов А.В. - общее техническое руководство разработкой технологических карт;

к.т.н. Едличка С.Ю.- общее руководство разработкой технологической документации.

1 ОБЩИЕ ДАННЫЕ

1.1 Технологическая карта предназначена для использования линейным производственным и инженерно-техническим персоналом строительных организаций при разработке грунта в траншеях с креплением вертикальных стенок и верхними распорами, используемых для устройства ленточных фундаментов и прокладки трубопроводов инженерных сетей в стесненных условиях.

1.2 В практике строительства при разработке грунта в траншеях наиболее часто применяются варианты крепления вертикальных стенок, представленные на рисунке 1.

В качестве креплений могут использоваться трубы стальные при глубине до 4,5 м включительно и балки двутавровые при глубине траншей до 8 м в сочетании с поясами из двутавровых балок от I №22 до I №33 и распорами из бревен диаметром 200 мм и стальных труб 219x12, длина которых зависит от ширины траншеи. Глубина защемления труб и двутавровых балок проверяется и уточняется при расчете подпорных стенок.

Выбор варианта зависит от прокладываемой коммуникации, от высоты, глубины траншеи и схемы обратной засыпки. При этом величина временной нагрузки на призме обрушения принимается 2,0 т/м2.

а) с верхними распорами; б) со средними распорами; с) консольные;

L - глубина погружения балок; Н - глубина траншеи; В - ширина траншеи

Рисунок 1 - Варианты крепления стенок траншей глубокого заложения

1.3 Настоящей картой предусматривается разработка грунта в траншеях с креплением стенок и верхними распорами, представленными на рисунках и 2.

Крепление вертикальных стенок траншеи выбрано с использованием стальных труб Æ 219×12 мм, поясов из стальных балок двутавровых №24 и распоров из бревен диаметром 200 мм согласно рисунку 3. Распорами могут служить как деревянные, так и металлические элементы. Варианты крепления вертикальных стенок траншей с использованием труб или балок, поясов и распоров с указанием их сечений и материала определяются проектом.

Рисунок 2 - Общая схема траншеи с верхним креплением

Рисунок 3 - Крепление стенок с применением стальных труб и распорок

1.4 Привязка технологической карты к местным условиям строительства заключается в уточнении объемов работ, средств механизации и потребности в материально-технических ресурсах, а также в уточнении схемы организации процесса соответственно фактическим габаритам траншеи, калькуляции и календарному плану производства работ.

1.5 При привязке технологической карты к объекту строительства в стесненных условиях необходимо учитывать «Организационно-технологический регламент строительства (реконструкции) объектов в стесненных условиях существующей городской застройки», введенный в действие в 2002 г., и «Правила подготовки и производства земляных работ, обустройства и содержания строительных площадок в г. Москве», утвержденные постановлением Правительства Москвы № 857-ПП от 07.12.2004 г.

1.6 Производство работ по прокладке и переустройству инженерных сетей и коммуникаций, проведение подготовительных и земляных работ разрешается выполнять при наличии проекта производства работ, разработанного на основании ПОСа, и ордера, оформленного уполномоченным органом Правительства Москвы - Объединением административно-технических инспекций.

2 ОРГАНИЗАЦИЙ И ТЕХНОЛОГИЯ ВЫПОЛНЕНИЯ РАБОТ

2.1 До начала производства земляных работ необходимо:

- получить следующие документы:

а) план трассы с расположением погружаемых труб и указанием расстояний от существующих подземных коммуникаций, а также от воздушных сетей, в том числе от контактных сетей городского транспорта;

б) проект производства работ;

в) разрешение на производство земляных, свайных и буровых работ от организаций, эксплуатирующих подземные коммуникации и воздушные сети в данном районе, при необходимости - и от Управления ГИБДД ГУВД г. Москвы;

- завершить подготовку фронта работ (раскорчевку, планировку, шурфовку, снос и перенос препятствующих работам сооружений и коммуникаций) в соответствии с требованиями технологии производства работ и ПОС с вызовом на место владельца или представителя эксплуатирующей организации;

- устроить временные дороги и подъезды;

- установить инвентарные здания и сооружения согласно стройгенплану строительной площадки;

- ознакомить участников строительства с проектом производства земляных работ (технологической картой) и с требованиями безопасности и охраны труда под расписку;

- установить вдоль трассы временные реперы, связанные нивелирными ходами с постоянными реперами;

- произвести разбивку оси траншеи и ее вертикальных стенок, границ отвала грунта и подготовить место для складирования;

- обозначить на местности пересекающие траншею или проходящие в непосредственной близости существующие коммуникации;

- закрепить разбивочные оси и углы поворота трассы и привязать их к постоянным объектам на местности (зданиям, сооружениям, деревьям и др.);

- вскрыть дорожные покрытия и (или) тротуары (при необходимости);

- оградить место производства работ инвентарными щитами или временным ограждением (при производстве работ в пределах проездов), и вывесить соответствующие предупредительные знаки, а в темное время - световые указатели;

- оформить актом разбивку трассы с приложением ведомостей реперов и привязок;

- выполнить, при необходимости, понижение уровня грунтовых вод по проекту, разработанному специализированной организаций;

- производителю работ ознакомить и передать машинистам буровой установки и экскаватора всю трассу с углами поворотов для выполнения работ;

- разгрузить и складировать стальные трубы кранами в соответствии с ППР.

2.2 В практике прокладки инженерных сетей могут встретиться три варианта территорий, по которым осуществляется прокладка коммуникаций, а именно:

- дорожное покрытие и тротуары (со снятием асфальта, бетона, тротуарной плитки и т.д.);

- парки и скверы с ухоженными газонами (со снятием дерна и верхнего растительного слоя);

- территории застроек и пустырей.

Технологической картой предусматривается следующая последовательность работ в траншеях глубокого заложения:

- вскрытие дорожного покрытия и (или) тротуаров (при необходимости);

- снятие дерна и верхнего растительного слоя;

- планировка поверхности земли по всей трассе бульдозерами;

- разбивка центра места установки каждой трубы, закрепление его штырем или деревянным колышком, забитым на глубину 0,2-0,3 м;

- бурение скважин и установка в них стальных металлических труб;

- послойная разработка грунта в траншее экскаваторами, оборудованными обратной лопатой или грейфером, открытым способом с отсыпкой грунта в отвал или погрузкой в автотранспортные средства с устройством забирки и установкой распоров;

- доработка грунта и зачистка дна траншеи средствами малой механизации либо вручную;

- рытье приямков под соединения труб при последующей прокладке трубопроводов.

2.3 Для резки асфальтобетона используются механизмы для нарезки швов в дорожном покрытии и тротуарах с размельчением их на отдельные куски отбойным молотком. Выбирается строительный мусор экскаваторами.

Разборка тротуарной плитки производится вручную с укладкой ее на боковых территориях при последующем восстановлении прохожей части тротуаров.

Поверхность земли по всей трассе должна быть спланирована на ширину, обеспечивающую свободный проход по ней строительной техники и иметь уклон 0,5-1,0 % для обеспечения свободного стока воды. Планировка поверхности земли выполняется бульдозерами 3 и 4 тягового класса, технические характеристики некоторых из них представлены в таблице 1.

Таблица 1

Технические характеристики бульдозеров.

Показатели

Марка бульдозера

ДЗ-133

ДЗ-42

Д342Г Д342Г‑1

ДЗ-128

ДЗ-186

ДЗ‑130

ДЗ‑101

ДЗ‑101А

ДЗ-104

ДЗ-109

ДЗ-109Б

1

2

3

4

5

6

7

8

9

10

Тип базового трактора

МТЗ

80/82

ДТ-75

ДТ-75М

Р-С2

ДТ- 75НР-С2

Т-90П

Т‑4АП2‑С1

Т‑4АП2‑С1

Т-130.1Г-1

Т-130МГ-1

Мощность двигателя, кВт

55

66

66

66

70

90

96

96

118

Тяговый класс

1,4

3

3

3

3

4

4

4

10

Размеры отвала:

 

 

 

 

 

 

 

 

 

- ширина (без уширителей), мм

2100

2560

2520

2560

2520

2520

2860

3280

4120

- высота (без козырька), мм

650

804

800

950

960

950

1050

990

1140

- высота с козырьком, мм

-

-

-

-

-

1135

-

-

-

Наибольший подъем отвала над опорной поверхностью, мм

500

600

830

760

830

760

860

700

935

Наибольшее заглубление ниже опорной поверхности, мм

200

300

410

300

360

300

435

300

535

Поперечный перекос отвала, град.

-

-

-

12

-

12

12

±6

±6

Угол резания отвала, град.

50-60

55

55

55

55

55

55

55

55

Угол поворота отвала в горизонтальной плоскости, град.

-

-

-

-

-

-

-

±30

±30

Скорость подъема-опускания отвала, м/с

0,25

0,25

0,25

0,25

0,25

0,25

0,25

0,25

0,25

Масса, кг:

 

 

 

 

 

 

 

 

 

- рабочего оборудования

4210

-

-

1070

900

1206

1424

1800

2193

- общая

4420

7000

7085

7280

7100

7846

9900

10800

16443

Размеры, мм:

 

 

 

 

 

 

 

 

 

- длина

5010

4650

4980

4825

-

4826

5029

4900

5800

- ширина

2130

2560

2520

2560

2530

2530

2860

3250

4120

- высота

2850/2852

2300

2650

2550

-

2923

2565

2565

3300

Производительность на грунтах II группы и дальности транспортировки 50 м, м3

20

50

50

50

55

60

65

60

95

Изготовитель

АО Дормаш

г Минск Беларусь

Украина

Россия

Украина

Россия

АО «Калкаманский завод дорожных машин», Россия

АО «Челябинский завод дорожных машин»

Выпуск

 

Прекращен

Ведется

Прекращен

Ведется

Ведется

Прекращен

Прекращен

Бульдозеры 3 и 4 тягового класса предназначены для выполнения землеройно-планировочных работ в строительстве и сельском хозяйстве на грунтах I - III групп в районах с умеренным климатом, при температуре воздуха ± 40°С, без предварительного рыхления. Более тяжелые грунты должны быть предварительно разрыхлены.

Экономически эффективная дальность перемещения грунта не превышает 50 м, а использование бульдозеров более тяжелого класса экономически не целесообразно.

При планировке поверхности земли бульдозером предусматривается срезка неровностей и перемещение грунта согласно рисунку 4. Планировка ведется полосами, равными ширине отвала бульдозера, при рабочем ходе в одном направлении. При планировке поверхности земли бульдозером резание и перемещение грунта производится на первой передаче трактора, а возвращение в забой выполняется задним ходом на второй или третьей передачах без разворота бульдозера.

Рисунок 4 - Схема производства работ по планировке поверхности земли бульдозером

Подъем ножа необходимо совмещать с разгрузкой грунта, а опускание его - с переключением передачи трактора и началом движения бульдозера задним ходом. Совмещение отдельных рабочих операций сокращает продолжительность цикла и повышает производительность бульдозера.

2.4 Закрепление разбивочных осей линейных сооружений заключается в разбивке оси трассы с закреплением на местности согласно рисунку 5. Для установления оси трассы используются геодезические инструменты, а для закрепления - деревянные колышки и металлические штыри.

а, б - геодезические знаки; в - схема закрепления знаков разбивочных осей
1 - временный знак из дерева или металла Æ 15-30 мм; 2 - опознавательная веха Æ 50-80 мм;
3 - постоянный знак из дерева Æ 100 мм или металла Æ 80 мм

Рисунок 5 - Закрепление разбивочных осей линейных сооружений

2.5 Бурение скважин и установка труб.

2.5.1 При креплении стенок траншеи стальными трубами их устанавливают в предварительно пробуренные скважины.

Бурение скважин производится бурильно-крановыми машинами, технические характеристики некоторых из них представлены в таблице 2.

Возможность бурения скважин бурильно-крановой машиной определяют пробным бурением.

2.5.2 Для креплений стенок траншеи с распорами шаг и глубину скважин под стальные трубы определяют в зависимости от физико-механических характеристик разрабатываемого грунта и глубины будущей траншеи по таблицам 3 и 4.

Таблица 2

Технические характеристики бурильно-крановых машин

Показатели

Модификация

БКМ-802С

БКМ-1501

БКМ-150.2

БМ-2001

БМ-2002

БМ-3002

БМ-4001

Базовая машина

Автомобиль КрАЗ-257

Автомобиль КрАЗ-250

Автомобиль КрАЗ-250

ЭО-5122

ЭО-4125

ЭО-5117 (ЭО‑5123)

ЭО-6122

Мощность двигателя, кВт

66

114

114

125

96

125

125

Наибольшая глубина бурения, м

8

15

15

20

20

30

40

Диаметр бура, мм

300; 400; 650

350; 500; 630

630

630; 1000

630; 1000

1000; 1200; 1500

1200; 1500; 1700

Тип бурового инструмента

шнековый

шнековый и ковшовый

шнековый

шнековый и ковшовый

Угол бурения, град

90

90

90

90

90

90

78-90

Наибольший крутящий момент на вращение бурового инструмента, кН×м

-

14,7

5,4

20,0

66,1

114

74

Частота вращения бурового инструмента, с-1

-

0,83

0,83

0,83

0,16-1,00

0-0,81

0,28

Усилие подачи бура на забой, кН

70

100

98

120

170

200

Подача бура на забой

Гидравлический

-

Гидравлический

-

-

-

-

Давление в гидросистеме, МПа

-

-

10

-

-

-

-

Привод бурильного и кранового оборудования

Механический

-

Гидравлический

-

-

-

-

Наибольшая грузоподъемность крановой установки, кг

-

-

3000

-

-

-

-

Масса, кг

-

23400

24000

48000

36430

60000

70000

Размеры в транспортном положении:

 

 

 

 

 

 

 

- длина

12400

 

13500

 

 

 

 

- ширина

2650

-

2500

-

-

-

-

- высота

3800

 

3600

 

 

 

 

Изготовитель

АО Алапаевский завод «Строймаш», Россия

-

АО Алапаевский завод «Строймаш», Россия

-

-

-

-

Выпуск

Выпускается

-

Выпускается

-

-

-

-

Таблица 3

Средние физико-механические характеристики грунтов.

№ п/п

Наименование грунтов

Сухие

Влажные

Мокрые

j0p

j0p

j0p

Песчаные грунты

1

Пески глинистые

1,95

41

3,5

2,05

36

3,5

2,15

36

3,5

2

Пески средней крупности

1,95

38

3,0

1,90

36

2,5

2,05

33

2,5

3

Пески мелкие

1,90

36

2,0

1,90

34

2,0

2,0

30

1.5

4

Пески пылеватые

1,90

34

2,0

1,90

32

2,0

2,0

28

1,0

Глинистые грунты

1

Супеси

1,70

25

2,5

1,85

23

1,5-2,0

1,95

20

1,0

2

Суглинки

1,60

23

2,5

1,85

20

2,0

1,95

15

1,0

3

Глины

1,6-1,8

20

3,5

1,70

18

18

1,85

8

1,0

где

g, т/м3 - объемный вес грунта;

 

j0p, град - угол внутреннего трения;

 

s, кг/см2 - несущая способность грунта.

2.5.3 Если в процессе вращательного бурения будет иметь место прихват шнеков в слабых оплывающих или слабо увлажненных глинах и суглинках, то следует применять ударно-канатный способ бурения.

2.5.4 Перед началом работ буровой машины необходимо:

- установить над местом расположения скважины и запустить двигатель бурового агрегата;

- поднять мачту буровой установки, установить ее вертикально (по отвесу), поддомкратить и закрепить защитными хомутами.

- поднять и установить первый шнек и шпиндель, проверить надежность соединения буровой колонки со шнеком, откопать приямок в месте расположения скважины и опустить вращатель.

2.5.5 В начале бурения скважины проводятся следующие операции: забуривание первого шнека производится на малых оборотах вращателя с целью предотвращения искривления скважины (отклонения ее от вертикали). После погружения первого шнека в грунт вращение шнековой колонны останавливается.

2.5.6 Для продолжения бурения скважины поднять вращатель на высоту шнека (1,7-1,8 м), установить очередной шнек на хвостовик шнековой колонны, соединить шнеки между собой запорным пальцем, обязательно застопорив его фиксатором, а затем, для соединения головки шпинделя вращателя с хвостовиком шнека, вручную опустить вращатель и повернуть шпиндельную головку.

Таблица 4

Рекомендации по определению шага и глубины погружения стальных труб от физико-механических характеристик грунта при креплении стенок траншеи с верхними распорами

Крепление с верхней распоркой при глубине траншеи 3,0 м

№ п/п

Характеристика грунта

Шаг забивки труб, м

Глубина забивки труб при s =1,0 кг/см2

Пояс L=6,0 м IN

Распорки при ширине траншеи, м

3,0

4,0

5,0

6,0

7,0

j0p

g

Деревянные в см

Металлические трубы 219x12

1

20

1,6

1,2

5,6

30

20

тр

20

тр

20

тр

20

тр

__

тр

2

25

1,6

1,5

6,1

30

20

тр

20

тр

20

тр

20

тр

__

тр

3

20

1,8

1,2

6,1

33

20

тр

20

тр

20

тр

20

тр

__

тр

4

25

1,8

1,2

5,7

27

20

тр

20

тр

20

тр

20

тр

__

тр

5

20

2,0

1,0

5,5

33

20

тр

20

тр

20

тр

20

тр

__

тр

6

25

2,0

1,5

6,4

30

20

тр

20

тр

20

тр

20

тр

__

тр

7

20

2,1

1,0

5,8

33

20

тр

20

тр

20

тр

20

тр

__

тр

8

25

2,1

1,2

5,8

30

20

тр

20

тр

20

тр

20

тр

__

тр

Крепление с верхней распоркой при глубине траншеи 3,0 м

№ п/п

Характеристика грунта

Шаг забивки труб, м

Глубина забивки труб при s =1,5 кг/см2

Пояс L=6,0 м

IN

Распорки при ширине траншеи, м

3,0

4,0

5,0

6,0

7,0

j0p

g

Деревянные в см

Металлические трубы 219x12

1

20

1,6

1,2

5,5

30

20

тр

20

тр

20

тр

20

тр

__

тр

2

25

1,6

1,5

5,5

30

20

тр

20

тр

20

тр

20

тр

__

тр

3

30

1,6

1,8

5,5

27

20

тр

20

тр

20

тр

20

тр

__

тр

4

35

1,6

2,0

5,5

24

20

тр

20

тр

20

тр

20

тр

__

тр

5

40

1,6

2,0

5,5

24

20

тр

20

тр

20

тр

20

тр

__

тр

6

20

1,8

1,2

5,5

33

20

тр

20

тр

20

тр

20

тр

__

тр

7

25

1,8

1,2

5,5

27

20

тр

20

тр

20

тр

20

тр

__

тр

8

30

1,8

1,8

5,5

27

20

тр

20

тр

20

тр

20

тр

__

тр

9

35

1,8

2,0

5,5

24

20

тр

20

тр

20

тр

20

тр

__

тр

10

40

1,8

2,0

5,5

24

20

тр

20

тр

20

тр

20

тр

__

тр

11

20

2,0

1,0

5,5

33

20

тр

20

тр

20

тр

20

тр

__

тр

12

25

2,0

1,5

5,5

30

20

тр

20

тр

20

тр

20

тр

__

тр

13

30

2,0

1,5

5,5

27

20

тр

20

тр

20

тр

20

тр

__

тр

14

35

2,0

2,0

5,5

24

20

тр

20

тр

20

тр

20

тр

__

тр

15

40

2,0

2,0

5,5

22

20

тр

20

тр

20

тр

20

тр

__

тр

16

20

2,1

1,0

5,5

55

20

тр

20

тр

20

тр

20

тр

__

тр

17

25

2,1

1,2

5,5

30

20

тр

20

тр

20

тр

20

тр

__

тр

18

30

2,1

2,0

5,5

27

20

тр

20

тр

20

тр

20

тр

__

тр

19

35

2,1

2,0

5,5

24

20

тр

20

тр

20

тр

20

тр

__

тр

20

40

2,1

2,0

5,5

24

20

тр

20

тр

20

тр

20

тр

__

тр

Крепление с верхней распоркой при глубине траншеи 3,0 м

№ п/п

Характеристика грунта

Шаг забивки труб, м

Глубина забивки труб при s =2,0 кг/см2

Пояс L=6,0 м

IN

Распорки при ширине траншеи, м

3,0

4,0

5,0

6,0

7,0

j0p

g

Деревянные в см

Металлические трубы 219x12

1

20

1,6

1,2

5,5

30

20

тр

20

тр

20

тр

20

тр

__

тр

2

25

1,6

1,5

5,5

30

20

тр

20

тр

20

тр

20

тр

__

тр

3

30

1,6

1,8

5,5

27

20

тр

20

тр

20

тр

20

тр

__

тр

4

35

1,6

2,0

5,5

24

20

тр

20

тр

20

тр

20

тр

__

тр

5

40

1,6

2,0

5,5

24

20

тр

20

тр

20

тр

20

тр

__

тр

6

20

1,8

1,2

5,5

33

20

тр

20

тр

20

тр

20

тр

__

тр

7

25

1,8

1,2

5,5

27

20

тр

20

тр

20

тр

20

тр

__

тр

8

30

1,8

1,8

5,5

27

20

тр

20

тр

20

тр

20

тр

__

тр

9

35

1,8

2,0

5,5

24

20

тр

20

тр

20

тр

20

тр

__

тр

10

40

1,8

2,0

5,5

24

20

тр

20

тр

20

тр

20

тр

__

тр

11

20

2,0

1,0

5,5

33

20

тр

20

тр

20

тр

20

тр

__

тр

12

25

2,0.

1,5

5,5

30

20

тр

20

тр

20

тр

20

тр

__

тр

13

30

2,0

1,5

5,5

27

20

тр

20

тр

20

тр

20

тр

__

тр

14

35

2,0

2,0

5,5

24

20

тр

20

тр

20

тр

20

тр

__

тр

15

40

2,0

2,0

5,5

22

20

тр

20

тр

20

тр

20

тр

__

тр

16

20

2,1

1,0

5,5

33

20

тр

20

тр

20

тр

20

тр

__

тр

17

25

2,1

1,2

5,5

30

20

тр

20

тр

20

тр

20

тр

__

тр

18

30

2,1

1,5

5,5

27

20

тр

20

тр

20

тр

20

тр

__

тр

19

35

2,1

2,0

5,5

24

20

тр

20

тр

20

тр

20

тр

__

тр

20

40

2,1

2,0

5,5

24

20

тр

20

тр

20

тр

20

тр

__

тр

Крепление верхней распоркой при глубине траншеи 3,0 м

№ п/п

Характеристика грунта

Шаг забивки труб, м

Глубина забивки труб при s =2,5 кг/см2

Пояс L=6,0 м

IN

Распорки при ширине траншеи, м

3,0

4,0

5,0

6,0

7,0

j0p

g

Деревянные в см

Металлические трубы 219x12

1

20

1,6

1,2

5,5

30

20

тр

20

тр

20

тр

20

тр

__

тр

2

25

1,6

1,5

5,5

30

20

тр

20

тр

20

тр

20

тр

__

тр

3

30

1,6

1,8

5,5

27

20

тр

20

тр

20

тр

20

тр

__

тр

4

35

1,6

2,0

5,5

24

20

тр

20

тр

20

тр

20

тр

__

тр

5

40

1,6

2,0

5,5

24

20

тр

20

тр

20

тр

20

тр

__

тр

6

20

1,8

1,2

5,5

33

20

тр

20

тр

20

тр

20

тр

__

тр

7

25

1,8

1,2

5,5

27

20

тр

20

тр

20

тр

20

тр

__

тр

8

30

1,8

1,8

5,5

27

20

тр

20

тр

20

тр

20

тр

__

тр

9

35

1,8

2,0

5,5

24

20

тр

20

тр

20

тр

20

тр

__

тр

10

40

1,8

2,0

5,5

24

20

тр

20

тр

20

тр

20

тр

__

тр

11

20

2,0

1,0

5,5

33

20

тр

20

тр

20

тр

20

тр

__

тр

12

25

2,0

1,5

5,5

30

20

тр

20

тр

20

тр

20

тр

__

тр

13

30

2,0

1,5

5,5

27

20

тр

20

тр

20

тр

20

тр

__

тр

14

35

2,0

2,0

5,5

24

20

тр

20

тр

20

тр

20

тр

__

тр

15

40

2,0

2,0

5,5

22

20

тр

20

тр

20

тр

20

тр

__

тр

16

20

2,1

1,0

5,5

33

20

тр

20

тр

20

тр

20

тр

__

тр

17

25

1,2

5,5

30

20

тр

20

тр

20

тр

20

тр

__

тр

18

30

2,1

1,5

5,5

27

20

тр

20

тр

20

тр

20

тр

__

тр

19

35

2,1

2,0

5,5

24

20

тр

20

тр

20

тр

20

тр

__

тр

20

40

2,1

2,0

5,5

24

20

тр

20

тр

20

тр

20

тр

__

тр

Крепление верхней распоркой при глубине траншеи 3,5 м

№ п/п

Характеристика грунта

Шаг забивки труб, м

Глубина забивки труб при s =1,0 кг/см2

Пояс L=6,0 м IN

Распорки при ширине траншеи, м

3,0

4,0

5,0

6,0

7,0

j0p

g

Деревянные в см

Металлические трубы 219x12

1

25

1,6

1,0

6,2

30

20

тр

20

тр

20

тр

20

тр

__

тр

2

25

1,8

1,0

6,3

33

20

тр

20

тр

20

тр

20

тр

__

тр

3

25

2,0

1,0

6,4

33

20

тр

20

тр

20

тр

20

тр

__

тр

Крепление верхней распоркой при глубине траншеи 3,5 м

№ п/п

Характеристика грунта

Шаг забивки труб, м

Глубина забивки труб при s =1,5 кг/см2

Пояс L=6,0 м IN

Распорки при ширине траншеи, м

3,0

4,0

5,0

6,0

7,0

j0p

g

Деревянные в см

Металлические трубы 219x12

1

20

1,6

 

 

 

 

 

 

 

 

2

25

1,6

1,0

6,0

30

20

тр

20

тр

20

тр

20

тр

__

тр

3

30

1,6

1,2

6,0

27

20

тр

20

тр

20

тр

20

тр

__

тр

4

35

1,6

1,5

6,0

24

20

тр

20

тр

20

тр

20

тр

__

тр

5

40

1,6

2,0

6,0

24

20

тр

20

тр

20

тр

20

тр

__

тр

6

25

1,8

1,0

6,0

33

20

тр

20

тр

20

тр

20

тр

__

тр

7

30

1,8

1,2

6,0

30

20

тр

20

тр

20

тр

20

тр

__

тр

8

35

1,8

1,5

6,0

27

20

тр

20

тр

20

тр

20

тр

__

тр

9

40

1,8

1,8

6,0

24

20

тр

20

тр

20

тр

20

тр

__

тр

10

25

2,0

1,0

6,0

33

20

тр

20

тр

20

тр

20

тр

__

тр

11

30

2,0

1,2

6,0

30

20

тр

20

тр

20

тр

20

тр

__

тр

12

35

2,0

1,5

6,0

27

20

тр

20

тр

20

тр

20

тр

__

тр

13

40

2,0

1,8

6,0

24

20

тр

20

тр

20

тр

20

тр

__

тр

14

30

2,1

1,0

6,0

30

20

тр

20

тр

20

тр

20

тр

__

тр

15

35

2,1

1,2

6,0

27

20

тр

20

тр

20

тр

20

тр

__

тр

16

40

2,1

1,8

6,0

24

20

тр

20

тр

20

тр

20

тр

__

тр

Крепление верхней распоркой при глубине траншеи 3,5 м

№ п/п

Характеристика грунта

Шаг забивки труб, м

Глубина забивки труб при s =2,0 кг/см2

Пояс L=6,0 м IN

Распорки при ширине траншеи, м

3,0

4,0

5,0

6,0

7,0

j0p

g

Деревянные в см

Металлические трубы 219x12

1

25

1,6

1,0

6,0

30

20

тр

20

тр

20

тр

20

тр

__

тр

2

30

1,6

1,2

6,0

27

20

тр

20

тр

20

тр

20

тр

__

тр

3

35

1,6

1,5

6,0

27

20

тр

20

тр

20

тр

20

тр

__

тр

4

40

1,6

2,0

6,0

24

20

тр

20

тр

20

тр

20

тр

__

тр

5

25

1,8

1,0

6,0

33

20

тр

20

тр

20

тр

20

тр

__

тр

6

30

1,8

1,2

6,0

30

20

тр

20

тр

20

тр

20

тр

__

тр

7

35

1,8

1,5

6,0

27

20

тр

20

тр

20

тр

20

тр

__

тр

8

40

1,8

1,8

6,0

24

20

тр

20

тр

20

тр

20

тр

__

тр

9

25

2,0

1,0

6,0

33

20

тр

20

тр

20

тр

20

тр

__

тр

10

30

2,0

1,2

6,0

30

20

тр

20

тр

20

тр

20

тр

__

тр

11

35

2,0

1,5

6,0

27

20

тр

20

тр

20

тр

20

тр

__

тр

12

40

2,0

1,8

6,0

24

20

тр

20

тр

20

тр

20

тр

__

тр

13

30

2,1

1,0

6,0

30

20

тр

20

тр

20

тр

20

тр

__

тр

14

35

2,1

1,2

6,0

27

20

тр

20

тр

20

тр

20

тр

__

тр

15

40

2,1

1,8

6,0

24

20

тр

20

тр

20

тр

20

тр

__

тр

Крепление верхней распоркой при глубине траншеи 3,5 м

№ п/п

Характеристика грунта

Шаг забивки труб, м

Глубина забивки труб при s =2,5 кг/см2

Пояс L=6,0 м IN

Распорки при ширине траншеи, м

3,0

4,0

5,0

6,0

7,0

j0p

g

Деревянные в см

Металлические трубы 219x12

1

25

1,6

1,0

6,0

30

20

тр

20

тр

20

тр

20

тр

__

тр

2

30

1,6

1,2

6,0

27

20

тр

20

тр

20

тр

20

тр

__

тр

3

35

1,6

1,5

6,0

27

20

тр

20

тр

20

тр

20

тр

__

тр

4

40

1,6

2,0

6,0

24

20

тр

20

тр

20

тр

20

тр

__

тр

5

25

1,8

1,0

6,0

33

20

тр

20

тр

20

тр

20

тр

__

тр

6

30

1,8

1,2

6,0

30

20

тр

20

тр

20

тр

20

тр

__

тр

7

35

1,8

1,5

6,0

27

20

тр

20

тр

20

тр

20

тр

__

тр

8

40

1,8

1,8

6,0

24

20

тр

20

тр

20

тр

20

тр

__

тр

9

25

2,0

1,0

6,0

33

20

тр

20

тр

20

тр

20

тр

__

тр

10

30

2,0

1,2

6,0

30

20

тр

20

тр

20

тр

20

тр

__

тр

11

35

2,0

1,5

6,0

27

20

тр

20

тр

20

тр

20

тр

__

тр

12

40

2,0

1,8

6,0

24

20

тр

20

тр

20

тр

20

тр

__

тр

13

30

2,1

1,0

6,0

30

20

тр

20

тр

20

тр

20

тр

__

тр

14

35

2,1

1,2

6,0

27

20

тр

20

тр

20

тр

20

тр

__

тр

15

40

2,1

1,8

6,0

24

20

тр

20

тр

20

тр

20

тр

__

тр

Крепление верхней распоркой при глубине траншеи 4,0 м

№ п/п

Характеристика грунта

Шаг забивки труб, м

Глубина забивки труб при s =1,0 кг/см2

Пояс L=6,0 м IN

Распорки при ширине траншеи, м

3,0

4,0

5,0

6,0

7,0

j0p

g

Деревянные в см

Металлические трубы 219x12

1

35

1,6

1,2

6,6

30

20

тр

20

тр

20

тр

20

тр

__

тр

2

40

1,6

1,5

6,6

27

20

тр

20

тр

20

тр

20

тр

__

тр

3

35

1,8

1,2

6,7

30

20

тр

20

тр

20

тр

20

тр

__

тр

4

40

1,8

1,2

6,5

27

20

тр

20

тр

20

тр

20

тр

__

тр

5

35

2,0

1,2

6,7

30

20

тр

20

тр

20

тр

20

тр

__

тр

6

40

2,0

1,2

6,8

27

20

тр

20

тр

20

тр

20

тр

__

тр

7

35

2,1

1,0

7,0

30

20

тр

20

тр

20

тр

20

тр

__

тр

8

40

2,1

1,2

6,9

27

20

тр

20

тр

20

тр

20

тр

__

тр

Крепление верхней распоркой при глубине траншеи 4,0 м

№ п/п

Характеристика грунта

Шаг забивки труб, м

Глубина забивки труб при s =1,5 кг/см2

Пояс L=6,0 м IN

Распорки при ширине траншеи, м

3,0

4,0

5,0

6,0

7,0

j0p

g

Деревянные в см

Металлические трубы 219x12

1

35

1,6

1,2

6,5

30

20

тр

20

тр

20

тр

20

тр

__

тр

2

40

1,6

1,5

6,5

27

20

тр

20

тр

20

тр

20

тр

__

тр

3

35

1,8

1,2

6,5

30

20

тр

20

тр

20

тр

20

тр

__

тр

4

40

1,8

1,2

6,5

27

20

тр

20

тр

20

тр

20

тр

__

тр

5

35

2,0

1,2

6,5

30

20

тр

20

тр

20

тр

20

тр

__

тр

6

40

2,0

1,2

6,5

27

20

тр

20

тр

20

тр

20

тр

__

тр

7

35

2,1

1,0

6,5

30

20

тр

20

тр

20

тр

20

тр

__

тр

8

40

2,1

1,2

6,5

27

20

тр

20

тр

20

тр

20

тр

__

тр

Крепление верхней распоркой при глубине траншеи 4,0 м

№ п/п

Характеристика грунта

Шаг забивки труб, м

Глубина забивки труб при s =2,0 кг/см2

Пояс L=6,0 м IN

Распорки при ширине траншеи, м

3,0

4,0

5,0

6,0

7,0

j0p

g

Деревянные в см

Металлические трубы 219x12

1

35

1,6

1,2

6,5

30

20

тр

20

тр

20

тр

20

тр

__

тр

2

40

1,6

1,5

6,5

27

20

тр

20

тр

20

тр

20

тр

__

тр

3

35

1,8

1,2

6,5

30

20

тр

20

тр

20

тр

20

тр

__

тр

4

40

1,8

1,2

6,5

27

20

тр

20

тр

20

тр

20

тр

__

тр

5

35

2,0

1,2

6,5

30

20

тр

20

тр

20

тр

20

тр

__

тр

6

40

2,0

1,2

6,5

27

20

тр

20

тр

20

тр

20

тр

__

тр

7

35

2,1

1,0

6,5

30

20

тр

20

тр

20

тр

20

тр

__

тр

8

40

2,1

1,2

6,5

27

20

тр

20

тр

20

тр

20

тр

__

тр

Крепление верхней распоркой при глубине траншеи 4, 0м

№ п/п

Характеристика грунта

Шаг забивки труб, м

Глубина забивки труб при s =2,5 кг/см2

Пояс L=6,0 м IN

Распорки при ширине траншеи, м

3,0

4,0

5,0

6,0

7,0

j0p

g

Деревянные в см

Металлические трубы 219x12

1

35

1,6

1,2

6,5

30

20

тр

20

тр

20

тр

20

тр

__

тр

2

40

1,6

1,5

6,5

27

20

тр

20

тр

20

тр

20

тр

__

тр

3

35

1,8

1,2

6,5

30

20

тр

20

тр

20

тр

20

тр

__

тр

4

40

1,8

1,2

6,5

27

20

тр

20

тр

20

тр

20

тр

__

тр

5

35

2,0

1,2

6,5

30

20

тр

20

тр

20

тр

20

тр

__

тр

6

40

2,0

1,2

6,5

27

20

тр

20

тр

20

тр

20

тр

__

тр

7

35

2,1

1,0

6,5

30

20

тр

20

тр

20

тр

20

тр

__

тр

8

40

2,1

1,2

6,5

27

20

тр

20

тр

20

тр

20

тр

__

тр

Крепление верхней распоркой при глубине траншеи 4, 5 м

№ п/п

Характеристика грунта

Шаг забивки труб, м

Глубина забивки труб при s =1,0 кг/см2

Пояс L=6,0 м IN

Распорки при ширине траншеи, м

3,0

4,0

5,0

6,0

7,0

j0p

g

Деревянные в см

Металлические трубы 219x12

1

40

1,6

1,0

7,0

27

20

тр

20

тр

20

тр

20

тр

__

тр

2

40

1,8

1,0

7,7

30

20

тр

20

тр

20

тр

20

тр

__

тр

3

40

2,0

1,0

7,3

30

20

тр

20

тр

20

тр

20

тр

__

тр

4

40

2,1

1,0

7,4

30

20

тр

20

тр

20

тр

20

тр

__

тр

Крепление верхней распоркой при глубине траншеи 4,5 м

№ п/п

Характеристика грунта

Шаг забивки труб, м

Глубина забивки труб при s =1,5 кг/см2

Пояс L=6,0 м IN

Распорки при ширине траншеи, м

3,0

4,0

5,0

6,0

7,0

j0p

g

Деревянные в см

Металлические трубы 219x12

1

40

1,6

1,0

7,0

27

20

тр

20

тр

20

тр

20

тр

__

тр

2

40

1,8

1,0

7,0

30

20

тр

20

тр

20

тр

20

тр

__

тр

3

40

2,0

1,0

7,0

30

20

тр

20

тр

20

тр

20

тр

__

тр

4

40

2,1

1,0

7,0

30

20

тр

20

тр

20

тр

20

тр

__

тр

Крепление верхней распоркой при глубине траншеи 4,5 м

№ п/п

Характеристика грунта

Шаг забивки труб, м

Глубина забивки труб при s =2,0 кг/см2

Пояс L=6,0 м IN

Распорки при ширине траншеи, м

3,0

4,0

5,0

6,0

7,0

j0p

g

Деревянные в см

Металлические трубы 219x12

1

40

1,6

1,0

7,0

27

20

тр

20

тр

20

тр

20

тр

__

тр

2

40

1,8

1,0

7,0

30

20

тр

20

тр

20

тр

20

тр

__

тр

3

40

2,0

1,0

7,0

30

20

тр

20

тр

20

тр

20

тр

__

тр

4

40

2,1

1,0

7,0

30

20

тр

20

тр

20

тр

20

тр

__

тр

Крепление верхней распоркой при глубине траншеи 4,5 м

№ п/п

Характеристика грунта

Шаг забивки труб, м

Глубина забивки труб при s =2,5 кг/см2

Пояс L=6,0 м IN

Распорки при ширине траншеи, м

3,0

4,0

5,0

6,0

7,0

j0p

g

Деревянные в см

Металлические трубы 219x12

1

40

1,6

1,0

7,0

27

20

тр

20

тр

20

тр

20

тр

__

тр

2

40

1,8

1,0

7,0

30

20

тр

20

тр

20

тр

20

тр

__

тр

3

40

2,0

1,0

7,0

30

20

тр

20

тр

20

тр

20

тр

__

тр

4

40

2,1

1,0

7,0

30

20

тр

20

тр

20

тр

20

тр

__

тр

Примечание - Возможность применения стальных труб при других параметрах глубины и шага забивки должна определяться расчетом.

2.5.7 Включить вращатель и продолжить бурение на 2-й -3-й скорости, отбрасывая при этом грунт, подаваемый шнековой колонной, из устья скважины.

2.5.8 После достижения глубины скважины, соответствующей проекту, бурение прекратить.

2.5.9 Произвести подъем шнековой колонны, выполняя следующие операции:

а) прекратить подачу вниз шнековой колонны и в течение 2-5 минут осуществлять ее свободное вращение (раскручивание);

б) остановить вращатель и поднять его на высоту 1,5-1,7 м;

в) соединить серьгу с хвостовиком шнековой колонны с помощью пальца с защелкой или болта, исключающих самопроизвольное соскакивание серьги с хвостика шнековой колонны во время подъема и опускания ее на землю;

г) максимальное количество извлекаемых шнеков при подъеме шнековой колонны не должно быть более четырех;

д) установить под поднятой частью шнеков колонны подкладную вилку, снять расположенный выше вилки пружинный фиксатор и выбить соединительный палец;

е) приподнять шнековую колонну на 10-20 см. В случае заклинивания соединения шнеков разъединить их ударами молотка;

ж) отвести в сторону отсоединенную часть шнековой колонны одновременно опуская ее, а затем повторить все те же самые операции, упомянутые в п.п. «в», «г», «е», до полного извлечения колонны из скважины;

и) поднять стальную трубу и установить ее вертикально над устьем скважины;

к) свободно опустить трубу в скважину, а затем ее осадить до требуемой глубины. Схема производства работ по бурению скважин и установке в них стальных труб приведена на рисунке 6.

Рисунок 6 - Схема производства работ по бурению скважин и установке в них стальных труб

При необходимости, для заглубления трубы до проектной отметки, возможно использование:

а) высокочастотных вибропогружателей, технические характеристики которых приведены в таблице 5, которыми оборудуются краны-экскаваторы;

Таблица 5

Технические характеристики вибропогружателей

Показатели

ВПП-2А (В-401)

В1-722

ВУ-1,6

ВПМ-170

Дисбаланс, кг·см

1,0

22,4; 29

34,5

50

Частота колебаний, мин-1

1500

437; 556

495

475;550

Наибольшая вынуждающая сила, кН

250

480; 620

958

1250;1700

Масса пригрузки (с электродвигателем), т

1,5

-

-

-

Амплитуда колебаний (без сваи), мм

14,3

3,6

40

50

Мощность электродвигателя, кВт

40

60´2

75´2

200

Габаритные размеры:

 

 

 

 

- длина

1270

2000

3068

1430

- ширина

800

2000

2618

1800

- высота (без наголовника)

2250

3420

1931

3400

Масса вибропогружателя (без наголовника и пульта), т

2,2

8,0

11,7

15,6

Тип наголовника

Гидравлический

Механический

б) вибровдавливающих установок, технические характеристики которых приведены в таблицах 6, 7.

Таблица 6

Технические характеристики вибровдавливающих установок

Показатель

ВВПС-20/11

ВВПС-32/19

Максимальная длина погружаемых свай, м

6

7

Максимальная масса погружаемых свай, т

2,0

2,8

Усилие пригрузки, кН

110

180

Давление на грунт, МПа

0,07

0,09

Вынуждающая сила погружателя, кН

200

280

Мощность электродвигателей, кВт

40

75

Общая масса установки с погружением, т

23,8

28,7

Допустимая скорость передвижения, км/ч

2,4-5,4

Таблица 7

Технические характеристики вибровдавливающей установки СВУ-В-2

Показатели

СВУ-В-2

Наибольшее усилие вдавливания, кН

750

Скорость вдавливания, м/мин

1,5-2,5

Мощность двигателя, кВт

15

Количество электродвигателей, шт

2

Количество электронасосов, шт

2

Поперечное сечение свай, см

65x65

Масса установки, т

58,5

Габаритные размеры (длина, ширина), м

8,6; 5,2-7,5

При погружении труб в пробуренные скважины машина с навесным оборудованием устанавливается по оси труб либо перпендикулярно им и поочередно погружает трубы на проектную отметку за счет создаваемых вибрационных сил. В качестве базовых машин для навески вибропогружателей могут использоваться как экскаваторы, так и краны.

Погружение труб вибровдавливающими машинами производится за счет одновременного воздействия на них вибрационных сил и вертикальной пригрузки. Вибрационные силы создаются низкочастотным вибратором направленного действия с подрессорной пригрузкой. Пригрузочное усилие создается массой вибропогружателя, собственно трубой и частично массой агрегата, передаваемым при помощи лебедки через канатно-блочную систему на вибропогружатель.

2.6 Земляные работы.

Размещение и перемещение грунта, места складирования и вывоза грунта (почвы) определяются в строгом соответствии с действующим порядком в г. Москве, утвержденным постановлением Правительства Москвы от 06.04.1999 г. № 259 и другими нормативными документами.

Размеры траншей должны обеспечивать размещение конструкций и механизированное производство работ по устройству фундаментов и гидроизоляции, прокладке трубопроводов, водоотводу или водопонижению и другим работам, выполняемым в траншее, а также возможность перемещения людей в пазухе траншеи. Размеры выемок по дну в натуре должны быть не менее установленных в ППР или технологической картой.

Минимальная ширина траншеи должна приниматься наибольшей из числа величин, удовлетворяющих следующим требованиям:

- под ленточные фундаменты и другие подземные коммуникации - должна включать ширину конструкции с учетом опалубки, толщины изоляции и креплений с добавлением 0,2 м с каждой стороны;

- под трубопроводы, кроме магистральных, - согласно таблице 8;

- при устройстве искусственных оснований под трубопроводы, кроме грунтовых подсыпок, коллекторы и подземные каналы - не менее ширины основания с добавлением 0,2 м с каждой стороны;

- при разработке грунта одноковшовыми экскаваторами - не менее ширины режущей кромки ковша с добавлением 0,15 м в песках и супесях; 0,1 м - в глинистых грунтах; 0,4 м - в разрыхленных скальных и мерзлых грунтах.

Таблица 8

Минимальная ширина траншей (СНиП 3.02.01-87)

Способ укладки

трубопровода

Ширина траншеи, м, без учета креплений при стыковом соединении

сварном

раструбном

муфтовом, фланцевом, фальцевом для всех труб и раструбном для керамических труб

1 Плетями или отдельными секциями при наружном диаметре труб, D, м:

 

 

 

до 0,7 включительно

D + 0,3, но не менее 0,7

-

-

свыше 0,7

1,5 D

-

-

2 Отдельными трубами при наружном диаметре труб D, м, включительно:

 

 

 

до 0,5

D + 0.5

D + 0,6

D + 0,8

от 0,5 до 1,6

D + 0,8

D + 1,0

D + 1,2

от 1,6 до 3,5

D + 1,4

D + 1,4

D + 1,4

Примечания

 

1 Ширина траншей для трубопроводов диаметром свыше 3,5 м устанавливается в проекте, исходя из технологии устройства основания, их монтажа, изоляции и заделки стыков.

2. При параллельной укладке нескольких трубопроводов в одной траншее расстояние от крайних труб до стенок траншей определяется требованиями настоящей таблицы, а расстояние между трубами устанавливается проектом.

Разработка грунта траншеи при креплении стенок верхними распорами из труб при глубине траншеи до 4,5 м производится после погружения стальных труб по обеим ее сторонам до глубины 3 м экскаваторами, оборудованными обратной лопатой, характеристики которых приведены в таблице 9, а от 3,0 до 4,5 м разработка грунта ведется в два этапа:

I этап - разработка грунта до половины оставшейся глубины траншеи послойно толщиной до 1,0 м экскаваторами, оборудованными обратной лопатой;

II этап - разработка грунта до проектных отметок экскаваторами, оборудованными грейферным ковшом, характеристики которых приведены в таблице 10.

Таблица 9

Технические характеристики экскаваторов, оборудованных обратной лопатой

Показатели

Марка

ЭО‑2621В‑3

ЭО‑2626

ЭО‑2627

ЭО‑3311Г

ЭО‑3323А‑10

ЭО‑4321В

ЭО-4421А

ЭО‑4124

1

2

3

4

5

6

7

8

9

Мощность, кВт:

 

 

 

 

 

 

 

 

- двигателя

44

55

55

37

59,6

73,6

73,6

95,6

- насосов

-

42,8

42,8

-

-

-

53

-

Рабочее давление в гидросистеме, МПа:

 

 

 

 

 

 

 

 

- экскавационного оборудования

14

14

14

-

28

25

18

28

- погрузочного оборудования

14

20

14

-

-

-

-

-

Скорость движение наибольшая, км/ч

19

33,4

33,4

15,0

19,4

20

70

2,5

Колея колес, мм:

 

 

 

 

 

 

 

 

- передних

1460

1600

1600

 

2100

2200

-

3550

- задних

1600

1750

1750

 

-

2200

 

-

Преодолеваемый уклон твердого сухого пути, град

15

20

18

-

-

22

27

22

Вместимость ковша, м3:

 

 

 

 

 

 

 

 

- геометрическая

0,25

0,25

0,25

0,4

0,25¸0,63

0,63¸1,25

0,63

1,0

- «с шапкой»

0,28

0,28

0,28

-

0,30¸0,81

0,72¸1,47

0,72

-

Ширина ковша (Вк), м

1,2

1,2

1,2

-

0,5¸1,0

-

-

1,0

Наибольшие:

 

 

 

 

 

 

 

 

- радиус копания на уровне стояния (Rk), м

5,3

5,3

5,3

-

7,93¸9,33

7,5¸9,2

6,83¸7,34

9,85

- глубина копания (Нк), м

4,15

4,15

4,15

4,0

4,95¸6,33

4,3¸6,0

2,1¸3,25

6,0

- высота выгрузки в транспортное средство (Нв), м

3,5

3,2

3,2

-

6,16¸7,37

5,3

4,48

-

- усилие копания, кН

35

35

35

-

-

143

91,3

-

- радиус выгрузки (Rв), m

3,25

3,25

3,25

-

6,69¸8,1

5,4¸6,9

-

-

Длительность рабочего цикла, с

16

16

16

15

-

19¸22

20

19

Наибольший угол поворота стрелы в плане, град

150

150

180

-

-

-

-

-

Размеры экскаватора в транспортном положении, мм:

 

 

 

 

 

 

 

 

- длина

7000

8000

8570

-

8000

10000

9400

3870

- ширина

2500

2500

2250

-

2500

2480

2750

-

- высота

3800

3800

3800

-

3800

4000

4200

-

Масса (эксплуатационная), т

6,1

7,4

7,9

11,7

13,9

19,5

20

-

Эксплуатационная производительность, м3

-

-

-

96

100

92- 150

125

-

При производстве работ в рыхлых грунтах и при соответствующих геологических условиях допускается использование экскаваторов, оборудованных грейферами.

При разработке грунта в зимнее время верхний мерзлый слой подлежит рыхлению либо оттаиванию.

Основание дна траншеи до укладки инженерных сетей и коммуникаций и обратной засыпки при отрицательных температурах должно быть утеплено рогожами, матами и другими теплоудерживающими изделиями или материалами.

Траншеи, разработанные в зимнее время, при наступлении оттепели должны быть осмотрены, а по результатам осмотра должны быть приняты меры к обеспечению устойчивости креплений.

Таблица 10

Технические характеристики экскаваторов, оборудованных грейферным ковшом

Показатель

Модели

ЭО-3122, ЭО-3122А

ЭО-3221

ЭО‑3323А‑10

ЭО‑4321В1

Вместимость ковша, м3

0,32

0,51

0,63

0,32

0,51

0,32

0,5-0,6

0,5-0,6

0,32

0,32

0,32

0,3; 0,5

0,2; 0,63

Длина штанги удлинителя, м

-

-

-

1,5

1,5

3

-

1,5

-

1,5

3

1,5-3

3,2

Категория разрабатываемого грунта

I-IV

Наибольшая глубина копания (Нк), м

5,5

5,6

5,5

7

7

8,5

5,7

7,2

5,7

7,2

7,2

6; 7,5; 9,0

7,2;7,3;10,5

Наибольшая высота выгрузки (Нв), м

3,7

3,7

3,7

2,2

2,2

0,7

8,2

8

8,2

8

7,5

1,96; 3,46; 4,96

0,9; 3,3; 3,4

Наибольший радиус копания на уровне стояния (Нкс), м

7,5

7,8

7,4

7,3

7,3

6,7

3,8

2,3

3,8

2,3

0,8

7,0; 7,6; 7,8

8,6; 9,1;9,2

Разрабатывая грунт обратной лопатой, машинист экскаватора обязан стремиться полностью использовать конструктивные возможности машины и мощность двигателя в данных конкретных условиях. Резать грунт при наполнении ковша необходимо стружкой наибольшей толщины при максимальных оборотах двигателя, стремясь наполнить ковш с «шапкой» на сколько возможно короткими движениями ковша в грунте. Влажный грунт рекомендуется резать тонкой стружкой, чтобы устранить его налипание, при этом потери времени на резании компенсируются ускорением разгрузки ковша.

Ковш из грунта в забое выводится немедленно после достаточного его наполнения. Во время поворота платформы экскаватора к месту разгрузки ковш поднимается на разгрузочную высоту, а опорожнение его производится в момент, когда он находится над точкой, намеченной для разгрузки грунта в отвал.

Платформа экскаватора при разработке грунта поворачивается на угол не более 90° для его разгрузки в отвал с обязательным расположением его на расстоянии не менее 0,5 м от верхней бровки траншеи.

Грунт в отвал укладывается на одну сторону траншеи первоначально в наиболее удаленные места отвала с постепенным приближением к бровке откоса траншеи. Запрещается складирование грунта на проезжей части улицы, тротуарах, ухоженных газонах.

Схема производства работ по разработке грунта траншеи экскаватором с креплением стенок и установкой распорок приведена на рисунках 7 и 8.

Рисунок 7 - Схема производства работ по разработке грунта траншеи экскаватором и устройства забирок

Рисунок 8 - Схема поэтапного производства работ при отрывке траншей экскаватором, оборудованным обратной лопатой и грейфером в траншеях с креплением распорками

Вскрытие асфальтобетонного покрытия тротуара и части проезжей дороги производится с использованием машин для нарезки швов, гидромолотов, компрессоров и отбойных молотков. Толщина слоя асфальтобетона на проезжей части и тротуаре принята равной 300 мм. Разобранное асфальтовое покрытие (скол) должно быть вывезено в течение рабочего дня. Технические характеристики некоторых машин и механизмов приведены в таблицах 11 и 12.

Таблица 11

Технические характеристики гидромолотов

Показатели

ГПМ-120

НМ-120

НМ-230

НМ-330

И-300М

СП-62ХЛ

Demo

ЕК270-03

ЕК400-03

Модель

 

 

 

 

 

 

S2300V

S3600V

Эксплуатационная масса, т

0,3

0,15

0,35

0,7

1,2

2,34

1,8

2,83

Общая длина, мм

1890

1350

1800

1900

2100

3210

2770

3300

Длина рабочего органа, мм

300

300

350

450

600

750

 

 

Рабочее давление, МПа

10

10

10

16

10-15

16

13,0-17,0

13,0-19,0

Расход масла, л/мин.

60-120

60-100

80-120

100-160

100-150

165

130-170

180-250

Частота удара, 1/мин.

180

720

540

420

450

300

330-530

280-400

Энергия удара, Дж

1220

500

1000

2200

3000

9000

5100

9300

Масса базовой машины, т

5-15

2-8

6-13

12-18

14-26

24-30

 

 

Таблица 12

Технические характеристики шовонарезчиков для асфальта и бетона

№ п/п

Показатели

CS350/500

Mini Cutter 14

Lux350

Lux400

Lux450

Lux500

Norton CK35B

1

Двигатель:

 

 

 

 

 

 

 

 

- производитель

Honda

Robin

Honda

Honda

Honda

Honda

Honda

Hatz

- модель

GX390 бензин

EY40 бензин

 

бензин

бензин

бензин

бензин

 

- мощность, л.с./кВт

13/-

10/-

13/-

-/3,7

-/6,6

-/9,5

-/13,2

-/25,5

2

Диаметр диска, мм

350/400/450/500

350

350/25,4

400/25,4

450/25,4

500/25,4

900

3

Глубина резания, мм

100/125/150/175

125

115

140

170

190

350

4

Размеры, мм

1030´580´920

1235´830 ´485

1130´965 ´440

850´812 ´600

850´812 ´600

1460´940 ´730

 

5

Масса, кг

129

132

120

65

120

125

175

690

6

Скорость вращения диска, об/мин

 

 

 

2680

2680

2240

2440

 

7

Скорость вращения двигателя, об/мин

 

 

 

3600

3600

3600

3600

 

Разработка грунта в пределах 2 м от боковой поверхности коммуникаций согласно п. 3.22 СНиП 3.02.01-87 «Земляные сооружения, основания и фундаменты» производится только вручную после отшурфовки и в присутствии представителя владельца. Разработанный грунт грузится в ящики и поднимается наверх с погрузкой в автосамосвалы и вывозится в установленные места. В процессе разработки грунта при вскрытии подземных коммуникаций производится их защита деревянным коробом и подвеска к переброшенным через траншею трубам. Решение по вывеске пересекающих траншею коммуникаций (труб большого диаметра, различные каналы, теплотрасса и т.п.) должно быть дано в рабочих чертежах проекта.

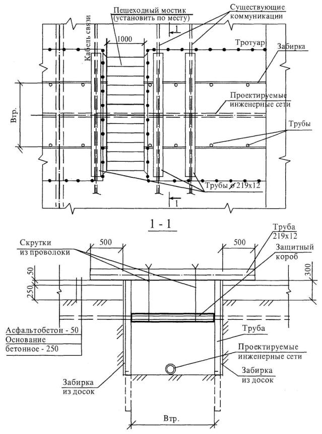
Особую осторожность следует проявлять при вскрытии кабелей связи и других коммуникаций и их засыпке. Пример формирования траншеи при пересечении с действующими коммуникациями представлен на рисунке 9, а разработка траншей в пределах проезжей части производится по наряд-допуску при наличии проекта организации дорожного движения согласно рисунку 10.

Рисунок 9 - Пример формирования траншеи при пересечении с действующими коммуникациями

Рисунок 10 - Схема разработки грунта на проезжей части автодороги

В процессе разработки грунта на частично освобожденном от грунта участке траншеи производится установка поясов, приварка подкладок и косынок и установка распоров.

При разработке грунта в районе расположения распоров последние допускается снять на время выемки грунта с последующим их восстановлением.

Устройство забирки.

Устройство забирки выполняют послойно, по мере разработки грунта слоями по 1000 и 500 мм сверху вниз и секциями, равными расстоянию между двумя последовательно забитыми трубами, согласно рисунку 11.

Рисунок 11 - Последовательность и схема устройства забирки

Для забирки используют доски, соответствующие требованиям ГОСТ 8486-86*, напиленные по размеру, равному расстоянию между осями забитых труб + 200 мм. Толщину досок забирок в зависимости от глубины траншеи и шага стальных труб определяют по таблице 13.

Таблица 13

Зависимость толщины досок забирок от глубины траншеи и шага стальных труб

№ п/п

Глубина траншеи, м

Толщина досок забирок в мм при шаге стальных труб

до 1,5 м

 

до 2 м

 

1

3

30

 

40

 

2

4

40

 

50

 

3

5

50

 

60

 

Для установки доски устраивают штрабу высотой, равной ширине доски. Штрабу в зависимости от толщины досок выбирают разной глубины от 60 мм до 120 мм, как показано на рисунке 10. Доску вставляют в штрабу, заводят за трубу и устанавливают в проектное положение.

2.7 Доработка недобора грунта до проектной отметки производится средствами малой механизации с сохранением природного сложения грунтов основания либо вручную. Толщина слоя недобора зависит от применяемого типа экскаватора.

В случае появления грунтовых вод необходимо предусмотреть сток воды по уклону траншеи в зумпфы с последующей откачкой насосами.

Восполнение переборов в местах устройства фундаментов и укладки трубопроводов выполняется местным грунтом с уплотнением до плотности грунта естественного сложения основания или малосжимаемым грунтом, модуль деформации которых составляет не менее 20 МПа. В просадочных грунтах II типа применение дренирующего грунта не допускается.

Способ восстановления оснований, нарушенных в результате промерзания, затопления, а также переборов глубиной более 0,5 м, необходимо согласовать с проектной организацией.

Во избежание неравномерной осадки труб и расстройства стыковых соединений каждая труба должна опираться на ненарушенный грунт (естественное основание) своей нижней частью не менее чем на 3/4 ее длины с учетом длины приямков.

2.8 При прокладке трубопроводов в местах их стыкования необходимо устраивать приямки. Размеры приямков для заделки стыков трубопроводов должны быть не менее указанных в таблице 14.

Таблица 14

Размеры приямков для заделки стыков трубопроводов (СНиП 3.02.01-87)

Трубы

Стыковое соединение

Уплотнитель

Условный проход трубопровода, мм

Размеры приямков, м

длина

ширина

глубина

Стальные

Сварное

-

для всех диаметров

1,0

D+ 1,2

0,7

Чугунные

Раструбное

Резиновая манжета

до 300 включительно

0,5

D + 0,2

0,1

Пеньковая прядь

до 300 включ.

 свыше 300

0,55

1,0

D + 0,5

D + 0,7

0,3

0,4

Герметики

до 300 включ.

свыше 300

0,5

1,0

D + 0,5

D + 0,7

0,2

0,3

Асбестоцементные

Муфта типа САМ

Резиновое кольцо фигурного сечения

до 300 включительно

свыше 300

0,7

0,7

D + 0,2

D + 0,5

0,2

0,2

Чугунная фланцевая муфта

Резиновое кольцо круглого сечения и типа КЧМ

до 300 включительно

свыше 300

0,7

0,9

D + 0,5

D + 0,7

0,3

0,3

Любое для безнапорных труб

Любой

до 400 включительно

0,7

D + 0,5

0,2

Бетонные и железобетонные

Раструбное, муфтовое и с бетонным пояском

Резиновое кольцо круглого сечения

до 600 включительно

0,5

D + 0,5

0,2

от 600 до 3500

1,0

D + 0,5

0,3

Пластмассовые

Все виды стыковых соединений

-

для всех диаметров

0,6

D + 0,5

0,2

Керамические

Раструбное

Асфальто-битум, герметик и др.

то же

0,5

D + 0,6

0,3

Обозначение, принятое в таблице 2: D - наружный диаметр трубопровода в стыке

Примечание - Для всех конструкций стыков и диаметров трубопроводов размеры приямков следует устанавливать в проекте.

Разработку грунта приямков производить вручную послойно с выброской грунта на бровку и погрузкой в автосамосвалы и вывозкой с территории строительной площадки либо отсыпкой в отвал.

2.9 Траншеи, разрабатываемые на улицах, проездах, во дворах, а также в местах нахождения людей или транспорта, должны быть ограждены защитными ограждениями, отвечающими требованиям ГОСТ 23407-78. На ограждении необходимо установить предупредительные надписи и знаки, а в темное время суток - сигнальное освещение.

2.10 В сложившихся стесненных условиях производства земляных работ в г. Москве необходимо осуществлять мероприятия и работы согласно «Правил подготовки и производства земляных работ, обустройства и содержания строительных площадок в г. Москве». Постановление правительства Москвы за № 857-ПП от 7.12.2004 г.

2.11 При производстве работ по разработке грунта в траншеях глубокого заложения с креплением стенок и верхними распорами следует руководствоваться правилами производства и приемки работ согласно:

- СНиП 12-01-2004 «Организация строительства»;

-СНиП 12-03-2001 «Безопасность труда в строительстве. Часть 1. Общие требования»;

- СНиП 12-04-2002 «Безопасность труда в строительстве. Часть 2. Строительное производство»;

- СНиП 3.02.01-87 «Земляные сооружения, основания и фундаменты»;

- СНиП 3.03.01-87 «Несущие и ограждающие конструкции»;

- Организационно-технологическому регламенту строительства (реконструкции) объектов в стесненных условиях существующей городской застройки.

- ППБ 01-03 «Правила пожарной безопасности в Российской Федерации».

3 ТРЕБОВАНИЯ К КАЧЕСТВУ И ПРИЕМКЕ РАБОТ

3.1 Контроль качества работ должен осуществляться специальными службами строительных организаций. При производстве земляных работ следует выполнять входной и операционный контроль и оценку соответствия выполненных работ, руководствуясь требованиями СНиП 12-01-2004 и приложением 1 СНиП 3.02.01-87.

3.2 Входной контроль включает контроль поступающих материалов, изделий, грунта и т.п., технической документации, а также приемку вынесенной в натуру геодезической разбивочной основы.

При входном контроле проектной документации следует проанализировать представленную документацию, включая ПОС, ППР и рабочую документацию, проверив при этом:

- ее комплектность;

- соответствие проектных осевых размеров и геодезической основы;

- наличие ссылок на материалы и изделия;

- соответствие границ стройплощадки на стройгенплане установленным сервитутам;

- наличие перечня работ и конструкций, показатели качества которых влияют на безопасность объекта и подлежат оценке соответствия в процессе строительства объекта;

- наличие предельных значений контролируемых по указанному перечню параметров, допускаемых уровней несоответствия по каждому из них;

- наличие указаний о методах контроля и измерений, в том числе в виде ссылок на соответствующие нормативные документы.

При обнаружении недостатков соответствующая документация возвращается на доработку. Разработку траншей производить при отсутствии проекта производства работ запрещается.

Входным контролем исполнитель работ выполняет приемку предоставляемой ему застройщиком (заказчиком) геодезической разбивочной основы, проверяет ее соответствие установленным требованиям к точности. Приемку геодезической разбивочной основы у застройщика (заказчика) следует оформлять соответствующим актом.

Результаты входного контроля должны быть задокументированы в «Журнале входного учета и контроля качества получаемых деталей, материалов, конструкций и оборудования».

3.3 Операционный контроль осуществляется в ходе выполнения строительных процессов, производственных операций или непосредственно после их завершения и обеспечивает своевременное выявление дефектов и принятие мер по их устранению и предупреждению. Осуществляется преимущественно измерительным методом или техническим осмотром. Результаты операционного контроля фиксируются в общих или специальных журналах работ, журналах геотехнического контроля и других документах, предусмотренных действующей в данной организации системой управления качеством.

3.4 По завершении земляных работ по объекту или отдельному этапу с участием заказчика осуществляется оценка соответствия выполненных работ в виде приемки земляных работ, которая включает проверку:

- отметок бровок дна и размеров траншеи;

- правильности расположения и геометрических размеров приямков для сварочных работ.

Сдача-приемка работ оформляется актом, который должен содержать перечень технической документации, на основании которой были выполнены работы, данные о проверке правильности выполнения земляных работ и несущей способности основания, топографических, геологических и гидрогеологических условиях, в т.ч. об уровне грунтовых вод, наличии карстовых и оползневых явлений, а также перечень недоделок с указанием сроков их устранения.

3.5 Изменение планово-высотного положения запроектированных коммуникаций в процессе строительных работ без согласования ОПС и автора проекта категорически запрещается.

3.6 При производстве земляных работ и в процессе монтажа или бетонирования конструкций подземной части или укладки трубопроводов необходимо постоянное наблюдение за состоянием траншеи, бровок, поверхностного стока воды и водоотвода. Состав контролируемых показателей, предельные отклонения, объем и методы контроля должны соответствовать таблице 15.

Таблица 15

Состав контролируемых операций, отклонения и способы контроля (СНиП 3.02.01-87)

Технические показатели

Предельные отклонения

Контроль (метод и объем)

1

2

3

1. Концентрация химических веществ и взвесей в воде, сбрасываемой в естественные водостоки и водоемы

Не более предельно допустимых концентраций, установленных «Правилами охраны поверхностных вод от загрязнения сточными водами»

Лабораторные исследования, не реже двух раз в месяц

2. Контроль за состоянием бровок и дна траншей

Не допускается сосредоточенная фильтрация, вынос грунта и оплывание откосов

Визуальные наблюдения, ежедневно

3. Контроль за осадками зданий и сооружений

Осадки не должны превышать величин, установленных СНиП 3.02.01-87

Нивелирование по маркам, установленным на здании или сооружении

4. Отклонения отметок дна выемок от проектных (кроме выемок в валунных, скальных грунтах) при черновой разработке:

 

Измерительный, точки измерений устанавливаются случайным образом; число измерений на принимаемый участок должно быть не менее:

а) одноковшовыми экскаваторами, оснащенными ковшами с зубьями

Для экскаваторов с механическим приводом по видам рабочего оборудования:

 

 

обратная лопата +15 см

10

 

Для экскаваторов с гидравлическим приводом + 10 см

10

5. Отклонения отметок дна выемок от проектных при черновой разработке в скальных грунтах, кроме планировочных выемок:

 

Измерительный, при  числе измерений на сдаваемый участок не менее 20 в наиболее высоких местах, установленных визуальным осмотром

а) недоборы

Не допускаются

б) переборы

По таблице 16

6. То же, планировочных выемок:

 

То же

а) недоборы

10 см

б) переборы

20 см

7. То же, без рыхления валунных и глыбовых грунтов:

 

— « —

 

а) недоборы

Не допускаются

б) переборы

Не более величины максимального диаметра валунов (глыб), содержащихся в грунте в количестве свыше 15 % по объему, но не более 0,4 м.

 

8. Отклонения отметок дна выемок в местах устройства фундаментов и укладки конструкций при окончательной разработке или после доработки недоборов и восполнения переборов

±5 см

Измерительный, по углам и центру котлована, на пересечениях осей здания, в местах изменения отметок, поворотов и примыкании траншей, расположения колодцев, но не реже чем через 50 м и не менее 10 измерений на принимаемый участок.

9. Вид и характеристики вскрытого грунта естественных оснований под фундаменты и земляные сооружения

Должны соответствовать проекту. Не допускается размыв, размягчение, разрыхление или промерзание верхнего слоя грунта основания толщиной более 3 см

Технический осмотр всей поверхности основания

10. Отклонения от проектного продольного уклона дна траншей под безнапорные трубопроводы, водоотводных канав и других выемок с уклонами

Не должны превышать ± 0,0005

Измерительный, в местах поворотов, примыканий, расположения колодцев и т.п., но не реже чем через 50 м

11. Отклонения уклона спланированной поверхности от проектного, кроме орошаемых земель

Не должны превышать ± 0,001 при отсутствии замкнутых понижений

Визуальный (наблюдения за стоком атмосферных осадков) или измерительный, по сетке 50 ´ 50 м

12. Отклонения отметок спланированной поверхности от проектных, кроме орошаемых земель:

Не должны превышать:

Измерительный, по сетке 50´50 м

а) в нескальных грунтах

± 5 см

б) в скальных грунтах

От + 10 до - 20 см

Таблица 16

Допустимые величины переборов (СНиП 3.02.01-87)

Разновидность грунта в соответствии с ГОСТ 25100-95 и модулем трещиноватости

Допустимые величины переборов, см, при рыхлении способом

взрывным

механическим

методом скважинных зарядов

методом шпуровых зарядов

Прочные и очень прочные при модуле трещиноватости менее 1,0

20

10

5

Прочие скальные грунты, вечномерзлые грунты

40

20

10

Примечание- Модуль трещиноватости - среднее число трещин на один метр линии измерения, расположенной на поверхности забоя перпендикулярно главной или главным системам трещин.

3.7 Состав производственного контроля качества разработки траншеи представлен в таблице 17.

Дополнительные требования контроля качества работ при устройстве траншей даны в «Техническом регламенте операционного контроля качества строительно-монтажных и специальных работ при возведении зданий и сооружений. 01. Производство земляных работ» ТР 94.01-99.

3.8 По результатам оценки соответствия выполненных работ принимается документированное решение о пригодности траншеи к выполнению последующих работ (укладке трубопроводов или сооружению ленточных фундаментов). Дальнейшие работы в траншеях, не соответствующих проекту, запрещаются.

4 ТРЕБОВАНИЯ БЕЗОПАСНОСТИ И ОХРАНЫ ТРУДА, ЭКОЛОГИЧЕСКОЙ И ПОЖАРНОЙ БЕЗОПАСНОСТИ

4.1 При выполнении земляных работ, связанных с размещением рабочих в траншее, могут возникнуть следующие опасные и вредные производственные факторы, связанные с характером работы:

- обрушающиеся горные породы (грунты);

- падающие предметы (куски породы);

- движущиеся машины и их рабочие органы, а также передвигаемые ими предметы:

- расположение рабочего места вблизи перепада по высоте 1,3 м и более;

- повышенное напряжение в электрической цепи, замыкание которой может произойти через тело человека;

- химически опасные и вредные производственные факторы.


Таблица 17

Состав производственного контроля качества разработки траншей

Вид контроля (стадия)

Входной

Контролируемые операции

Наличие геодезической разливочной основы

Правильность выноса в натуру трасс коммуникаций(оси коммуникаций, разбивка смотровых колодцев, вводов в здания и т.д.)

Правильность выносных отметок поверхности

Выполнение мероприятий по отводу поверхностных и грунтовых вод

Наличие и комплектность проекта производства работ

Наличие технических решений по обеспечению сохранности существующих зданий и сооружений, находящихся в непосредственной близости

Наличие технических решений обеспечивающих пересечение с действующими коммуникациями

1

2

3

4

5

6

7

8

Объем контроля

Сплошной

Метод контроля

Визуальный

Инструментальный

 

 

 

 

Освидетельствование скрытых работ

 

Привлекаемые специалисты

 

Геодезист

 

 

 

 

Операции, контролируемые строительной лабораторией

 

Продолжение таблицы 17

Вид контроля (стадия)

Операционный

Контролируемые операции

Вертикальные отметки дна траншеи с учетом черновой разработки

Вертикальные отметки дна траншеи с учетом окончательной разработки

Размеры траншеи по низу по верху

Состояние откосов

Осадки зданий и сооружений, находящихся в непосредственной близости

Организация отвода поверхностных и грунтовых вод

Соблюдение заданного продольного уклона дна траншеи

Ширина вскрытия поля дорог и проездов в городских условиях

Вид и характеристика вскрытого грунта естественных оснований

1

9

10

11

12

13

14

15

16

17

Объем контроля

Сплошной, выборочный

Метод контроля

Инструментальный

Освидетельствование скрытых работ

 

Привлекаемые специалисты

Геодезист

Операции, контролируемые строительной лабораторией

 

+

Продолжение таблицы 17

Вид контроля (стадия)

Приемочный

Контролируемые операции

Размеры траншеи по дну и по верху

Вертикальные отметки дна траншеи

Отклонение от проектного продольного уклона

Качество восполнения переборов

Качество откосов

Устройство искусственных оснований

1

18

19

20

21

22

23

Объем контроля

Сплошной

Метод контроля

Инструментальный, визуальный

Освидетельствование скрытых работ

Акт на скрытые работы

Привлекаемые специалисты

Геодезист

Операции, контролируемые строительной лабораторией

 

+

 

 


4.2 Для предупреждения воздействия на работников опасных и вредных производственных факторов безопасность работ при разработке грунта и размещении рабочих мест в траншее должна быть обеспечена соблюдением следующих мероприятий по охране труда:

- соблюдение безопасной глубины незакрепленных стенок траншей с учетом нагрузки от машин и грунта;

- выбор соответствующих технологическому процессу типов машин, применяемых для разработки грунта и мест их установки;

- дополнительные мероприятия по контролю и обеспечению устойчивости откосов в связи с сезонными изменениями;

- определение мест установки и типов ограждений траншей, а также лестниц для спуска работников к месту работ.

4.3 К работе по разработке грунта в траншее допускаются лица не моложе 18 лет, имеющие профессиональные навыки, прошедшие медицинское освидетельствование и признанные годными, получившие знания по безопасным методам и приемам труда согласно ГОСТ 12.0.004-90 «ССБТ. Организация обучения безопасности труда. Общие положения», сдавшие экзамены квалификационной комиссии в установленном порядке и получившие соответствующее удостоверение.

Внеочередной инструктаж по безопасности труда проводится при переводе рабочих с одного объекта на другой, при изменении условий производства работ, нарушении бригадой правил и инструкций по безопасности труда.

4.4 Участки производства работ в населенных пунктах или на территории действующей организации, а также в местах движения людей и транспорта во избежание доступа посторонних лиц должны быть ограждены. Технические условия по устройству инвентарных ограждений установлены ГОСТ 23407-78.

4.5 До начала производства земляных работ в местах расположения действующих подземных коммуникаций должны быть разработаны и согласованы с организациями, эксплуатирующими эти коммуникации, мероприятия по безопасным условиям труда, а расположение подземных коммуникаций на местности должно быть отшурфлено и обозначено соответствующими знаками или надписями. Особую осторожность соблюдать в траншеях, расположенных вблизи газопроводов, т.к. в них возможно появление газа, застоявшегося при отсутствии проветривания.

4.6 При приближении к существующим линиям подземных коммуникаций земляные работы должны производиться под наблюдением производителя работ или мастера, а в охранной зоне кабелей, находящихся под напряжением, или действующего газопровода, кроме того, под наблюдением работников электро- или газового хозяйства при наличии наряда-допуска.

4.7 Строительно-монтажные работы с применением машин в охранной зоне действующей линии электропередачи следует производить под непосредственным руководством лица, ответственного за безопасность производства работ, при наличии письменного разрешения организации-владельца линии и наряда-допуска, определяющего безопасные условия работ и выдаваемого в соответствии с требованиями 4.11 СНиП 12-03-2001 при выполнении следующих мер безопасности.

При установке строительных машин и применении транспортных средств с поднимаемым кузовом в охранной зоне воздушной линии электропередачи необходимо снять напряжение с воздушной линии электропередачи.

При обоснованной невозможности снятия напряжения с воздушной линии электропередачи работу строительных машин в охранной зоне линии электропередачи разрешается производить по наряд-допуску при условии выполнения следующих требований:

а) расстояние от подъемной или выдвижной части строительной машины в любом ее положении до находящейся под напряжением воздушной линии электропередачи должно быть не менее указанного в таблице 18.

Таблица 18

Минимальное расстояние до воздушной линии электропередач (СНиП 12-03-2001)

Напряжение воздушной линии электропередачи, кВ

Расстояние, м

минимальное

минимально измеряемое техническими средствами

До 20

2,0

2,0

Св. 20 до 35

2,0

2,0

« 35 « 110

3,0

4,0

« 110 « 220

4,0

5,0

« 220 « 400

5,0

7,0

« 400 « 750

9,0

10,0

« 750 « 1150

10,0

11,0

б) корпуса машин, за исключением машин на гусеничном ходу, при их установке непосредственно на грунте должны быть заземлены при помощи инвентарного переносного заземления.

4.8 При обнаружении не предусмотренных планом коммуникаций, подземных сооружений, взрывоопасных материалов и боеприпасов земляные работы в этих местах следует прекратить, на место работы вызвать представителей заказчика и организаций, эксплуатирующих обнаруженные коммуникации, и принять меры по предохранению обнаруженных подземных устройств от повреждения. Работы возобновляются после выявления характера обнаруженных сооружений или предметов и получения соответствующего разрешения. В случае обнаружения боеприпасов к работе можно приступить только после их удаления саперами.

4.9 Разработка грунта в непосредственной близости от действующих подземных коммуникаций допускается только при помощи ручных землекопных лопат, без резких ударов.

4.10 При необходимости разработки траншей в непосредственной близости и ниже подошвы фундаментов существующих зданий и сооружений проектом должны быть предусмотрены технические решения по обеспечению их сохранности.

4.11 Для спуска и подъема рабочих в траншею установить стремянки шириной не менее 0,75 м с перилами, а места перехода людей через траншею оборудовать переходными мостиками, освещаемыми в темное время.

4.12 Экскаватор, в т.ч. с грейферным ковшом, для работы должен устанавливаться на спланированной площадке. При его работе запрещается производить какие-либо работы и находиться людям в зоне вблизи движущихся частей и рабочих органов машины, ограниченной радиусом действия, увеличенным на 5 м.

4.13 Грунт, извлекаемый из траншеи, укладывается за пределами призмы обрушения грунта на расстоянии не менее 0,5 м от бровки выемки или отвозится в отвал автосамосвалами.

4.14 Производство работ в траншеях с вертикальными, подвергшимися увлажнению стенками, разрешается только после тщательного осмотра прорабом (мастером) состояния грунта в пределах призмы обрушения. Устойчивость вертикальных откосов должна быть проверена независимо от атмосферного воздействия при глубине траншей более 1,3 м, а также после наступления оттепели.

4.15 Погрузка грунта на автосамосвалы должна производиться со стороны заднего или бокового борта.

4.16 Расстояние между бульдозером и экскаватором, идущими один за другим, должно быть не менее 10 метров.

4.17 Пожарную безопасность на строительной площадке, участках работ и рабочих местах следует обеспечить в соответствии с требованиями ППБ 01-03 «Правила пожарной безопасности в Российской Федерации».

4.18 Электробезопасность на строительной площадке, участках работ и рабочих местах должна обеспечиваться в соответствии с требованиями СНиП 12-03-2001 «Безопасность труда в строительстве. Часть 1. Общие требования».

4.19 Временное электроосвещение строительной площадки, участков работ, рабочих мест, проездов и проходов к ним в темное время суток должно отвечать требованиям ГОСТ 12.1.046-85. Освещенность должна быть равномерной, без слепящего действия осветительных приспособлений на работающих. Строительное производство в неосвещенных местах не допускается. Проект временного электроосвещения выполняет специализированная организация по заказу подрядчика.

4.20 Перед началом производства земляных работ на участках с возможным патогенным заражением почвы (свалка, скотомогильники и т.п.) необходимо получить разрешение органов Государственного санитарного надзора. Гигиенические требования к организации строительного производства и строительных работ даны в СанПиН 2.2.3.1384-03.

4.21 На территории строящихся и реконструируемых объектов не допускается не предусмотренное проектной документацией сведение древесно-кустарниковой растительности и засыпка грунтом корневых шеек и стволов растущих деревьев и кустарника. Сохраняемые деревья должны быть ограждены щитами высотой 2 м, а зеленые насаждения, попадающие в пятно прокладки коммуникации, должны быть пересажены на освоенные территории.

4.22 В зоне производства планировочных работ почвенный слой должен предварительно сниматься и складироваться в специально отведенных местах с последующим использованием для рекультивации земель. Выпуск воды со стройплощадки непосредственно на склоны без надлежащей защиты от размыва грунта не допускается.

4.23 Поверхность земли территорий стройплощадок после окончания всех работ должна соответствовать отметкам, указанным в проектной документации, и засеяна газонной травой, а также должны быть высажены зеленые насаждения, кустарники и деревья. Растительный грунт, песок и песчаный грунт, завозимые на строительные объекты, должны иметь сертификат качества и данные по радиационным, экологическим, агрохимическим и гигиеническим характеристикам.

4.24 В сложившихся условиях производства работ в г. Москве необходимо осуществлять мероприятия и работы по охране окружающей природной среды согласно «Правилам подготовки и производства земляных работ, обустройства и содержания строительных площадок в г. Москве» (постановление Правительства Москвы № 857-ПП от 07.12.2004 г.) с соблюдением требований СНиП 12-03-2001 «Безопасность труда в строительстве. Часть 1. Общие требования» и СНиП 12-04-2002 «Безопасность труда в строительстве. Часть 2. Строительное производство».

5. ПОТРЕБНОСТЬ В МАТЕРИАЛЬНО-ТЕХНИЧЕСКИХ РЕСУРСАХ

5.1 Потребность в машинах, инструменте, инвентаре для разработки грунта в траншее с креплением стенок и верхними распорами под инженерные коммуникации или ленточные фундаменты определяется с учетом специфики выполняемых работ, назначения и технических характеристик в соответствии с таблицей 19.

Таблица 19

Ведомость потребности в машинах, инструменте, инвентаре.

№ п/п

Наименование

Тип, марка, ГОСТ

Техническая характеристика

Назначение

Количество на звено (бригаду), шт.

1

Бульдозер

Подбирается по таблице 1

Планировочные работы

1

2

Экскаватор

Подбирается по таблицам 9 и 10

Разработка грунта

1

3

Вибропогружатели и установки

Подбирается по таблицам 5, 6  и 7

Погружение стальных труб

1

4

Бурильно-крановая машина

Подбирается по таблице 2

Бурение скважин и погружение стоек

1

5

Автосамосвал

МАЗ-5551

Вместимость 5,13

Для перевозки грунта

2

6

Теодолит

ОТ-02 ГОСТ 10529-96

-

Для измерительных работ

1

7

Нивелир с рейкой

НВ-1 ГОСТ 10528-90

-

 

1

8

Рулетка измерительная

ГОСТ 7502-98

-

Для линейных измерений

2

9

Стальная лента

Тип ИР-749 ГОСТ 427-75*

Длина 25 м

Для линейных измерений

1

10

Лестница-стремянка

 

Длина по месту

Для спуска в траншею

3

11

Лопата штыковая

ГОСТ 19596-87*

-

Для зачистки и подбора недобора грунта

1

12

Лопата подборочная

ГОСТ 19596-87*

-

1

13

Каска строительная

ГОСТ 12.4.087-84

-

Для защиты головы

3

14

Рукавицы

ГОСТ 12.4.011-89

-

Для защиты рук

3

15

Комплект знаков по технике безопасности

ГОСТ Р 12.4.026-2001

-

Для обеспечения безопасности работ

1

16

Спецодежда

ГОСТ 12.4.011-89

-

Для индивидуальных средств защиты

3

17

Лом монтажный

ЛМ-24

-

Для устройства забирки

2

18

Кувалда кузнечная продольная остроконечная

ГОСТ

11402-75*

-

Для устройства забирки

1

19

Ножовка по дереву широкая

-

Размер 50x115x450 Масса, кг - 0,5

Для устройства забирки

2

20

Газоанализатор

 

 

Для проверки наличия газа

1

5.2 Расход эксплуатационных материалов, необходимых для обслуживания бульдозера ДЗ-109 и экскаватора ЭО-3311 при разработке грунта, приведен в таблице 20.

Таблица 20

Ведомость расхода эксплуатационных материалов.

№ п/п

Наименование эксплуатационных материалов

Расход материалов, кг

для бульдозера ДЗ-109

для экскаватора ЭО-3311

на 1 час работы

на 1000 м3 грунта

на объем работ

на 1 час работы

на 1000 м3 грунта

на объем работ

1

Дизельное топливо

9,8

62,8

6,28

5,6

210

139

2

Бензин

0,05

0,32

0,032

0,03

1,17

1,05

3

Дизельное масло

0,44

2,82

0,282

0,24

9,35

8,43

4

Индустриальное масло

0,01

0,06

0,006

0,04

1,56

1,41

5

Нигрол

0,03

0,19

0,019

0,002

0,1

0,09

6

Автол

0,02

0,13

0,013

-

-

-

7

Солидол

0,15

0,96

0,096

0,15

5,85

5,25

8

Керосин

0,03

0,19

0,019

0,05

1,95

1,76

9

Обтирочные материалы

0,02

0,09

0,009

0,03

1,17

1,05

10

Канатная мазь

0,02

0,13

0,013

0,02

0,78

0,69

11

Стальной канат

0,07

0,32

0,032

-

12,5

11,2

12

Графитная мазь

-

-

-

0,12

4,65

4,20

Примечание - Для других марок строительных машин расход материалов уточняется по факту.

6 ТЕХНИКО-ЭКОНОМИЧЕСКИЕ ПОКАЗАТЕЛИ

6.1 Технико-экономические показатели в технологической карте определены для случая разработки грунта II группы, при отсутствии грунтовых вод в траншее, с вертикальными стенками при геометрических размерах траншеи шириной 1500 мм, глубиной 3 м и длиной 10 м согласно рисунку 12 при использовании бульдозера ДЗ-109 и экскаватора ЭО-3 311.

6.2 Затраты труда и машинного времени на разработку грунта в траншее подсчитаны по «Единым нормам и расценкам на строительные, монтажные и ремонтно-строительные работы», введенным в действие в 1987 г., и представлены в таблице 21.

6.3 Продолжительность работ на разработку грунта в траншее определяется календарным планом производства работ согласно таблице 22.

Работы по бурению скважин и погружению в них стальных труб, производящиеся бурильно-крановой машиной БКМ-820С, выполняются последовательно для каждой трубы.

Продолжительность работ для каждой трубы составляет:

- бурение скважины под трубу - 0,887 ч;

- погружение стальной трубы в скважину - 0,16 ч.

Работы по разработке грунта экскаватором и устройству забирки производятся последовательно одна за другой, по захваткам слоями по 1 м согласно рисунку 13. Продолжительность работ по захваткам составляет:

- разработка грунта траншеи (3 слоя по 1 м) - 1,13 ч;

- устройство забирки - 5,4 ч.

Рисунок 12 - Пример геометрии траншеи для цифровых расчетов

а) Планировка поверхности бульдозером

б) Бурение скважин и установка в них стальных труб

в) Разработка грунта траншеи экскаватором и устройство забирки

Рисунок 13 - Схемы производства работ по разработке грунта траншеи глубокого заложения с креплением стенок

Таблица 21

Калькуляция затрат труда и машинного времени.

Измеритель конечной продукции - 10 м траншеи.

№ п/п

Обоснование (ЕНиР и др. нормы)

Наименование технологических процессов

Ед. изм.

Объем работ

Нормы времени

Затраты труда

рабочих, чел.-ч.

машиниста, чел.-ч., (работа машин, маш.-ч.)

рабочих, чел.-ч.

машиниста, чел.-ч., (работа машин, маш.-ч.)

1

Е2-1-35 №4 а

Планировка поверхности бульдозером

1000 м2

0,04

-

0,2 (0,2)

-

0,008 (0,008)

2

Е12-68 табл. №3 (применительно)

Бурение скважин бурильно-крановой машиной БКМ-802С

м

138,6

0,14

0,07 (0,07)

19,5

9,8 (9,8)

3

Е12-73№1 (применительно)

Погружение в них стальных труб бурильно-крановой машиной БКМ-802С

шт.

22

0,32

0,16 (0,16)

7,04

3,52 (3,52)

4

Е2-1-11 Табл.7, №10

Разработка грунта II группы в траншее экскаватором ЭО-3311Г, оборудованным обратной лопатой, с отсыпкой грунта в отвал

100 м3

0,45

-

2,5 (2,5)

-

1,13 (1,13)

5

Е2-1-51 А №1

Устройство забирки

м2

60

0,18

-

10,8

-

6

Е2-1-47Б №6

Доработка недобора грунта II группы до проектных отметок на величину 0,1 м по дну траншеи вручную

м3

1,5

1,6

-

2,4

-

7

Е2-1-60 №76

Выравнивание поверхности выемки естественной плотности

100 м2

0,10

6,0

-

0,6

-

8.

Е2-1-47Б № 1 е

Разрыхление грунта II группы, копка приямков под соединения труб на глубину 0,1 м

м3

0,075

1,3

-

од

-


Таблица 22

Календарный план производства работ.

Измеритель конечной продукции -10м траншеи

№ п/п

Наименование технологических процессов

Ед. изм.

Объем работ

Затраты труда

Принятый состав звена

Продолжительность процесса, час

Рабочие смены

рабочих чел.-ч.

машиниста, чел.-ч., (работа машин, маш.-ч.)

1

2

3

Рабочие часы

1

2

3

4

5

6

7

8

1

2

3

4

5

6

7

8

1

2

3

4

5

6

7

1

Предварительная планировка поверхности бульдозером

1000м2

0,04

-

0,008 (0,008)

Машинист 6 разр. -1

0,008

 

 

 

 

 

 

 

 

 

 

 

 

 

 

 

 

 

 

 

 

 

 

 

 

 

 

2

Бурение скважин бурильно-крановой машиной БКМ-802С

м

138,6

19,5

9,8 (9,81)

Машинист 6 разр. -1 Монтажники 4 разр.-1 3 разр-1

9,8

 

 

 

 

 

 

 

 

 

 

 

 

 

 

 

 

 

 

 

 

 

 

 

 

 

 

 

 

 

 

 

 

 

 

 

 

 

 

 

3

Погружение труб в скважины бурильно-крановой машиной БКМ-802С

шт

22

7,04

3,52 (3,52)

3,52

 

 

4

Разработка грунта в траншее экскаватором

100 м3

0,45

-

1,13 (1,13)

Машинист 6 разр. -1

1,13

 

 

 

 

 

 

 

 

 

 

 

 

 

 

 

 

 

 

 

 

 

 

 

 

 

 

 

 

 

 

 

 

 

 

 

 

 

 

5

Устройство забирки

м2

60

10,8

-

Плотник 3 разр. - 2

5,0

 

 

 

 

 

 

 

 

 

 

 

 

 

 

 

 

 

 

 

 

 

 

 

 

 

 

 

 

 

 

6

Доработка грунта но дну траншеи вручную

м3

1,5

2,4

-

Землекоп 3 разр. -1

2,4

 

 

 

 

 

 

 

 

 

 

 

 

 

 

 

 

 

 

 

 

 

 

 

 

 

 

 

 

 

 

 

 

 

 

 

 

 

 

 

7

Выравнивание поверхности выемки

100 м2

0,10

0,6

-

Землекоп 2 разр. -1

0,6

 

 

 

 

 

 

 

 

 

 

 

 

 

 

 

 

 

 

 

 

 

 

 

 

 

8

Разработка приямков вручную

м3

0,075

0,1

-

Землекоп 3 разр. -1

0,1

 

 

 

 


7 ПЕРЕЧЕНЬ НОРМАТИВНО-ТЕХНИЧЕСКОЙ ЛИТЕРАТУРЫ

1 СНиП 2.02.01-83* Основания зданий и сооружений.

2 СНиП 3.01.03-84 Геодезические работы в строительстве.

3 СНиП 3.02.01-87 Земляные сооружения, основания и фундаменты.

4 СНиП 12-01-2004 Организация строительства.

5 СНиП 12-03-2001 Безопасность труда в строительстве. Часть 1. Общие требования.

6 СНиП 12-04-2002 Безопасность труда в строительстве. Часть 2. Строительное производство.

7 ГОСТ 12.0.004-90 Организация обучения безопасности труда. Основные положения.

8 ГОСТ 12.1.046-85 ССБТ. Строительство. Нормы освещения строительных площадок.

9 ГОСТ 12.4.010-75* ССБТ. Средства индивидуальной защиты. Рукавицы специальные. Технические условия.

10 ГОСТ 12.4.011-89 ССБТ. Средства защиты работающих. Общие требования и классификация.

11 ГОСТ Р 12.4.026-2001 ССБТ. Цвета сигнальные, знаки безопасности и разметка сигнальная. Назначение и правила применения. Общие технические требования и характеристики. Методы испытаний.

12 ГОСТ 12.4.087-84  ССБТ. Строительство. Каски строительные. Технические условия.

13 ГОСТ 427-75* Линейки измерительные металлические. Технические условия.

14 ГОСТ 7502-98 Рулетки измерительные металлические. Технические условия.

15 ГОСТ 10528-90* Нивелиры. Общие технические условия.

16 ГОСТ 10529-96 Теодолиты. Общине технические условия.

17 ГОСТ 11402-75* Инструмент кузнечный для ручных и молотовых работ. Кувалды кузнечные остроносые. Конструкция и размеры.

18 ГОСТ 19596-87* Лопаты. Технические условия.

19 ГОСТ 25100-95 Грунты. Классификация.

20 ГОСТ 23407-78 Ограждения инвентарные строительных площадок и участков производства строительно-монтажных работ.

21 ППБ 01-03 Правила пожарной безопасности в Российской Федерации. МЧС России, М., 2003.

22 ЕНиР. Единые нормы и расценки на строительные, монтажные и ремонтно-строительные работы. Сборник Е2. Земляные работы. Выпуск 1. Механизированные и ручные земляные работы.

ЕНиР. Сборник Е12. Свайные работы.

23 Регламент подготовки, организации и производства строительных (земляных) работ в стесненных условиях городской застройки. ОАО ПКТИпромстрой, 2002 г.

24 ТР 94.01-99 Технический регламент операционного контроля качества строительно-монтажных и специальных работ при возведении зданий и сооружений. 01. Производство земляных работ. ОАО ПКТИпромстрой, М. 2000 г.

25 Правила подготовки и производства земляных работ, обустройства и содержания строительных площадок в г. Москве. Постановление Правительства Москвы № 857-ПП от 07.12.2004 г.

26 СанПиН 2.2.3.1384-03 Гигиенические требования к организации строительного производства и строительных работ.

27 Организационно-технологический регламент строительства (реконструкции) объектов в стесненных условиях существующей городской застройки. ОАО ПКТИпромстрой, М., 2002 г.

 




ГОСТЫ, СТРОИТЕЛЬНЫЕ и ТЕХНИЧЕСКИЕ НОРМАТИВЫ.
Некоммерческая онлайн система, содержащая все Российские Госты, национальные Стандарты и нормативы.
В Системе содержится более 150000 файлов нормативно-технической документации, действующей на территории РФ.
Система предназначена для широкого круга инженерно-технических специалистов.

Рейтинг@Mail.ru Яндекс цитирования

Copyright © www.gostrf.com, 2008 - 2026